Zwangsversteigerung: 5020 Salzburg Schiffmanngasse 19 - gemischt genutztes Haus

Ortsanfang    Ortsanfang  


Wien  ♦  Niederösterreich  ♦  Burgenland  ♦  Oberösterreich  ♦  Salzburg  ♦  Tirol  ♦  Vorarlberg  ♦  Steiermark  ♦  Kärnten


Information   Details
Edikt: Versteigerung (21.10.2025)
Gericht - Aktenzeichen: BG Salzburg (565) - 5 E 3760/24g
Liegenschaftsadresse: 5020 Salzburg Schiffmanngasse 19
Kategorie: gemischt genutztes Haus
Objektbezeichnung: Wohnhaus mit Büroanbau
Beschreibung: Bei schätzungsgegenständlicher Liegenschaft handelt es sich um ein in den 50iger Jahren des vorigen Jahrhunderts errichtetes Wohnhaus mit Erdgeschoß, Obergeschoß und ausgebauten Dachgeschoß (nicht unterkellert) daran im Westen in den 70iger Jahren des vorigen Jahrhunderts errichteten unterkellerten Bürogebäude welches in den 80iger Jahren um ein zweites Geschoss aufgestockt wurde sowie Nebengebäuden wie Garagen und Abstellräume; Outdoorpool; Die Bauwerksteile weisen einen rückgestauten Instandsetzungsbedarf auf, im Detail wird empfohlen dass Langgutachten zu lesen. Das Dachgeschoß des Wohnhauses ist seit 2016 vermietet wobei von einem kündigungsgeschützten Mietverhältnis auszugehen ist.
Grundstücksgröße: 1.193 m²
Objektgröße: 303,65 m²
Schätzwert: 2.166.700,00
geringstes Gebot: 1.086.800,00
Vadium: 217.360,00
mitzuversteigerndes Zubehör: überdeckter Fahrradstellplatz; Sauna samt Saunaofen; Kachelofen; Outdoorpool (sanierungsbedürftig) Kitchenette samt E-Geräte im Dachgeschoß Wohnhaus;
Wert des Zubehörs: 6.900,00
Langgutachten: Gutachten23642025.pdf  
Lageplan: DKM Orthofoto.jpgDKM Orthofoto.jpg  
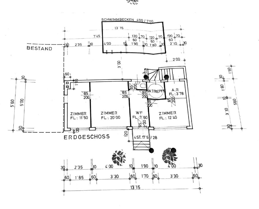
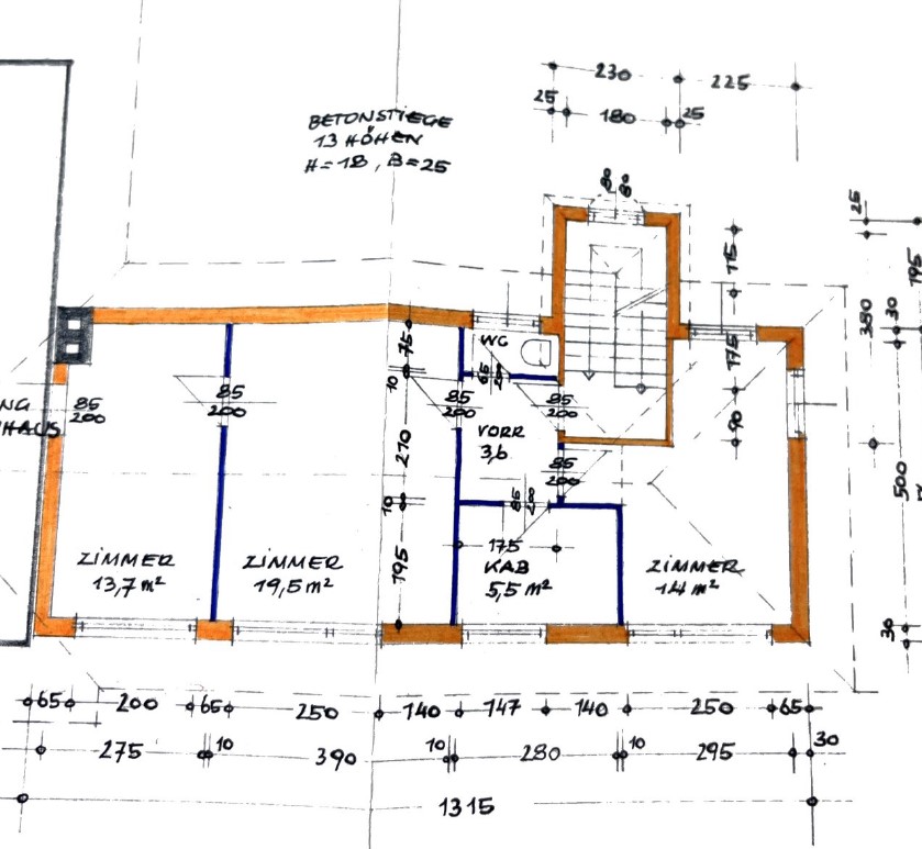
Grundriss: Bestandsplan DG Bürotrakt.jpgBestandsplan DG Bürotrakt.jpg   Bestandsplan EG Bürotrakt.jpgBestandsplan EG Bürotrakt.jpg   Bestandsplan KG Bürotrakt.jpgBestandsplan KG Bürotrakt.jpg   Bestandsplan OG Bürotrakt.jpgBestandsplan OG Bürotrakt.jpg   Bestandsplan Garananbau im Westen.jpgBestandsplan Garananbau im Westen.jpg   Bestandsplan Haupthaus DG.jpgBestandsplan Haupthaus DG.jpg   Bestandsplan Haupthaus EG.jpgBestandsplan Haupthaus EG.jpg   Bestandsplan Haupthaus OG.jpgBestandsplan Haupthaus OG.jpg   Bestandsplan Nebengebäude im Osten.jpgBestandsplan Nebengebäude im Osten.jpg  
Fotos: Ansicht aus Richtung Nordosten.jpgAnsicht aus Richtung Nordosten.jpg   Ansicht aus Richtung Nordwesten.jpgAnsicht aus Richtung Nordwesten.jpg   Ansicht aus Richtung Südosten.jpgAnsicht aus Richtung Südosten.jpg   Ansicht aus Richtung Südwesten.jpgAnsicht aus Richtung Südwesten.jpg   Bürotrakt Erdgeschoss (2).jpgBürotrakt Erdgeschoss (2).jpg   Bürotrakt Erdgeschoss (3).jpgBürotrakt Erdgeschoss (3).jpg   Bürotrakt Obergeschoss (2).jpgBürotrakt Obergeschoss (2).jpg   Haupthaus EG (1).jpgHaupthaus EG (1).jpg   Haupthaus EG (2).jpgHaupthaus EG (2).jpg   Haupthaus OG (1).jpgHaupthaus OG (1).jpg   Haupthaus OG (4).jpgHaupthaus OG (4).jpg   Nebengebäude im Osten (2).jpgNebengebäude im Osten (2).jpg   Nebengebäude im Osten (4).jpgNebengebäude im Osten (4).jpg   Pool.jpgPool.jpg  
Direktlink: https://edikte.justiz.gv.at/    (Eingebundene Vorschaubilder sind embedded content von edikte.justiz.gv.at; die Links verweisen direkt auf die entsprechende externe Seite.)


Top Versicherungsschutz für Ihre Immobilie.
Durch online-Preisvergleich zur besten Eigenheimversicherung.
Top aktuelle Angebote: Stand 10/2025
Online-Test: Eigenheimversicherung
  Autoversicherung online 10/2025.
Anbieter in ganz Österreich vergleichen
und damit bis zu 700 Euro sparen.
Versicherung bequem online abschließen.
Jetzt Prämie sparen: Autoversicherung
  Stromkosten sparen durch Anbieterwechsel!
Großer Strompreisvergleich für Österreich.
Stromanbieter online vergleichen und
in nur 3 Minuten Vertrag abschließen.
Strompreisvergleich online: Strom

Ortsende Wien  ♦  Niederösterreich  ♦  Burgenland  ♦  Oberösterreich  ♦  Salzburg  ♦  Tirol  ♦  Vorarlberg  ♦  Steiermark  ♦  Kärnten   

| Impressum  |  Datenschutz |