Zwangsversteigerung: 4431 Haidershofen Vestenthal 197 und Vestenthal 199 - Einfamilienhaus

Ortsanfang    Ortsanfang  


Wien  ♦  Niederösterreich  ♦  Burgenland  ♦  Oberösterreich  ♦  Salzburg  ♦  Tirol  ♦  Vorarlberg  ♦  Steiermark  ♦  Kärnten


Information   Details
Edikt: Versteigerung (27.05.2026)
Gericht - Aktenzeichen: BG Haag (083) - 109 E 2/26k
Liegenschaftsadresse: 4431 Haidershofen Vestenthal 197 und Vestenthal 199
Kategorie: Einfamilienhaus
Objektbezeichnung: Einfamilienhaus mit Pool
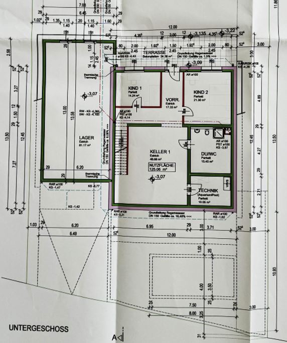
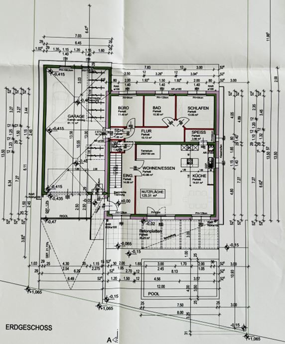
Beschreibung: Das gegenständliche Gebäude wurde mit Bescheid B/065-2017 vom 08.01.2018 behördlich bewilligt und besteht aus einem Kellergeschoß, einem Erdgeschoß und einer unterkellerten und an das Wohnhaus angebauten Garage. Das Gebäude wurde in Massivbauweise aus Styroporelementen (d=52 cm), mit Bewehrung und Beton ausgefüllt, errichtet. Ebenso sind spezielle Deckenelemente errichtet worden. Das Gesamtsystem des Gebäudes ist augenscheinlich in Ordnung. Der Heizwärmebedarf (SK) beträgt laut Energieausweis (unter Berücksichtigung einer vollständigen und fachgerechten Herstellung) 9,5 kW/m²a.
Grundstücksgröße: 1.634 m²
Schätzwert: 404.000,00
geringstes Gebot: 282.800,00
Vadium: 40.400,00
Wert des Zubehörs: nicht festgestellt
Langgutachten: 24-0871210_GA_20240508.pdf24-0871210_GA_20240508.pdf  
Lageplan: Lageplan.JPGLageplan.JPG  
Grundriss: Grundriss UG.JPGGrundriss UG.JPG   Grundriss EG.JPGGrundriss EG.JPG  
Direktlink: https://edikte.justiz.gv.at/    (Eingebundene Vorschaubilder sind embedded content von edikte.justiz.gv.at; die Links verweisen direkt auf die entsprechende externe Seite.)


Das Maximum herausholen!
Die besten Sparzinsen Österreichs.
Fix (Festgeld) oder flexibel (täglich fällig).
Kostenloser Online-Zinsvergleich.
04/2026: Sparzinsen
  Ihr Wohnkredit zu Top-Konditionen.
Kompetente, kostenlose Expertenberatung.
Für Hausbau oder Wohnungskauf.
Österreichweiter Marktvergleich.
Rasch und einfach: Wohnkredit-Rechner
  Autoversicherung online 04/2026.
Anbieter in ganz Österreich vergleichen
und damit bis zu 700 Euro sparen.
Versicherung bequem online abschließen.
Jetzt Prämie sparen: Autoversicherung

Ortsende Wien  ♦  Niederösterreich  ♦  Burgenland  ♦  Oberösterreich  ♦  Salzburg  ♦  Tirol  ♦  Vorarlberg  ♦  Steiermark  ♦  Kärnten   

| Impressum  |  Datenschutz |