Zwangsversteigerung: 9900 Lienz Michael Gamper-Straße 4 - gewerbliche Liegenschaft

Ortsanfang    Ortsanfang  


Wien  ♦  Niederösterreich  ♦  Burgenland  ♦  Oberösterreich  ♦  Salzburg  ♦  Tirol  ♦  Vorarlberg  ♦  Steiermark  ♦  Kärnten


Information   Details
Edikt: Versteigerung (27.10.2025)
Gericht - Aktenzeichen: BG Lienz (850) - 30 E 8/24i
Liegenschaftsadresse: 9900 Lienz Michael Gamper-Straße 4
Kategorie: gewerbliche Liegenschaft
Objektbezeichnung: Gewerbliches Objekt
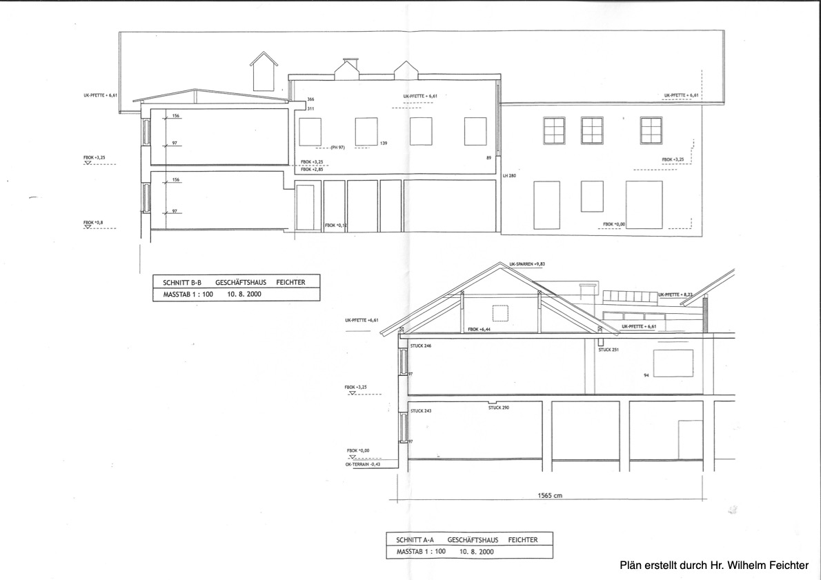
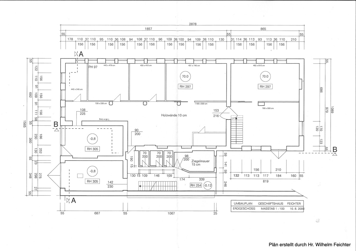
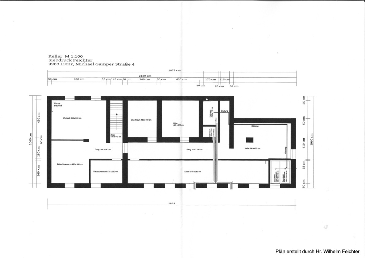
Beschreibung: Gewerbliches Objekt bestehend aus Keller-, Erd-, Ober- und Dachgeschoss. Das Objekt ist in Mmassivbauweise errichtet und mit einem Sattel- und einem Pultdach abgedeckt. Es bestehen sowohl Büro- wie auch Produktionsräume. Das Objekt ist in einem schlechten Zustand, es ist zum Teil abbruchreif.
Grundstücksgröße: 439 m²
Schätzwert: 200.000,00
geringstes Gebot: 150.000,00
Vadium: 20.000,00
Langgutachten: F_38_25 Gutachten gesamt_signed.pdf  
Lageplan: Lageplan 2.jpgLageplan 2.jpg  
Grundriss: Plan Ansicht.jpgPlan Ansicht.jpg   Plan EG.jpgPlan EG.jpg   Plan KG.jpgPlan KG.jpg  
Fotos: Feichter - Ansichten - 01.jpegFeichter - Ansichten - 01.jpeg   Feichter - Ansichten - 03.jpegFeichter - Ansichten - 03.jpeg   Feichter - Ansichten - 05.jpegFeichter - Ansichten - 05.jpeg   Feichter - Ansichten - 07.jpegFeichter - Ansichten - 07.jpeg   Feichter - EG - 07.jpegFeichter - EG - 07.jpeg   Feichter - EG - 23.jpegFeichter - EG - 23.jpeg   Feichter - EG - 25.jpegFeichter - EG - 25.jpeg   Feichter - OG - 03.jpegFeichter - OG - 03.jpeg   Feichter - OG - 05.jpegFeichter - OG - 05.jpeg   Feichter - OG - 06.jpegFeichter - OG - 06.jpeg   Feichter - OG - 01.jpegFeichter - OG - 01.jpeg  
Direktlink: https://edikte.justiz.gv.at/    (Eingebundene Vorschaubilder sind embedded content von edikte.justiz.gv.at; die Links verweisen direkt auf die entsprechende externe Seite.)


Ihr Wohnkredit zu Top-Konditionen.
Kompetente, kostenlose Expertenberatung.
Für Hausbau oder Wohnungskauf.
Österreichweiter Marktvergleich.
Rasch und einfach: Wohnkredit-Rechner
  Stromkosten sparen durch Anbieterwechsel!
Großer Strompreisvergleich für Österreich.
Stromanbieter online vergleichen und
in nur 3 Minuten Vertrag abschließen.
Strompreisvergleich online: Strom
  Die Finanzierung für Ihren Hausbau:
Baufinanzierung & Baukredit-Rechner.
Maßgeschneidert und Top-Konditionen.
Schnelle & unbürokratische Abwicklung.
Monatsrate und Zinsen: Online-Rechner

Ortsende Wien  ♦  Niederösterreich  ♦  Burgenland  ♦  Oberösterreich  ♦  Salzburg  ♦  Tirol  ♦  Vorarlberg  ♦  Steiermark  ♦  Kärnten   

| Impressum  |  Datenschutz |