Zwangsversteigerung: 6176 Völs Peter-Siegmair-Straße 7 und 7a - Eigentumswohnung

Ortsanfang    Ortsanfang  


Wien  ♦  Niederösterreich  ♦  Burgenland  ♦  Oberösterreich  ♦  Salzburg  ♦  Tirol  ♦  Vorarlberg  ♦  Steiermark  ♦  Kärnten


Information   Details
Edikt: Versteigerung (28.04.2026)
Gericht - Aktenzeichen: BG Innsbruck (811) - 20 E 25/25b
Liegenschaftsadresse: 6176 Völs Peter-Siegmair-Straße 7 und 7a
Kategorie: Eigentumswohnung
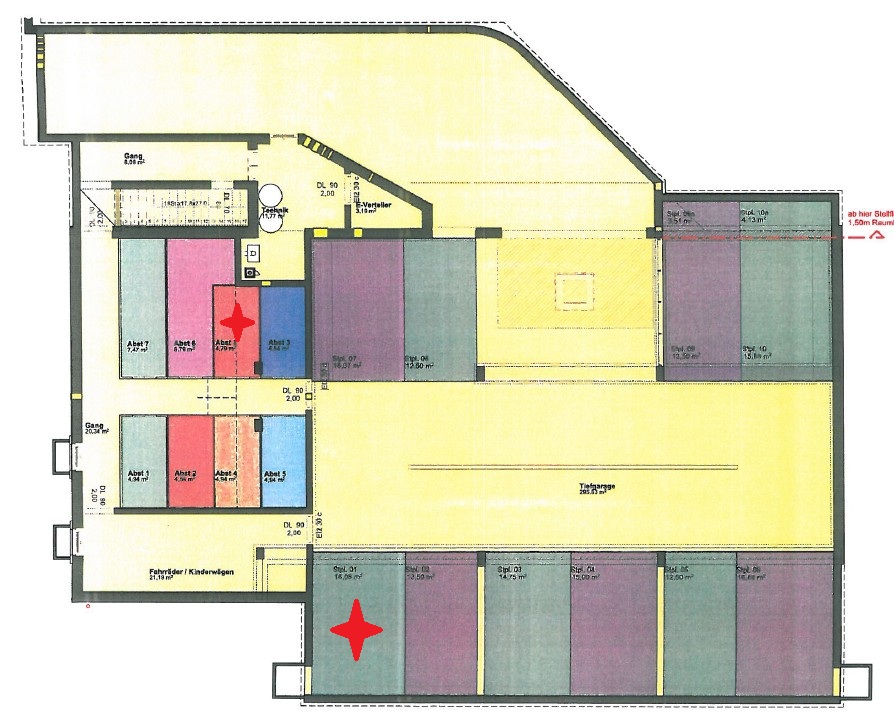
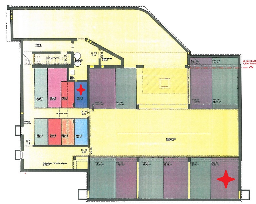
Objektbezeichnung: Whg. Top 03 und TG-STPL. 06
Beschreibung: Die Liegenschaft EZ 1199 besteht aus einem Baukörper. Die bewertungsgegenständliche Wohnung Top 03 befindet sich im Erdgeschoss und unterteilt sich in Diele/Abstellraum, Schlafen, Bad/WC und Wohnen/Essen/Kochen. Vom Wohnbereich gelangt man direkt in den südseitig gelegenen Eigengarten. Zu der Wohnung gehört ein Kellerabteil im Untergeschoss des Gebäudes. Die Beheizung des Objektes erfolgt mittels Fernwärme. Gemeinsam mit der Wohnung Top 03 wird der Tiefgaragenabstellplatz - Stpl. 06 versteigert. Dieser befindet sich im Untergeschoss des Gebäudes. Für die Detailbeschreibung ist die Einsichtnahme in das Langgutachten unerlässlich! --- Der hier ausgewiesenen Verkehrswert versteht sich als Gesamtpreis (Wohnung und Tiefgarage) und entspricht der Summe der einzelnen Verkehrswerte (€ 276.000,00 für die Wohnung und € 25.000,00 für den Tiefgaragenabstellplatz) aller hier gegenständlichen Anteile (Top 03, Stpl. 06). Die unten angeführte Grundstücksgröße bezieht sich auf die gesamte Liegenschaft, wovon auf die Wohnung Top 03 und den Tiefgaragenabstellplatz-Stpl. 06 Wohnungseigentumsanteile von 70/772 entfallen.
Grundstücksgröße: 1.146 m²
Objektgröße: 53,22 m²
Schätzwert: 301.000,00
geringstes Gebot: 150.500,00
Vadium: 30.100,00
Langgutachten: Verkehrswertgutachten inkl Beilagen.pdfVerkehrswertgutachten inkl Beilagen.pdf  
Lageplan: Lageplan Ediktsdatei.JPGLageplan Ediktsdatei.JPG  
Grundriss: Top 03.jpgTop 03.jpg   Tiefgarage 06.jpgTiefgarage 06.jpg   Top 08.jpgTop 08.jpg   Tiefgarage 01.jpgTiefgarage 01.jpg  
Fotos: Deckblatt.JPGDeckblatt.JPG   DJI_0807.JPGDJI_0807.JPG  
Direktlink: https://edikte.justiz.gv.at/    (Eingebundene Vorschaubilder sind embedded content von edikte.justiz.gv.at; die Links verweisen direkt auf die entsprechende externe Seite.)


Stromkosten sparen durch Anbieterwechsel!
Großer Strompreisvergleich für Österreich.
Stromanbieter online vergleichen und
in nur 3 Minuten Vertrag abschließen.
Strompreisvergleich online: Strom
  Die Finanzierung für Ihren Hausbau:
Baufinanzierung & Baukredit-Rechner.
Maßgeschneidert und Top-Konditionen.
Schnelle & unbürokratische Abwicklung.
Monatsrate und Zinsen: Online-Rechner
  Autoversicherung online 04/2026.
Anbieter in ganz Österreich vergleichen
und damit bis zu 700 Euro sparen.
Versicherung bequem online abschließen.
Jetzt Prämie sparen: Autoversicherung

Ortsende Wien  ♦  Niederösterreich  ♦  Burgenland  ♦  Oberösterreich  ♦  Salzburg  ♦  Tirol  ♦  Vorarlberg  ♦  Steiermark  ♦  Kärnten   

| Impressum  |  Datenschutz |