Zwangsversteigerung: 4844 Regau Bachgasse 16 - gewerbliche Liegenschaft

Ortsanfang    Ortsanfang  


Wien  ♦  Niederösterreich  ♦  Burgenland  ♦  Oberösterreich  ♦  Salzburg  ♦  Tirol  ♦  Vorarlberg  ♦  Steiermark  ♦  Kärnten


Information   Details
Edikt: Versteigerung (06.05.2026)
Gericht - Aktenzeichen: BG Vöcklabruck (503) - 8 E 25/25h
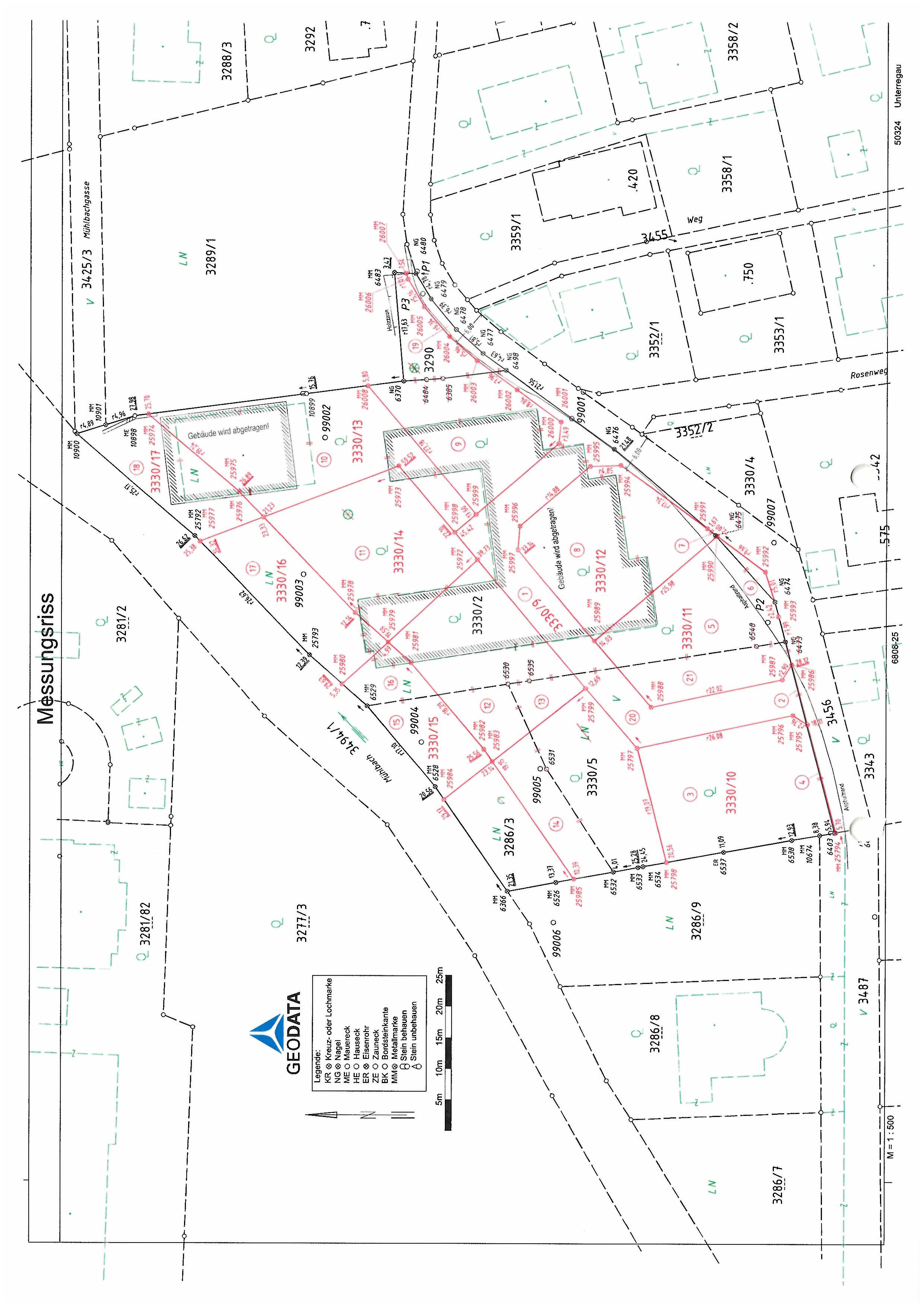
Liegenschaftsadresse: 4844 Regau Bachgasse 16
Kategorie: gewerbliche Liegenschaft
Objektbezeichnung: Abbruchreife Betriebsgebäude
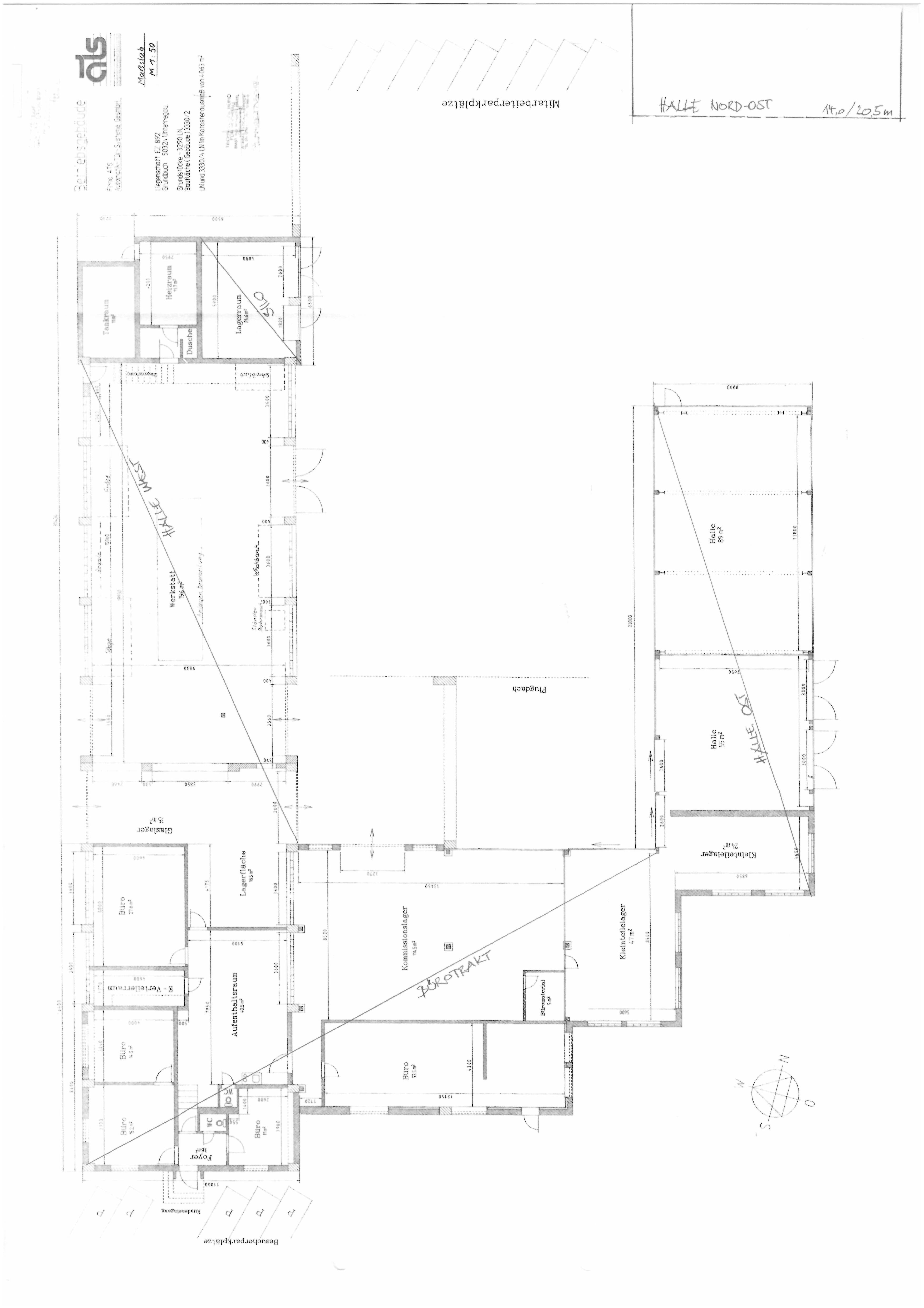
Beschreibung: Abbruchreife Betriebsgebäude Hallen, Bürotrakt, Technik- und Tankraum mit Spänesilo Rechtskräftiger Abbruchbescheid
Grundstücksgröße: 6.016 m²
Objektgröße: 1.235,00 m²
Schätzwert: 808.200,00
geringstes Gebot: 808.200,00
Vadium: 80.820,00
Langgutachten: VW_DOMUSLignumGmbH_Regau.pdfVW_DOMUSLignumGmbH_Regau.pdf  
Lageplan: GEODATA Teilungsplan Parzellierung.jpgGEODATA Teilungsplan Parzellierung.jpg  
Grundriss: Plan Bestand.jpgPlan Bestand.jpg  
Fotos: DSC08511.JPGDSC08511.JPG   DSC08535.JPGDSC08535.JPG   DSC08537.JPGDSC08537.JPG  
Direktlink: https://edikte.justiz.gv.at/    (Eingebundene Vorschaubilder sind embedded content von edikte.justiz.gv.at; die Links verweisen direkt auf die entsprechende externe Seite.)


Das Maximum herausholen!
Die besten Sparzinsen Österreichs.
Fix (Festgeld) oder flexibel (täglich fällig).
Kostenloser Online-Zinsvergleich.
04/2026: Sparzinsen
  Kredit umschulden und Kosten sparen
mit einem Umschuldungskredit.
Egal ob Ratenkredit oder Immobilienkredit.
Kredite zu Top-Konditionen umschulden.
Hier: die neue Kreditrate berechnen!
  Ihr Wohnkredit zu Top-Konditionen.
Kompetente, kostenlose Expertenberatung.
Für Hausbau oder Wohnungskauf.
Österreichweiter Marktvergleich.
Rasch und einfach: Wohnkredit-Rechner

Ortsende Wien  ♦  Niederösterreich  ♦  Burgenland  ♦  Oberösterreich  ♦  Salzburg  ♦  Tirol  ♦  Vorarlberg  ♦  Steiermark  ♦  Kärnten   

| Impressum  |  Datenschutz |