Zwangsversteigerung: 6710 Nenzing Bahnhofstraße 31 - Einfamilienhaus

Ortsanfang    Ortsanfang  


Wien  ♦  Niederösterreich  ♦  Burgenland  ♦  Oberösterreich  ♦  Salzburg  ♦  Tirol  ♦  Vorarlberg  ♦  Steiermark  ♦  Kärnten


Information   Details
Edikt: Versteigerung (29.10.2025)
Gericht - Aktenzeichen: BG Bludenz (900) - 12 E 25/24d
Liegenschaftsadresse: 6710 Nenzing Bahnhofstraße 31
Kategorie: Einfamilienhaus
Objektbezeichnung: Einfamilienwohnhaus
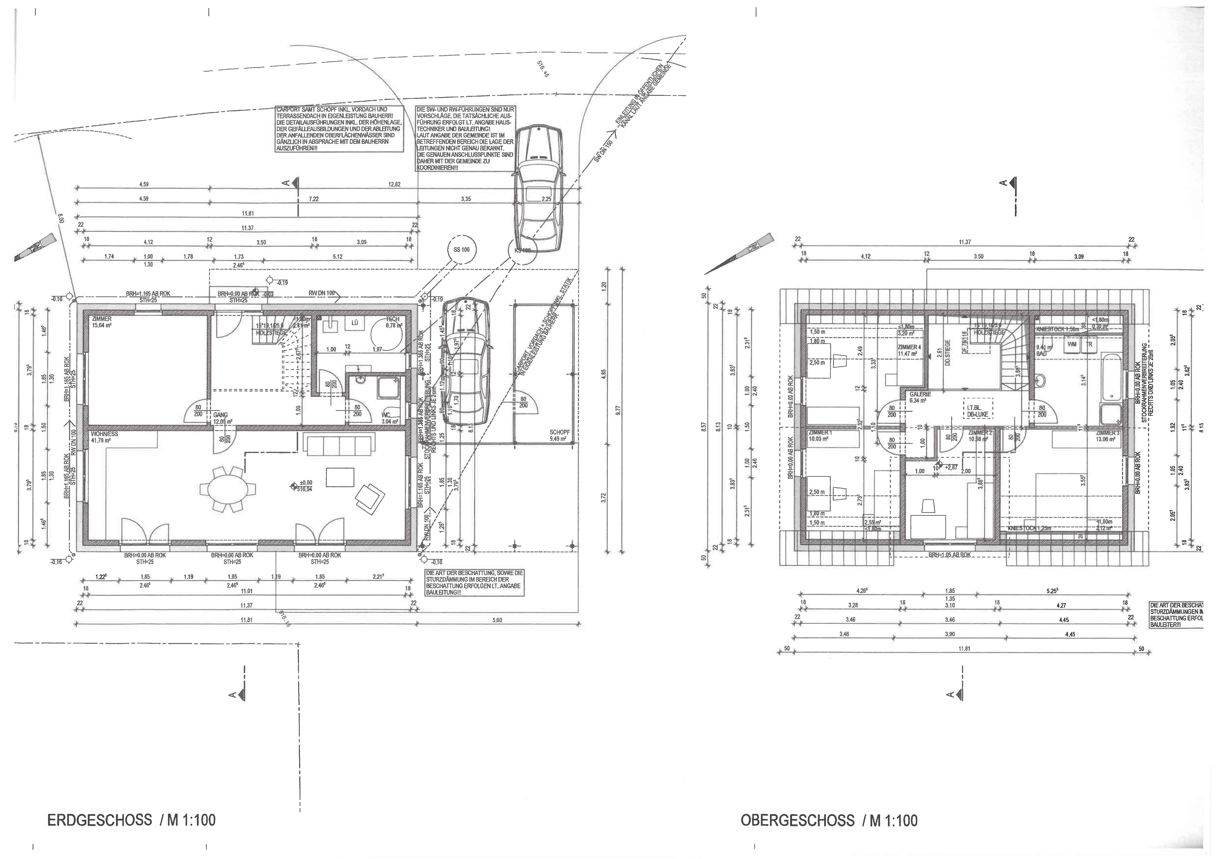
Beschreibung: Die gegenständliche Liegenschaft befindet sich in der Marktgemeinde Nenzing, im Kreuzungsbereich der L 190 Bundesstraße und der L 67 Bahnhofstraße. Die Entfernung in das Gemeindezentrum beträgt fußläufig ca. 5 Gehminuten. Auf Gst. 333/1 ist ein baubehördlich bewilligtes Einfamilienwohnhaus mit angebautem Carport/ Schopfausbau errichtet. Der vertikale Geschossaufbau zeigt sich mit einem Erdgeschoss und einem Obergeschoss.
Grundstücksgröße: 757 m²
Schätzwert: 597.000,00
geringstes Gebot: 302.000,00
Vadium: 60.400,00
mitzuversteigerndes Zubehör: Einbauküche, Waschtischunterbau und zwei Spiegelhängeschränke;
Wert des Zubehörs: 7.000,00
Langgutachten: VWGA DSGVO.pdf  
Lageplan: DKM_Luftbild M 1_1000.jpgDKM_Luftbild M 1_1000.jpg   DKM_Luftbild M 1_500.jpgDKM_Luftbild M 1_500.jpg   Flächenwidmung.jpgFlächenwidmung.jpg   Gefahrenzone.jpgGefahrenzone.jpg  
Grundriss: Grundrisse.jpgGrundrisse.jpg   Abstandsflächen_Schnitt.jpgAbstandsflächen_Schnitt.jpg  
Fotos: 001.JPG001.JPG   002.JPG002.JPG   003.JPG003.JPG   004.JPG004.JPG   005.JPG005.JPG   006.JPG006.JPG  
Direktlink: https://edikte.justiz.gv.at/    (Eingebundene Vorschaubilder sind embedded content von edikte.justiz.gv.at; die Links verweisen direkt auf die entsprechende externe Seite.)


Ihr Wohnkredit zu Top-Konditionen.
Kompetente, kostenlose Expertenberatung.
Für Hausbau oder Wohnungskauf.
Österreichweiter Marktvergleich.
Rasch und einfach: Wohnkredit-Rechner
  Supergünstig zum Eigenheim!
Über 60 Anbieter im kostenlosen
Online‑Kreditvergleich (Stand 10/2025)
Die besten Angebote - fix und variabel.
Top-Konditionen - schnell am Konto!
  Kredit umschulden und Kosten sparen
mit einem Umschuldungskredit.
Egal ob Ratenkredit oder Immobilienkredit.
Kredite zu Top-Konditionen umschulden.
Hier: die neue Kreditrate berechnen!

Ortsende Wien  ♦  Niederösterreich  ♦  Burgenland  ♦  Oberösterreich  ♦  Salzburg  ♦  Tirol  ♦  Vorarlberg  ♦  Steiermark  ♦  Kärnten   

| Impressum  |  Datenschutz |