Zwangsversteigerung: 1180 Wien Währinger Gürtel 3 - Mietshaus

Ortsanfang    Ortsanfang  


Wien  ♦  Niederösterreich  ♦  Burgenland  ♦  Oberösterreich  ♦  Salzburg  ♦  Tirol  ♦  Vorarlberg  ♦  Steiermark  ♦  Kärnten


Information   Details
Edikt: Versteigerung (06.05.2026)
Gericht - Aktenzeichen: BG Döbling (015) - 26 E 53/24x
Liegenschaftsadresse: 1180 Wien Währinger Gürtel 3
Kategorie: Mietshaus
Objektbezeichnung: Mehrparteienhaus
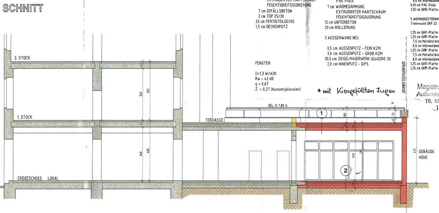
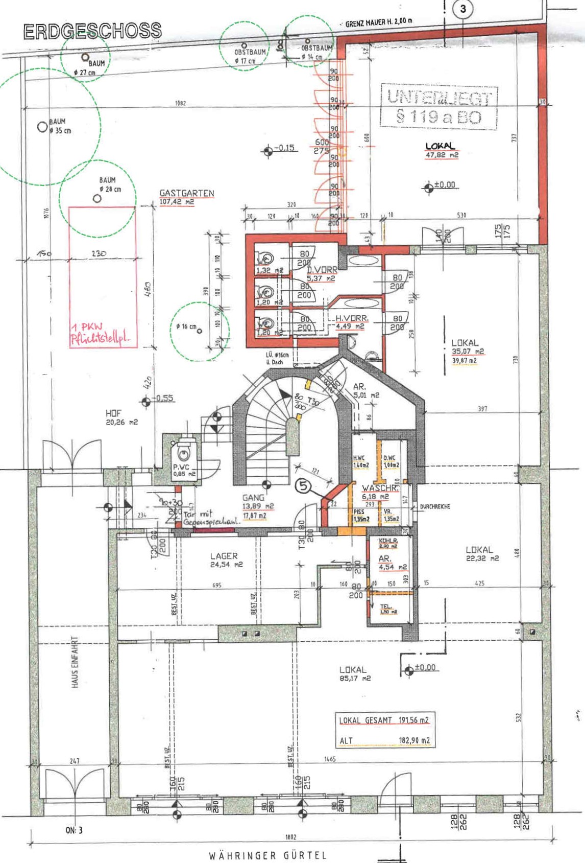
Beschreibung: Gründerzeitgebäude in geschlossener Bauweise Gliederung: Teilunterkellerung, Erdgeschoß (Eissalon) 1. - 3. Stock (insgesamt 5 Wohnungen) Dachboden. Individuelle Gas-Etagenheizungen, Radiatoren. Raumteilungen der Wohnungen in Natur stimmen nicht mit den Plandarstellungen im Bauakt überein. Eissalon EG vermietet, lt. Angabe des Verplichteten läuft in Gerichtsverfahren hinsichtlich der Mietvereinbarung. Wohnungen an einen Mieter befristet vermietet, derzeit durch Untermieter benützt.
Objektgröße: 720,00 m²
Schätzwert: 2.040.000,00
geringstes Gebot: 1.020.000,00
Vadium: 204.000,00
Langgutachten: GA 1180 Währinger Gürtel 3 gschw.pdfGA 1180 Währinger Gürtel 3 gschw.pdf   Beilagen zum Gutachten geschw.pdfBeilagen zum Gutachten geschw.pdf  
Lageplan: Karte-9.jpgKarte-9.jpg  
Grundriss: GR KG.jpgGR KG.jpg   GR EG.jpgGR EG.jpg   GR 1.jpgGR 1.jpg   GR 2.JPGGR 2.JPG   GR 3.JPGGR 3.JPG   Schnitt.jpgSchnitt.jpg   Schnitt Anbau.jpgSchnitt Anbau.jpg  
Fotos: DSC01047kl.jpgDSC01047kl.jpg   GA - 1.jpgGA - 1.jpg   GA - 2.jpgGA - 2.jpg   GA - 3.jpgGA - 3.jpg   GA - 4.jpgGA - 4.jpg   GA - 5.jpgGA - 5.jpg   GA - 6.jpgGA - 6.jpg   GA - 7.jpgGA - 7.jpg   GA - 8.jpgGA - 8.jpg   GA - 9.jpgGA - 9.jpg   GA - 10.jpgGA - 10.jpg   GA - 11.jpgGA - 11.jpg   GA - 12.jpgGA - 12.jpg   GA - 13.jpgGA - 13.jpg   GA - 14.jpgGA - 14.jpg   GA - 15.jpgGA - 15.jpg   GA - 16.jpgGA - 16.jpg   GA - 17.jpgGA - 17.jpg   GA - 18.jpgGA - 18.jpg   GA - 19.jpgGA - 19.jpg   GA - 20.jpgGA - 20.jpg   GA - 21.jpgGA - 21.jpg   GA - 22.jpgGA - 22.jpg   GA - 23.jpgGA - 23.jpg   GA - 24.jpgGA - 24.jpg   GA - 25.jpgGA - 25.jpg   GA - 26.jpgGA - 26.jpg   GA - 27.jpgGA - 27.jpg   GA - 28.jpgGA - 28.jpg   GA - 29.jpgGA - 29.jpg   GA - 30.jpgGA - 30.jpg   GA - 31.jpgGA - 31.jpg   GA - 32.jpgGA - 32.jpg  
Direktlink: https://edikte.justiz.gv.at/    (Eingebundene Vorschaubilder sind embedded content von edikte.justiz.gv.at; die Links verweisen direkt auf die entsprechende externe Seite.)


Top Versicherungsschutz für Ihre Immobilie.
Durch online-Preisvergleich zur besten Eigenheimversicherung.
Top aktuelle Angebote: Stand 04/2026
Online-Test: Eigenheimversicherung
  Geld sparen durch Gaspreisvergleich.
Gasanbieter vergleichen, wechseln und
damit mehrere hundert Euro sparen.
Kostenlos und unverbindlich - alles online.
Jetzt österreichweit Gaspreise vergleichen.
  Autoversicherung online 04/2026.
Anbieter in ganz Österreich vergleichen
und damit bis zu 700 Euro sparen.
Versicherung bequem online abschließen.
Jetzt Prämie sparen: Autoversicherung

Ortsende Wien  ♦  Niederösterreich  ♦  Burgenland  ♦  Oberösterreich  ♦  Salzburg  ♦  Tirol  ♦  Vorarlberg  ♦  Steiermark  ♦  Kärnten   

| Impressum  |  Datenschutz |