Zwangsversteigerung: 7000 Eisenstadt Georgistraße 36a/5 - Wohnungseigentumsobjekt

Ortsanfang    Ortsanfang  


Wien  ♦  Niederösterreich  ♦  Burgenland  ♦  Oberösterreich  ♦  Salzburg  ♦  Tirol  ♦  Vorarlberg  ♦  Steiermark  ♦  Kärnten


Information   Details
Edikt: Versteigerung (20.10.2025)
Gericht - Aktenzeichen: BG Eisenstadt (300) - 5 E 10/25h
Liegenschaftsadresse: 7000 Eisenstadt Georgistraße 36a/5
Kategorie: Wohnungseigentumsobjekt
Objektbezeichnung: Wohn. 7000 E, Georgistr. 36a/5
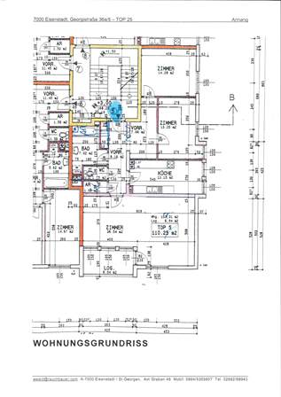
Beschreibung: Allgemeines: Das Grundstück ist in offener Bauweise mit fünf Wohnhäusern und einer Tiefgarage verbaut. Weiters sind KFZ- und Fahrradabstellplätze, sowie Kinderspielplätze errichtet. Die Zufahrtsstraßen und Hauszugänge sind befestigt, die restlichen Grundstücksflächen begrünt. Die fünf Wohnhäuser wurden einzeln am Grundstück situiert. Im nördlichen Bereich zu Seite Georgistraße ist eine Tiefgarage mit 119 KFZ-Abstellplätzen errichtet worden. Die Stiegen der Wohnhäuser A und D sind direkt mit der Garage verbunden. Die Situierung des Wohnhauses B mit 14 Wohnungen erfolgte im südöstlichen Grundstücksbereich. Es besteht aus einem Erdge-schoss, 1. und 2. Stock mit je vier Wohnungen und einem Dachgeschoss mit zwei Wohnungen. Im Erdgeschoss ist weiters ein allgemeiner Abstellraum untergebracht. Der Keller umfasst neben den Lagerräumen der Wohnungen noch acht Räume, die als Waschküche, Trocken-, Hobby-, oder Abstellräume genutzt werden. Energiekennzahl: Der Energieausweis für das Haus B vom 31.08.2020 dokumentiert als Energiekennzahl einen Heizwärme-bedarf (HWBSK) von 57,03 kWh/m²a und einen Gesamtenergieeffizienzfaktor (fgEE) von 1,289. Beschreibung TOP 25 - Wohnung B/I/5/1.OG.: 7000 Eisenstadt, Georgistraße 36a/5. Lage: Stiege B, 1. Stock, Ecklage, zu Seite Osten und Süden ausgerichtet. An Räumen sind vorhanden: Zwei Vorräume, Küche, zwei Zimmer, Wohnzimmer mit einem Ausgang auf die südseitige Loggia, Bad, WC und ein Abstellraum, sowie ein Kellerabteil und der KFZ-Tiefgaragenstellplatz Nr.: 58. Ausstattung: Eingang über eine Holzvollbautüre in einem Stahlzargenstock. In den Wohnräumen Laminatfußböden, auf der Loggia sind Fliesen verlegt. Wände und Decken gemalt, Innentüren aus beschichteten Vollbautürblättern in Stahlblechzargen, zum Wohnzimmer eine Glas-schiebetüre. Die Sanitärräume haben Boden- und Wandfliesen auf ca. 2,00m Höhe. Im Bad sind ein Waschtisch, eine Badewanne, eine fußbodenebene Dusche mit Spritzschutz, ein Waschmaschinenanschluss und die Gastherme installiert. Das WC ist mit einem Klosett und Waschtisch ausgestattet. Eine Klimaanlage, bestehend aus einem Außengerät auf der Loggia und zwei Innengeräten wurde montiert. Als Zusatzheizung ist ein Kachelofen vorhanden. Der Bau- und Erhaltungszustand der Wohnungseigentumsobjekte ist soweit zugänglich und wahrnehmbar als gut zu bezeichnen. Die Beschaffenheit der Allgemeinen Teile entspricht dem Alter des Gebäudes. Die Ausstattungsqualität der gegenständlichen Wohnung kann als sehr gut eingestuft werden. An den Fassaden zeigen sich Abnützungen, Verfärbungen durch Schleierbildungen auf der Putzoberfläche und diverse Risse. Im Sockelbereich blättert die Beschichtung zum Teil ab. Die Holzteile bei Fenstern und der Garagenabfahrtsüberdachung sind partiell abgewittert. Im Kellergeschoss sind an den Außenwänden einzelne Feuchtigkeitsstellen ersichtlich. Die Bodenbeschichtung und der Asphaltbelag in der Garage sind teilweise abgenutzt. Einige Kellertüren sind schadhaft, Verblechungen zum Teil verformt. Im Wandverputz sind einzelne Risse und Putzschäden vorhanden, sowie etliche Betonpflastersteine brüchig, bzw. abgesackt. Die Funktionsfähigkeit der Haustechnikanlagen konnte nicht überprüft werden. Es wird davon ausgegangen, dass diese dem Alter entsprechend funktionstüchtig und betriebsbereit sind. Die nötigen Instandhaltungsarbeiten werden nach Bedarf durchgeführt. Sanierungsarbeiten größeren Umfanges sind derzeit nicht erforderlich.
Grundstücksgröße: 14.952 m²
Objektgröße: 110,28 m²
Schätzwert: 254.000,00
geringstes Gebot: 127.000,00
Vadium: 25.400,00
mitzuversteigerndes Zubehör: Sämtliche beweglichen Einrichtungsgegenstände sind in der Schätzung nicht enthalten.
Wert des Zubehörs: nicht festgestellt
Langgutachten: Langgutachten.pdf  
Lageplan: Lageplan.jpgLageplan.jpg  
Grundriss: Wohnungsgrundriss.jpgWohnungsgrundriss.jpg  
Fotos: DSC02619.JPGDSC02619.JPG   DSC02624.JPGDSC02624.JPG   DSC02625.JPGDSC02625.JPG   DSC02629.JPGDSC02629.JPG   DSC02630.JPGDSC02630.JPG  
Direktlink: https://edikte.justiz.gv.at/    (Eingebundene Vorschaubilder sind embedded content von edikte.justiz.gv.at; die Links verweisen direkt auf die entsprechende externe Seite.)


Autoversicherung online 10/2025.
Anbieter in ganz Österreich vergleichen
und damit bis zu 700 Euro sparen.
Versicherung bequem online abschließen.
Jetzt Prämie sparen: Autoversicherung
  Geld sparen durch Gaspreisvergleich.
Gasanbieter vergleichen, wechseln und
damit mehrere hundert Euro sparen.
Kostenlos und unverbindlich - alles online.
Jetzt österreichweit Gaspreise vergleichen.
  Stromkosten sparen durch Anbieterwechsel!
Großer Strompreisvergleich für Österreich.
Stromanbieter online vergleichen und
in nur 3 Minuten Vertrag abschließen.
Strompreisvergleich online: Strom

Ortsende Wien  ♦  Niederösterreich  ♦  Burgenland  ♦  Oberösterreich  ♦  Salzburg  ♦  Tirol  ♦  Vorarlberg  ♦  Steiermark  ♦  Kärnten   

| Impressum  |  Datenschutz |