Zwangsversteigerung: 9900 Lienz Tristacher Straße 34 - Mehrfamilienhaus

Ortsanfang    Ortsanfang  


Wien  ♦  Niederösterreich  ♦  Burgenland  ♦  Oberösterreich  ♦  Salzburg  ♦  Tirol  ♦  Vorarlberg  ♦  Steiermark  ♦  Kärnten


Information   Details
Edikt: Versteigerung (17.11.2025)
Gericht - Aktenzeichen: BG Lienz (850) - 30 E 4/25b
Liegenschaftsadresse: 9900 Lienz Tristacher Straße 34
Kategorie: Mehrfamilienhaus
Objektbezeichnung: Mehrfamilienhaus
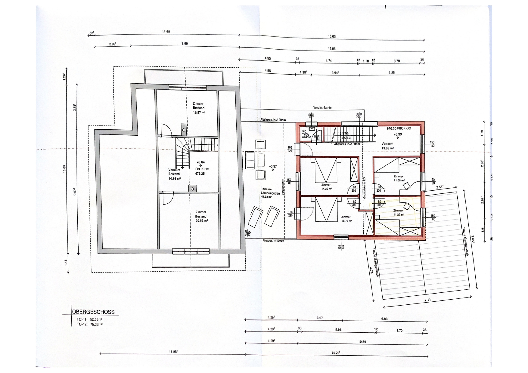
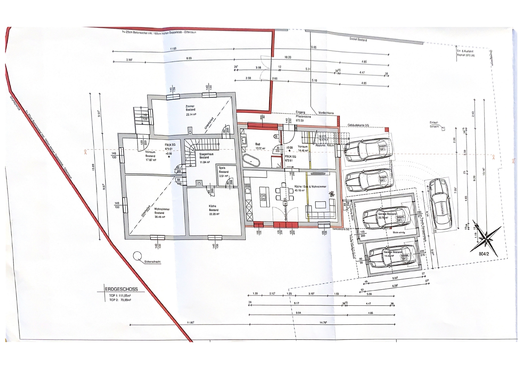
Beschreibung: Die Liegenschaft besteht aus einem Mehrfamilienhaus. Dabei ist einem Altbau durch einen Zubau eine zweite Wohnung angebaut. Wohnungseigentum wurde nicht begründet. Zusätzlich bestehen zwei Garagen.
Grundstücksgröße: 1.118 m²
Objektgröße: 329,28 m²
Schätzwert: 650.000,00
geringstes Gebot: 325.000,00
Vadium: 65.000,00
Langgutachten: O_28_25 Gutachten.pdfO_28_25 Gutachten.pdf  
Lageplan: Beilage 14 Kataster_2025-04-18-page-00001.jpgBeilage 14 Kataster_2025-04-18-page-00001.jpg  
Grundriss: Beilage 05 2020 Neubau-page-00001.jpgBeilage 05 2020 Neubau-page-00001.jpg   Beilage 05 2020 Neubau-page-00002.jpgBeilage 05 2020 Neubau-page-00002.jpg   Beilage 06 Altbau Pläne-page-00001.jpgBeilage 06 Altbau Pläne-page-00001.jpg   Beilage 06 Altbau Pläne-page-00002.jpgBeilage 06 Altbau Pläne-page-00002.jpg   Beilage 06 Altbau Pläne-page-00003.jpgBeilage 06 Altbau Pläne-page-00003.jpg  
Fotos: Beilage 07 Altbau EG-page-00001.jpgBeilage 07 Altbau EG-page-00001.jpg   Beilage 08 Altbau KG-page-00001.jpgBeilage 08 Altbau KG-page-00001.jpg   Beilage 09 Altbau OG-page-00001.jpgBeilage 09 Altbau OG-page-00001.jpg   Beilage 10 Gebäude und Garten-page-00001.jpgBeilage 10 Gebäude und Garten-page-00001.jpg   Beilage 10 Gebäude und Garten-page-00002.jpgBeilage 10 Gebäude und Garten-page-00002.jpg   Beilage 11 Neubau-page-00001.jpgBeilage 11 Neubau-page-00001.jpg   Beilage 11 Neubau-page-00002.jpgBeilage 11 Neubau-page-00002.jpg  
Direktlink: https://edikte.justiz.gv.at/    (Eingebundene Vorschaubilder sind embedded content von edikte.justiz.gv.at; die Links verweisen direkt auf die entsprechende externe Seite.)


Supergünstig zum Eigenheim!
Über 60 Anbieter im kostenlosen
Online‑Kreditvergleich (Stand 10/2025)
Die besten Angebote - fix und variabel.
Top-Konditionen - schnell am Konto!
  Kredit umschulden und Kosten sparen
mit einem Umschuldungskredit.
Egal ob Ratenkredit oder Immobilienkredit.
Kredite zu Top-Konditionen umschulden.
Hier: die neue Kreditrate berechnen!
  Autoversicherung online 10/2025.
Anbieter in ganz Österreich vergleichen
und damit bis zu 700 Euro sparen.
Versicherung bequem online abschließen.
Jetzt Prämie sparen: Autoversicherung

Ortsende Wien  ♦  Niederösterreich  ♦  Burgenland  ♦  Oberösterreich  ♦  Salzburg  ♦  Tirol  ♦  Vorarlberg  ♦  Steiermark  ♦  Kärnten   

| Impressum  |  Datenschutz |