Zwangsversteigerung: 6370 Kitzbühel Burgstallstraße 16 - Sonstiges

Ortsanfang    Ortsanfang  


Wien  ♦  Niederösterreich  ♦  Burgenland  ♦  Oberösterreich  ♦  Salzburg  ♦  Tirol  ♦  Vorarlberg  ♦  Steiermark  ♦  Kärnten


Information   Details
Edikt: Versteigerung (14.01.2026)
Gericht - Aktenzeichen: BG Kitzbühel (821) - 3 E 3457/23k
Liegenschaftsadresse: 6370 Kitzbühel Burgstallstraße 16
Kategorie: Sonstiges
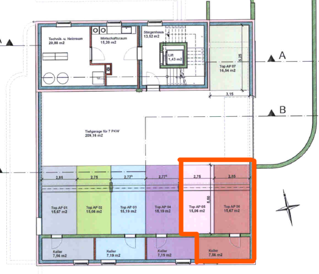
Objektbezeichnung: Stellplatz Nr.5
Beschreibung: Hierbei handelt es sich um ein KFZ Abstellplatz.
Schätzwert: 35.000,00
geringstes Gebot: 17.500,00
Vadium: 3.500,00
Langgutachten: Gutachten_3E 3457_23k_FINAL.pdf  
Lageplan: Lageplan.pngLageplan.png  
Grundriss: Grundriss TG.pngGrundriss TG.png   Grundriss_Wohnung_Top_3.pngGrundriss_Wohnung_Top_3.png  
Fotos: Bad.jpgBad.jpg   Balkon.jpgBalkon.jpg   Foyer.jpgFoyer.jpg   Küche.jpgKüche.jpg   Schlafzimmer_1.jpgSchlafzimmer_1.jpg   Schlafzimmer_2.jpgSchlafzimmer_2.jpg   Schlafzimmer_3.jpgSchlafzimmer_3.jpg   Ansicht_außen_1.jpgAnsicht_außen_1.jpg   Ansicht_außen_2.jpgAnsicht_außen_2.jpg   Tiefgarage_1.jpgTiefgarage_1.jpg   Tiefgarage_2.jpgTiefgarage_2.jpg   Wohnessbereich_1.jpgWohnessbereich_1.jpg   Wohnessbereich_2.jpgWohnessbereich_2.jpg  
Direktlink: https://edikte.justiz.gv.at/    (Eingebundene Vorschaubilder sind embedded content von edikte.justiz.gv.at; die Links verweisen direkt auf die entsprechende externe Seite.)


Autoversicherung online 10/2025.
Anbieter in ganz Österreich vergleichen
und damit bis zu 700 Euro sparen.
Versicherung bequem online abschließen.
Jetzt Prämie sparen: Autoversicherung
  Kredit umschulden und Kosten sparen
mit einem Umschuldungskredit.
Egal ob Ratenkredit oder Immobilienkredit.
Kredite zu Top-Konditionen umschulden.
Hier: die neue Kreditrate berechnen!
  Supergünstig zum Eigenheim!
Über 60 Anbieter im kostenlosen
Online‑Kreditvergleich (Stand 10/2025)
Die besten Angebote - fix und variabel.
Top-Konditionen - schnell am Konto!

Ortsende Wien  ♦  Niederösterreich  ♦  Burgenland  ♦  Oberösterreich  ♦  Salzburg  ♦  Tirol  ♦  Vorarlberg  ♦  Steiermark  ♦  Kärnten   

| Impressum  |  Datenschutz |