Zwangsversteigerung: 6232 Münster Entgasse 30i - Zweifamilienhaus

Ortsanfang    Ortsanfang  


Wien  ♦  Niederösterreich  ♦  Burgenland  ♦  Oberösterreich  ♦  Salzburg  ♦  Tirol  ♦  Vorarlberg  ♦  Steiermark  ♦  Kärnten


Information   Details
Edikt: Versteigerung (27.05.2026)
Gericht - Aktenzeichen: BG Rattenberg (831) - 4 E 2461/25d
Liegenschaftsadresse: 6232 Münster Entgasse 30i
Kategorie: Zweifamilienhaus
Objektbezeichnung: Doppelhaushälfte 6232 Münster
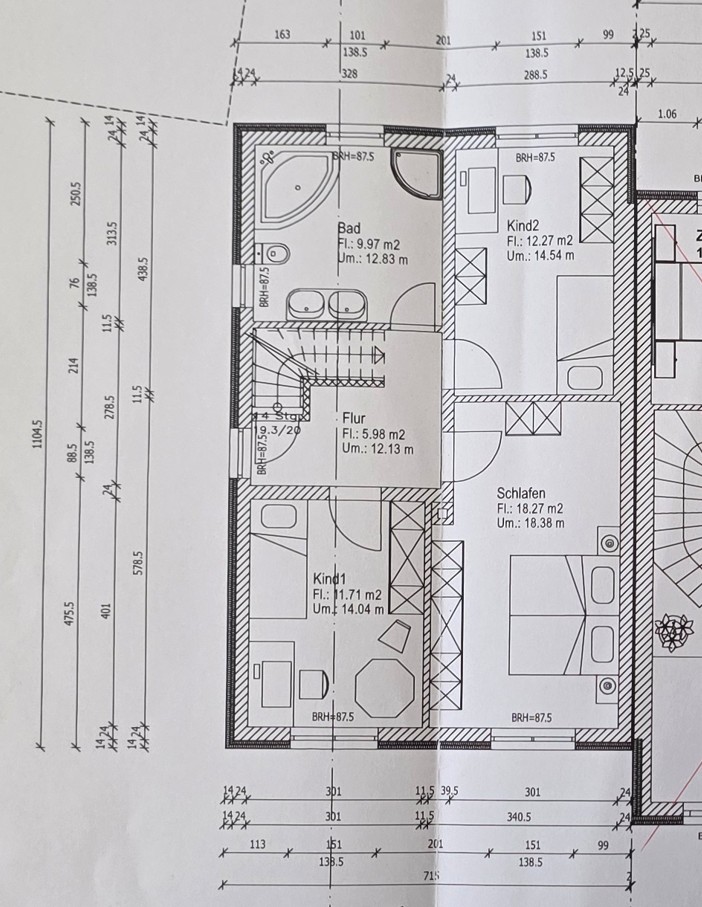
Beschreibung: Es handelt sich um eine Doppelhaushälfte (Einfamilienwohnhaus) in Massivbauweise, gelegen in der Entgasse 30i in 6232 Münster. Das Gebäude wurde im Jahr 2008 errichtet und verfügt über ein Erdgeschoss, ein Obergeschoss sowie ein Dachgeschoss (E+2) ohne Keller. Die gesamte Wohnnutzfläche beträgt ca. 143,67 m². Zum Objekt gehören zudem ein Nebengebäude (Lager) mit ca. 28 m² sowie ein Flugdach mit einer Fläche von ca. 40 m². Die Lektüre des Langgutachtens ist unerlässlich. Auf die Abbildungen der einzelnen Räume sowie sonstiger Beilagen im Langgutachten wird verwiesen.
Grundstücksgröße: 139 m²
Objektgröße: 143,67 m²
Schätzwert: 700.000,00
geringstes Gebot: 350.000,00
Vadium: 70.000,00
mitzuversteigerndes Zubehör: ohne Inventar bewertet
Wert des Zubehörs: nicht festgestellt
Langgutachten: 20260305 LSB Exekution - Schrettl Münster_signiert.pdf20260305 LSB Exekution - Schrettl Münster_signiert.pdf  
Lageplan: Lageplan.JPGLageplan.JPG  
Grundriss: Grundriss OG.JPGGrundriss OG.JPG   Grundriss EG.JPGGrundriss EG.JPG   Grundriss DG.JPGGrundriss DG.JPG   schnitt.JPGschnitt.JPG  
Fotos: 20260123_093111.jpg20260123_093111.jpg  
Direktlink: https://edikte.justiz.gv.at/    (Eingebundene Vorschaubilder sind embedded content von edikte.justiz.gv.at; die Links verweisen direkt auf die entsprechende externe Seite.)


Geld sparen durch Gaspreisvergleich.
Gasanbieter vergleichen, wechseln und
damit mehrere hundert Euro sparen.
Kostenlos und unverbindlich - alles online.
Jetzt österreichweit Gaspreise vergleichen.
  Die Finanzierung für Ihren Hausbau:
Baufinanzierung & Baukredit-Rechner.
Maßgeschneidert und Top-Konditionen.
Schnelle & unbürokratische Abwicklung.
Monatsrate und Zinsen: Online-Rechner
  Ideal für Beträge von 1.000 € bis 75.000 €
Der Ratenkredit aus dem Internet.
Einfach Zuhause die Anbieter vergleichen.
Abschluss online - schnell am Konto!
Hier: Kreditrate und Zinssatz berechnen!

Ortsende Wien  ♦  Niederösterreich  ♦  Burgenland  ♦  Oberösterreich  ♦  Salzburg  ♦  Tirol  ♦  Vorarlberg  ♦  Steiermark  ♦  Kärnten   

| Impressum  |  Datenschutz |