Zwangsversteigerung: 7143 Apetlon Nationalparkgasse 7 - Einfamilienhaus

Ortsanfang    Ortsanfang  


Wien  ♦  Niederösterreich  ♦  Burgenland  ♦  Oberösterreich  ♦  Salzburg  ♦  Tirol  ♦  Vorarlberg  ♦  Steiermark  ♦  Kärnten


Information   Details
Edikt: Versteigerung (02.06.2026)
Gericht - Aktenzeichen: BG Neusiedl am See (320) - 4 E 39/25z
Liegenschaftsadresse: 7143 Apetlon Nationalparkgasse 7
Kategorie: Einfamilienhaus
Objektbezeichnung: Wohnhaus
Beschreibung: Wohnhaus in Leichtbauweise bestehend aus KG, EG, DG mit Satteldachabschluss
Grundstücksgröße: 1.180 m²
Objektgröße: 137,57 m²
Schätzwert: 287.200,00
geringstes Gebot: 143.600,00
Vadium: 28.720,00
mitzuversteigerndes Zubehör: .
Langgutachten: SV Gutachten 320 4 E 39-25z.pdfSV Gutachten 320 4 E 39-25z.pdf  
Lageplan: BaubewilligungPlanBaubeschreibung-0004.jpgBaubewilligungPlanBaubeschreibung-0004.jpg  
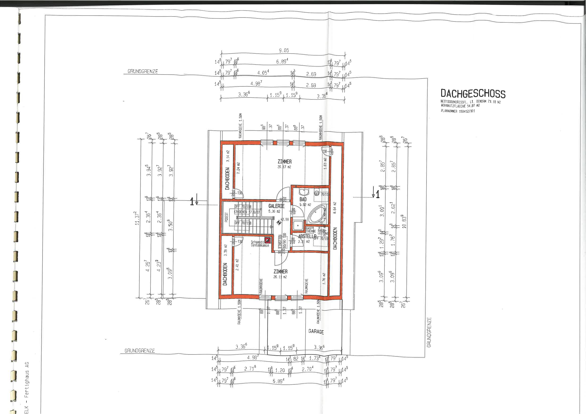
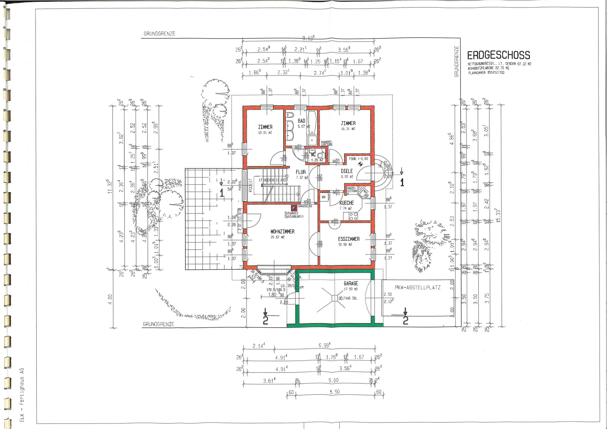
Grundriss: BaubewilligungPlanBaubeschreibung-0006.jpgBaubewilligungPlanBaubeschreibung-0006.jpg   BaubewilligungPlanBaubeschreibung-0007.jpgBaubewilligungPlanBaubeschreibung-0007.jpg  
Fotos: IMG_4845_2.JPGIMG_4845_2.JPG   IMG_4854_2.JPGIMG_4854_2.JPG   IMG_4873_2.JPGIMG_4873_2.JPG   IMG_4869_2.JPGIMG_4869_2.JPG  
Direktlink: https://edikte.justiz.gv.at/    (Eingebundene Vorschaubilder sind embedded content von edikte.justiz.gv.at; die Links verweisen direkt auf die entsprechende externe Seite.)


Supergünstig zum Eigenheim!
Über 60 Anbieter im kostenlosen
Online‑Kreditvergleich (Stand 04/2026)
Die besten Angebote - fix und variabel.
Top-Konditionen - schnell am Konto!
  Top Versicherungsschutz für Ihre Immobilie.
Durch online-Preisvergleich zur besten Eigenheimversicherung.
Top aktuelle Angebote: Stand 04/2026
Online-Test: Eigenheimversicherung
  Ideal für Beträge von 1.000 € bis 75.000 €
Der Ratenkredit aus dem Internet.
Einfach Zuhause die Anbieter vergleichen.
Abschluss online - schnell am Konto!
Hier: Kreditrate und Zinssatz berechnen!

Ortsende Wien  ♦  Niederösterreich  ♦  Burgenland  ♦  Oberösterreich  ♦  Salzburg  ♦  Tirol  ♦  Vorarlberg  ♦  Steiermark  ♦  Kärnten   

| Impressum  |  Datenschutz |