Zwangsversteigerung: 2824 Seebenstein Sauterner Straße 3 - Einfamilienhaus

Ortsanfang    Ortsanfang  


Wien  ♦  Niederösterreich  ♦  Burgenland  ♦  Oberösterreich  ♦  Salzburg  ♦  Tirol  ♦  Vorarlberg  ♦  Steiermark  ♦  Kärnten


Information   Details
Edikt: Zuschlag mit Überbot
Gericht - Aktenzeichen: BG Neunkirchen (233) - 9 E 20/25m
Liegenschaftsadresse: 2824 Seebenstein Sauterner Straße 3
Kategorie: Einfamilienhaus
Objektbezeichnung: Wohngebäude
Meistbot: 89.796,00
Überbot Frist: 14 Tage
Überbot Minimum: 112.245,00
Langgutachten: GA_AWZ - Stangl.pdfGA_AWZ - Stangl.pdf  
Lageplan: ortho.jpgortho.jpg   ortho 02.jpgortho 02.jpg  
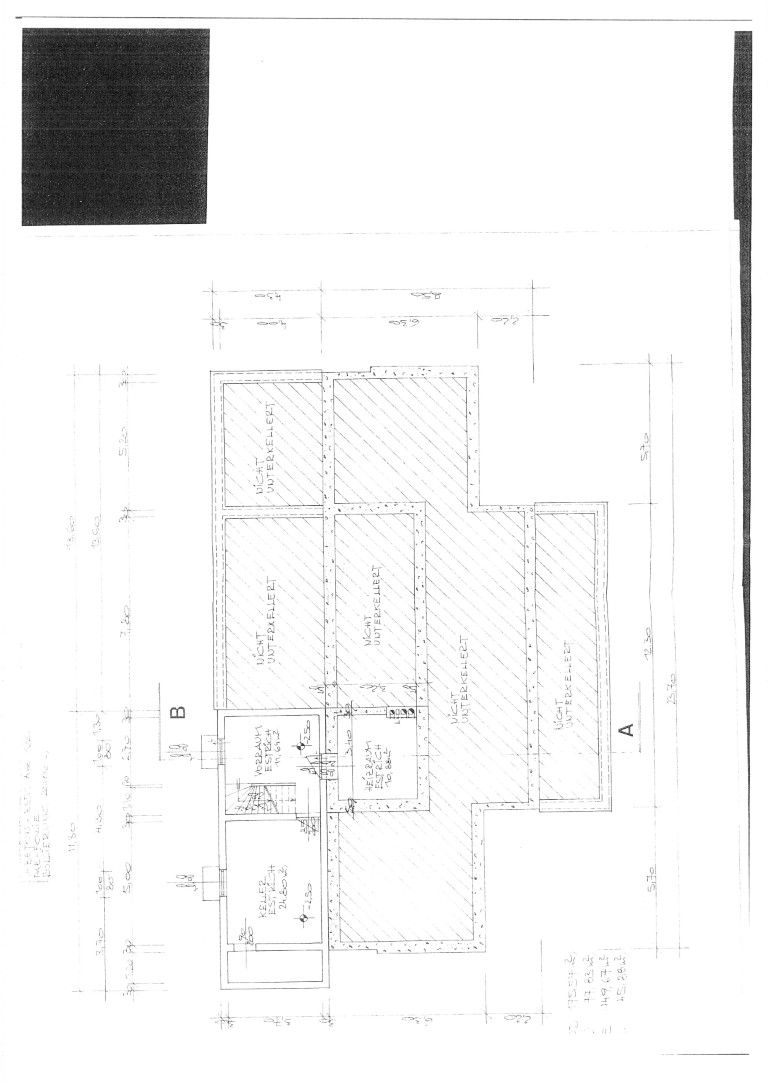
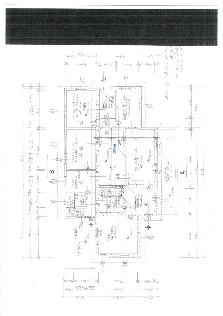
Grundriss: keller.jpgkeller.jpg   erdgeschoss.jpgerdgeschoss.jpg   dachausbau.jpgdachausbau.jpg  
Fotos: Wohngebäude.JPGWohngebäude.JPG   Wohnzimmer.JPGWohnzimmer.JPG   Badezimmer.JPGBadezimmer.JPG   Küche.JPGKüche.JPG   WC.JPGWC.JPG   DG Schlafzimmer.JPGDG Schlafzimmer.JPG   KG Waschküche.JPGKG Waschküche.JPG   Pool mit Poolhaus.JPGPool mit Poolhaus.JPG   Holzlager.JPGHolzlager.JPG   Garagen.JPGGaragen.JPG   Müllplatz.JPGMüllplatz.JPG   Vorgarten.JPGVorgarten.JPG   Biotop.JPGBiotop.JPG   Zufahrt zur Garage.JPGZufahrt zur Garage.JPG   Bewaldet.JPGBewaldet.JPG   Holzhütte.JPGHolzhütte.JPG  
Direktlink: https://edikte.justiz.gv.at/    (Eingebundene Vorschaubilder sind embedded content von edikte.justiz.gv.at; die Links verweisen direkt auf die entsprechende externe Seite.)


Das Maximum herausholen!
Die besten Sparzinsen Österreichs.
Fix (Festgeld) oder flexibel (täglich fällig).
Kostenloser Online-Zinsvergleich.
04/2026: Sparzinsen
  Ihr Wohnkredit zu Top-Konditionen.
Kompetente, kostenlose Expertenberatung.
Für Hausbau oder Wohnungskauf.
Österreichweiter Marktvergleich.
Rasch und einfach: Wohnkredit-Rechner
  Geld sparen durch Gaspreisvergleich.
Gasanbieter vergleichen, wechseln und
damit mehrere hundert Euro sparen.
Kostenlos und unverbindlich - alles online.
Jetzt österreichweit Gaspreise vergleichen.

Ortsende Wien  ♦  Niederösterreich  ♦  Burgenland  ♦  Oberösterreich  ♦  Salzburg  ♦  Tirol  ♦  Vorarlberg  ♦  Steiermark  ♦  Kärnten   

| Impressum  |  Datenschutz |