Zwangsversteigerung: 6531 Ried im Oberinntal Ried i.O. 344 - Zweifamilienhaus

Ortsanfang    Ortsanfang  


Wien  ♦  Niederösterreich  ♦  Burgenland  ♦  Oberösterreich  ♦  Salzburg  ♦  Tirol  ♦  Vorarlberg  ♦  Steiermark  ♦  Kärnten


Information   Details
Edikt: Versteigerung (30.04.2026)
Gericht - Aktenzeichen: BG Landeck (840) - 11 E 7/23x
Liegenschaftsadresse: 6531 Ried im Oberinntal Ried i.O. 344
Kategorie: Zweifamilienhaus
Objektbezeichnung: Wohnhaus (Zweifamilienhaus)
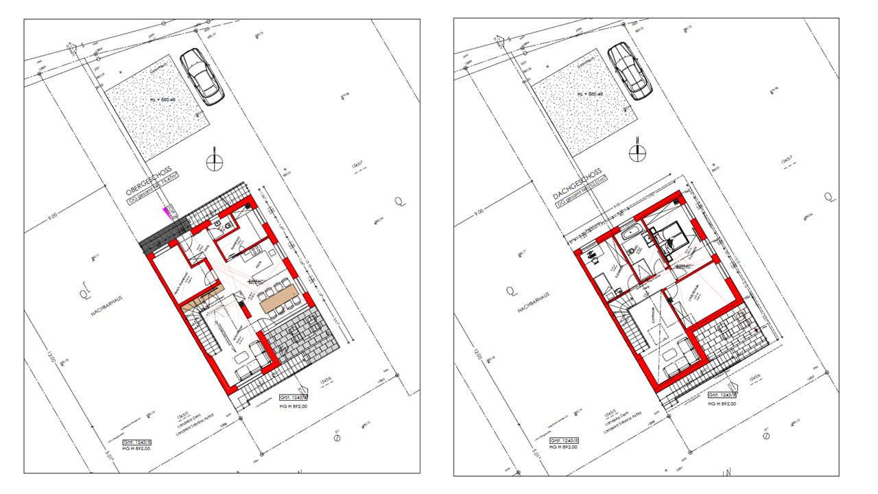
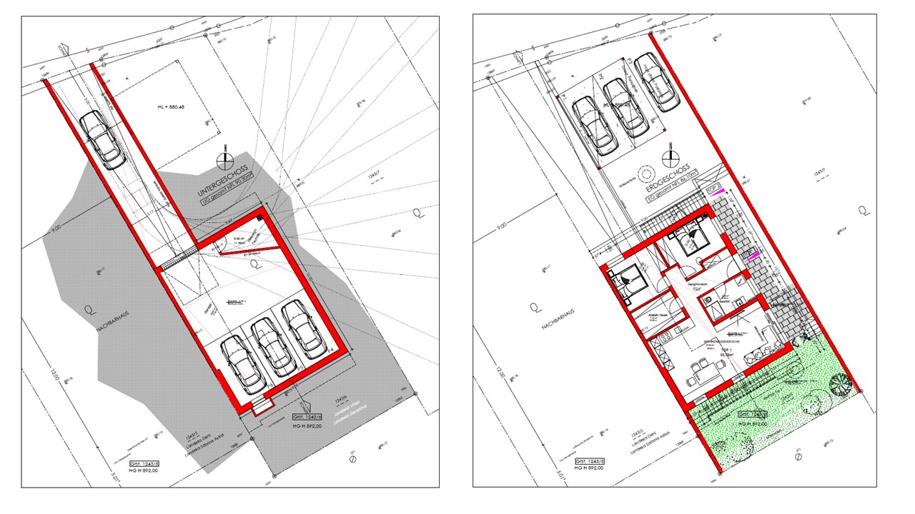
Beschreibung: Im Untergeschoß befinden sich Garage sowie Technikraum. Dieses Geschoß ist von den darüberliegenden Wohnetagen nicht unmittelbar, sondern nur von Nordwesten her über Vorplatz und Rampe erreichbar, innenliegende Treppe besteht keine. Der Zugang zur Wohnung TOP 1 im Erdgeschoß befindet sich an der Gebäudenordostseite und erfolgt unmittelbar in den Gang/Vorraum. Die Wohnung verfügt neben der Erschließungsfläche über zwei Schlafzimmer, Abstellraum/Speis, Bad/WC und offenen Wohn-/Essbereich mit östlich vorgelagerter (noch nicht fertiggestellter) Terrasse. Die Wohnfläche beträgt 85,76 m². Die zweigeschoßige Wohnung in Ober- und Dachgeschoß (in den Plänen als TOP 2 bezeichnet) erreicht man über eine nordseitige Außentreppe samt Zugangspodest. Im Obergeschoß befinden sich Gang, WC, Abstellraum, Waschraum, Küche (mit Essplatz) und Wohnzimmer. Der Bereich oberhalb des Wohnzimmers ist als Luftraum ausgeführt. Der Küche nach Südosten vorgelagert ist eine überdachte Terrasse situiert, von der aus eine weitere Außentreppe in den südlich gelegenen Garten auf Ebene des Erdgeschoßes führen soll. Diese Außen-Treppe wurde bislang aber nicht hergestellt. Das Dachgeschoß wird über eine innenliegende Podesttreppe vom Wohnzimmer des Obergeschoßes aus erschlossen. Im Dachgeschoß befinden sich Gang, zwei Schlafzimmer, Badezimmer und plangemäßer Lagerraum (tatsächlich als Schlafzimmer genutzt und baubehördlich abzuklären, im Gutachten wird von Baukonsens ausgegangen). Die Wohnfläche in Ober- und Dachgeschoß beträgt 129,41 m² (inkl. dem als Schlafzimmer genutzten Lagerraum im Dachgeschoß; ohne diesem 115,74 m²). Hinsichtlich der offenen Arbeiten um das bzw. am und im Objekt wird unter anderem auf die Punkte 2.7.3 sowie 2.7.4 des Langgutachtens verwiesen. Zur Versteigerung gelangt lediglich die B-LNr. 1 der Liegenschaft (Hälfteanteil).
Grundstücksgröße: 362 m²
Schätzwert: 288.000,00
geringstes Gebot: 149.500,00
Vadium: 29.900,00
mitzuversteigerndes Zubehör: - Einbauküche Erdgeschoß - Einbauküche Obergeschoß jeweils gem. Punkt 2.7.5 des Langgutachtens
Wert des Zubehörs: 11.000,00
Langgutachten: Gutachten KG 84112 Ried iO EZ 732 BLNr 1 Landeka.pdfGutachten KG 84112 Ried iO EZ 732 BLNr 1 Landeka.pdf  
Lageplan: Orthofoto Kurzgutachten.jpgOrthofoto Kurzgutachten.jpg  
Grundriss: UG und EG.JPGUG und EG.JPG   OG und DG.JPGOG und DG.JPG  
Fotos: DJI_0644 (Mittel).JPGDJI_0644 (Mittel).JPG  
Direktlink: https://edikte.justiz.gv.at/    (Eingebundene Vorschaubilder sind embedded content von edikte.justiz.gv.at; die Links verweisen direkt auf die entsprechende externe Seite.)


Das Maximum herausholen!
Die besten Sparzinsen Österreichs.
Fix (Festgeld) oder flexibel (täglich fällig).
Kostenloser Online-Zinsvergleich.
04/2026: Sparzinsen
  Stromkosten sparen durch Anbieterwechsel!
Großer Strompreisvergleich für Österreich.
Stromanbieter online vergleichen und
in nur 3 Minuten Vertrag abschließen.
Strompreisvergleich online: Strom
  Ihr Wohnkredit zu Top-Konditionen.
Kompetente, kostenlose Expertenberatung.
Für Hausbau oder Wohnungskauf.
Österreichweiter Marktvergleich.
Rasch und einfach: Wohnkredit-Rechner

Ortsende Wien  ♦  Niederösterreich  ♦  Burgenland  ♦  Oberösterreich  ♦  Salzburg  ♦  Tirol  ♦  Vorarlberg  ♦  Steiermark  ♦  Kärnten   

| Impressum  |  Datenschutz |