Zwangsversteigerung: 1050 Wien Gassergasse 14 ident Anzengrubergasse 8 - Eigentumswohnung

Ortsanfang    Ortsanfang  


Wien  ♦  Niederösterreich  ♦  Burgenland  ♦  Oberösterreich  ♦  Salzburg  ♦  Tirol  ♦  Vorarlberg  ♦  Steiermark  ♦  Kärnten


Information   Details
Edikt: Versteigerung (29.04.2026)
Gericht - Aktenzeichen: BG Innere Stadt Wien (001) - 50 E 48/25y
Liegenschaftsadresse: 1050 Wien Gassergasse 14 ident Anzengrubergasse 8
Kategorie: Eigentumswohnung
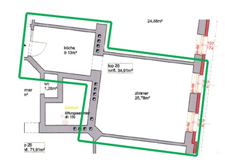
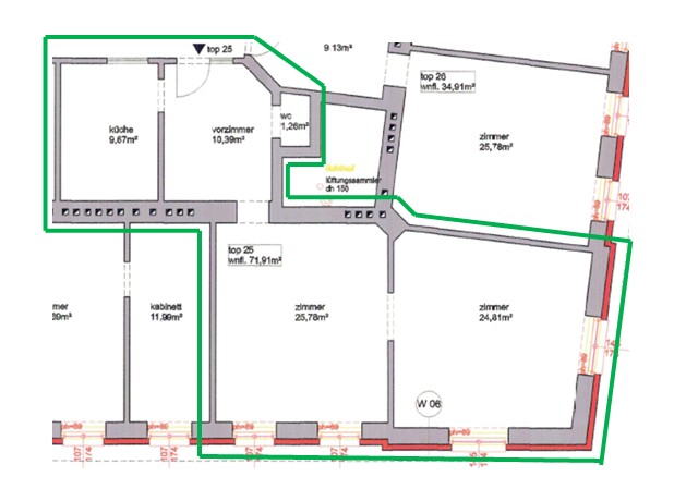
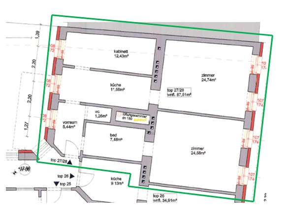
Objektbezeichnung: Eigentumswohnung Top W 25
Beschreibung: Die Wohnung W 25 liegt im 3. Obergeschoss und hat lt. NWGA eine Nutzfläche von 71,91 m². Die Beheizung erfolgt mittels Gasetagenheizung; die Wärmeverteilung über Radiatoren. Die Ausstattung mit Fliesen-, Melan- und einem teils stärker abgenutzten Parkettboden sowie Kunststofffenstern mit Isolierglas ist einfach und zweckmäßig; der Zustand ist als mittel zu qualifizieren.
Grundstücksgröße: 71,91 m²
Schätzwert: 238.000,00
geringstes Gebot: 119.000,00
Vadium: 23.800,00
Langgutachten: GA 1050 Wien, Gassergasse 14 v 20251014 GZ 50 E 48_25y.pdfGA 1050 Wien, Gassergasse 14 v 20251014 GZ 50 E 48_25y.pdf  
Lageplan: Lageplan.jpgLageplan.jpg  
Grundriss: w11.jpgw11.jpg   w25.jpgw25.jpg   w26.jpgw26.jpg   w2728.jpgw2728.jpg  
Fotos: DSC_0001v.jpgDSC_0001v.jpg  
Direktlink: https://edikte.justiz.gv.at/    (Eingebundene Vorschaubilder sind embedded content von edikte.justiz.gv.at; die Links verweisen direkt auf die entsprechende externe Seite.)


Stromkosten sparen durch Anbieterwechsel!
Großer Strompreisvergleich für Österreich.
Stromanbieter online vergleichen und
in nur 3 Minuten Vertrag abschließen.
Strompreisvergleich online: Strom
  Autoversicherung online 04/2026.
Anbieter in ganz Österreich vergleichen
und damit bis zu 700 Euro sparen.
Versicherung bequem online abschließen.
Jetzt Prämie sparen: Autoversicherung
  Ihr Wohnkredit zu Top-Konditionen.
Kompetente, kostenlose Expertenberatung.
Für Hausbau oder Wohnungskauf.
Österreichweiter Marktvergleich.
Rasch und einfach: Wohnkredit-Rechner

Ortsende Wien  ♦  Niederösterreich  ♦  Burgenland  ♦  Oberösterreich  ♦  Salzburg  ♦  Tirol  ♦  Vorarlberg  ♦  Steiermark  ♦  Kärnten   

| Impressum  |  Datenschutz |