Zwangsversteigerung: 4860 Lenzing Hans-Sachs-Straße 22 - Wohnungseigentumsobjekt

Ortsanfang    Ortsanfang  


Wien  ♦  Niederösterreich  ♦  Burgenland  ♦  Oberösterreich  ♦  Salzburg  ♦  Tirol  ♦  Vorarlberg  ♦  Steiermark  ♦  Kärnten


Information   Details
Edikt: Zuschlag mit Überbot
Gericht - Aktenzeichen: BG Vöcklabruck (503) - 8 E 5/25t
Liegenschaftsadresse: 4860 Lenzing Hans-Sachs-Straße 22
Kategorie: Wohnungseigentumsobjekt
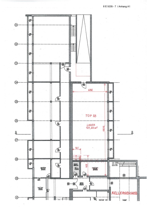
Objektbezeichnung: WE an Lager 28
Meistbot: 28.500,00
Überbot Frist: 14 Tage
Überbot Minimum: 35.625,00
Langgutachten: SDevelop In25060512240.pdfSDevelop In25060512240.pdf  
Lageplan: SDevelop In25060512261_0001.jpgSDevelop In25060512261_0001.jpg  
Grundriss: SDevelop In25060512260_0001.jpgSDevelop In25060512260_0001.jpg  
Fotos: SDevelop In25060512270_0001.jpgSDevelop In25060512270_0001.jpg  
Direktlink: https://edikte.justiz.gv.at/    (Eingebundene Vorschaubilder sind embedded content von edikte.justiz.gv.at; die Links verweisen direkt auf die entsprechende externe Seite.)


Ihr Wohnkredit zu Top-Konditionen.
Kompetente, kostenlose Expertenberatung.
Für Hausbau oder Wohnungskauf.
Österreichweiter Marktvergleich.
Rasch und einfach: Wohnkredit-Rechner
  Kredit umschulden und Kosten sparen
mit einem Umschuldungskredit.
Egal ob Ratenkredit oder Immobilienkredit.
Kredite zu Top-Konditionen umschulden.
Hier: die neue Kreditrate berechnen!
  Supergünstig zum Eigenheim!
Über 60 Anbieter im kostenlosen
Online‑Kreditvergleich (Stand 10/2025)
Die besten Angebote - fix und variabel.
Top-Konditionen - schnell am Konto!

Ortsende Wien  ♦  Niederösterreich  ♦  Burgenland  ♦  Oberösterreich  ♦  Salzburg  ♦  Tirol  ♦  Vorarlberg  ♦  Steiermark  ♦  Kärnten   

| Impressum  |  Datenschutz |