Zwangsversteigerung: 6020 Innsbruck Schöpfstraße 6b - Wohnungseigentumsobjekt

Ortsanfang    Ortsanfang  


Wien  ♦  Niederösterreich  ♦  Burgenland  ♦  Oberösterreich  ♦  Salzburg  ♦  Tirol  ♦  Vorarlberg  ♦  Steiermark  ♦  Kärnten


Information   Details
Edikt: Verschiebung (von 24.03.2026 auf 28.04.2026)
Gericht - Aktenzeichen: BG Innsbruck (811) - 23 E 2991/25a
Liegenschaftsadresse: 6020 Innsbruck Schöpfstraße 6b
Kategorie: Wohnungseigentumsobjekt
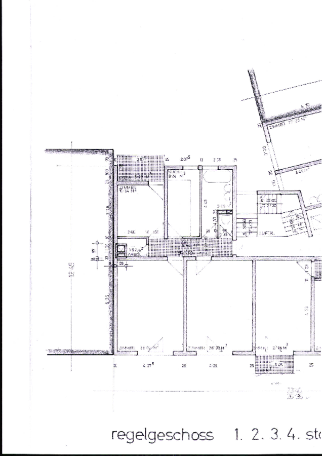
Objektbezeichnung: Wohnungseigentum an Top W 4
Beschreibung: 90/1750 Anteile samt damit untrennbar verbundenem Wohnungseigentum an Top W 4 (B-LNR 25)
Grundstücksgröße: 414 m²
Objektgröße: 94,05 m²
Schätzwert: 302.000,00
geringstes Gebot: 260.000,00
Vadium: 30.200,00
Langgutachten: Bilder gesamt.pdfBilder gesamt.pdf   Gutachten Wohnung W 4 Schöpfstraße 6b.pdfGutachten Wohnung W 4 Schöpfstraße 6b.pdf   Beilagen Gutachten gesamt.pdfBeilagen Gutachten gesamt.pdf   Grundrissplan Top W 4.pdfGrundrissplan Top W 4.pdf  
Lageplan: Kataster mit Adresse.jpgKataster mit Adresse.jpg  
Direktlink: https://edikte.justiz.gv.at/    (Eingebundene Vorschaubilder sind embedded content von edikte.justiz.gv.at; die Links verweisen direkt auf die entsprechende externe Seite.)


Stromkosten sparen durch Anbieterwechsel!
Großer Strompreisvergleich für Österreich.
Stromanbieter online vergleichen und
in nur 3 Minuten Vertrag abschließen.
Strompreisvergleich online: Strom
  Ideal für Beträge von 1.000 € bis 75.000 €
Der Ratenkredit aus dem Internet.
Einfach Zuhause die Anbieter vergleichen.
Abschluss online - schnell am Konto!
Hier: Kreditrate und Zinssatz berechnen!
  Autoversicherung online 04/2026.
Anbieter in ganz Österreich vergleichen
und damit bis zu 700 Euro sparen.
Versicherung bequem online abschließen.
Jetzt Prämie sparen: Autoversicherung

Ortsende Wien  ♦  Niederösterreich  ♦  Burgenland  ♦  Oberösterreich  ♦  Salzburg  ♦  Tirol  ♦  Vorarlberg  ♦  Steiermark  ♦  Kärnten   

| Impressum  |  Datenschutz |