Zwangsversteigerung: 3240 Mank Wies 3 - Mehrfamilienhaus

Ortsanfang    Ortsanfang  


Wien  ♦  Niederösterreich  ♦  Burgenland  ♦  Oberösterreich  ♦  Salzburg  ♦  Tirol  ♦  Vorarlberg  ♦  Steiermark  ♦  Kärnten


Information   Details
Edikt: Versteigerung (06.05.2026)
Gericht - Aktenzeichen: BG Melk (141) - 9 E 16/25b
Liegenschaftsadresse: 3240 Mank Wies 3
Kategorie: Mehrfamilienhaus
Objektbezeichnung: Mehrfamilienwohnhaus
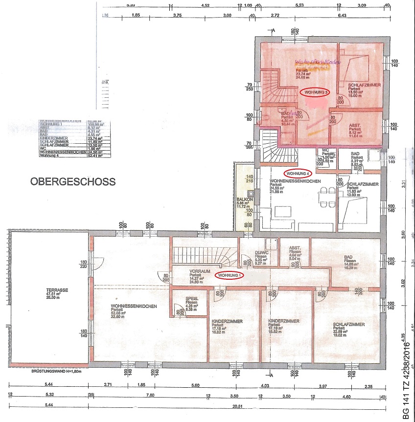
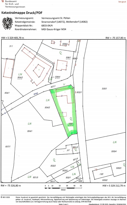
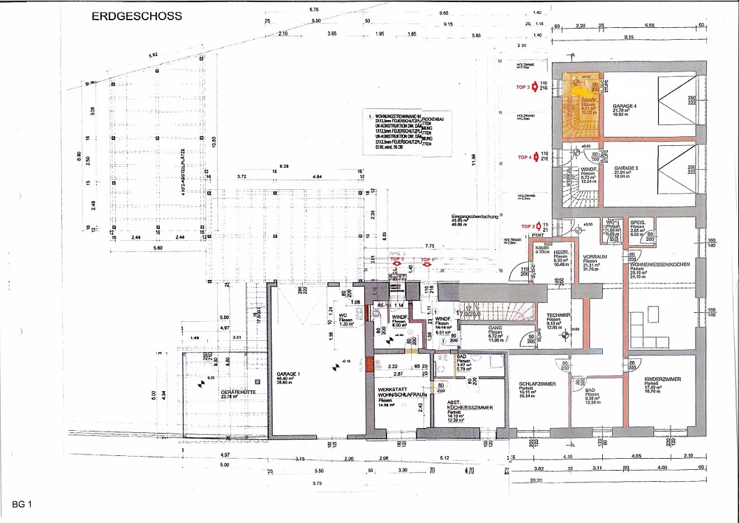
Beschreibung: Die bewertungsgegenständliche Liegenschaft liegt im Gemeindegebiet der Stadt Mank ca. 2,5 km südwestlich außerhalb des Stadtzentrums von Mank in der Katastralgemeinde Strannersdorf. Die Liegenschaft grenzt unmittelbar westlich an die Landesstraße L89 (Mank-Texingtal) und unmittelbar südlich an die Gemeindestraße (Gst 831/1 – Stadtgemeine Mank – öffentliches Gut) an. Das in der bewertungsgegenständlichen Liegenschaft EZ 45 inneliegende Grundstück 505 weist eine unregelmäßige Grundrissform mit einem grundbücherlichen Flächen-ausmaß von 1.558 m² auf. Die Grundstücksfläche ist weitgehend eben und waagrecht sowie niveaugleich mit den angrenzenden Grundstücken. Auf dem Grundstück 505 besteht zum Bewertungsstichtag ein Mehrfamilienwohnhaus in offener Bauweise. Das in Massivbauweise errichtete Gebäude besteht aus Erdgeschoß und Obergeschoß. In dem Mehrfamilienwohnhaus befinden sich zum Bewertungsstichtag 5 Wohnungen (Top 1, Top 2, Top 3, Top 4 und Top 5) und 3 Garagen. Die Wohnungen Top 1, Top 3 und Top 4 erstrecken sich jeweils über Erdgeschoß und Obergeschoß, die Wohnungen Top 2 und Top 5 sowie die Garagen 1, 3 und 4 befinden sich im Erdgeschoß. Anstelle des zum Bewertungsstichtag bestehenden Mehrfamilienwohnhauses befand sich ursprünglich ein Wohn- und Wirtschaftsgebäude, das später auch dem Betrieb eines Gasthauses mit Tanzsaal diente. Nach Stilllegung des Gasthausbetriebes wurde das Gebäude in mehreren Etappen durch Einbau von Wohnungen in eine Mehrfamilienwohnhaus umgenutzt, wobei Teile des Mauerwerkes des Altbestandes bestehen blieben. Auf der bewertungsgegenständlichen Liegenschaft wurde im Jahr 2016 Wohnungseigentum an 4 Wohnungen und 3 Garagen aufgrund des Nutzwertgutachtens TZ 4238/2016 begründet. Diesbezüglich wird darauf hingewiesen, dass sich zum Bewertungsstichtag entgegen dem Grundbuchstand tatsächlich in dem Wohnhaus 5 baulich in sich abgeschlossene Wohnungen und 3 Garagen befinden. Aus den Unterlagen im Bauakt bei der zuständigen Baubehörde der Stadtgemeinde Mank ist feststellbar, dass es zum Zeitpunkt der Erstellung des Nutzwertgutachtens (27.06.2016) noch keinen rechtskräftigen Baubewilligungsbescheid für den im Gutachten angeführten Bauplan gab. Der Baubewilligungsbescheid der Stadtgemeinde Mank für den Umbau eines bestehenden Gebäudes von 3 auf 4 Wohneinheiten ist mit 22.08.2017 datiert. Voraussetzung für das Nutzwertgutachten ist gemäß § 6 (2) WEG jedoch der behördlich bewilligte Bauplan. Inwieweit die Wohnungseigentumsbegründung auf Basis des im Jahr 2016 erstellten Nutzwertgutachtens somit nichtig ist oder nicht, stellt eine Rechtsfrage dar und ist vom Sachverständigen nicht zu beurteilen. Im Jahr 2023 wurde mit Bescheid der Stadtgemeinde Mank vom 30.01.2023 der Einbau einer weiteren Wohnung (5. Wohnung) durch diverse Umbauten in das bestehende Mehrfamilienwohnhaus in Wies 3 baubehördlich bewilligt. Diese baubehördlich bewilligte Baumaßnahme ist zum Bewertungsstichtag auch ausgeführt. Bei der Baumaßnahme wurden jeweils Teile von den Wohnungseigentumsobjekten Top 1 (Wohnung) und Top 5 (Garage 1) abgetrennt und daraus eine baulich in sich abgeschlossene weitere Wohnung (Top 5) geschaffen. Durch diesen baulichen Vorgang auf der Liegenschaft hat sich die Zahl der Wohnungen um eine Wohnung erhöht bzw. haben sich die Nutzwerte verändert, wodurch für eine rechtskräftige Begründung von Wohnungseigentum am Baubestand zum Bewertungsstichtag eine Neufestsetzung der Nutzwerte erforderlich wäre. Weiters ist auch noch darauf hinzuweisen, dass an den 3 Garagen (im Nutzwertgutachten als Top 5, Top 6 und Top 7 bezeichnet) jeweils Wohnungseigentum als selbständige Wohnungseigentumsobjekte und nicht als Wohnungseigentumszubehör begründet wurde. In diesem Fall dürften die Öffnungen zwischen den Garagen und den jeweils angrenzenden Wohnungen nicht bestehen, da die Wohnungseigentumsobjekte jeweils baulich in sich abgeschlossen sein müssen. Im Hinblick auf die vorstehend angeführten Umstände erfolgt die Bewertung der Liegenschaft ohne Berücksichtigung des Wohnungseigentums, da davon auszugehen ist, dass sich für die einzelnen Wohnungseigentumsobjekte in der vorstehend angeführten rechtlichen Konstellation keine Interessenten finden werden bzw. wenn ja die Summe der Verkehrswerte bei Einzelversteigerung der bestehenden Wohnungseigentumsobjekte wesentlich unter dem Verkehrswert bei Versteigerung der Gesamtanteile liegen wird. Auf der bewertungsgegenständlichen Liegenschaft befinden sich weiteres folgende Nebengebäude und Außenanlagen: Hauszugang und Hauszufahrt: teilweise mit Betonsteinpflaster und teilweise mit Asphalt befestigt; Carport: Grundrissausmaß ca. 5,6 m x 8,9 m; Holzständerkonstruktion; Pultdach mit Holzträmen mit Vollschalung; Trapezblecheindeckung; vierseitig offen; Boden: Betonsteinpflaster; Gerätehütte:Grundrissausmaß ca. 5 m x 5m; Holzständerkonstruktion; Pultdach mit Holzträmen mit Vollschalung; Trapezblecheindeckung; nach einer Seite hin offen; Wände mit einfacher Bretterschalung; Boden: Beton; ein Hausbrunnen auf Eigengrund: Betonschachtbrunnen mit Betonabdeckplatte mit Belüftung; Garten und Grünanlagen:Grünfläche (Wiese mit geringem Baum- und Strauchbestand).
Grundstücksgröße: 1.558 m²
Objektgröße: 521,00 m²
Schätzwert: 564.000,00
geringstes Gebot: 423.000,00
Vadium: 56.800,00
mitzuversteigerndes Zubehör: 5 Einbauküchen mit Einbaugeräten in den Wohnungen Top 1, Top 2, Top 3, Top 4 und Top 5
Wert des Zubehörs: 4.000,00
Langgutachten: GA_BGMelk_Iancu_3240 Mank_Wies_3_signiert.pdfGA_BGMelk_Iancu_3240 Mank_Wies_3_signiert.pdf  
Lageplan: MX-2640N_20260112_165449_001.jpgMX-2640N_20260112_165449_001.jpg  
Grundriss: GR_EG_Bestand.jpgGR_EG_Bestand.jpg   MX-2640N_20260108_140215_001.jpgMX-2640N_20260108_140215_001.jpg  
Fotos: DSC02940.JPGDSC02940.JPG   DSC02936.JPGDSC02936.JPG   DSC02865.JPGDSC02865.JPG   DSC02867.JPGDSC02867.JPG   DSC02848.JPGDSC02848.JPG   DSC02846.JPGDSC02846.JPG   DSC02841.JPGDSC02841.JPG   DSC02842.JPGDSC02842.JPG   DSC02843.JPGDSC02843.JPG   DSC02839.JPGDSC02839.JPG   DSC02853.JPGDSC02853.JPG   DSC02871.JPGDSC02871.JPG   DSC02872.JPGDSC02872.JPG   DSC02874.JPGDSC02874.JPG   DSC02881.JPGDSC02881.JPG   DSC02876.JPGDSC02876.JPG   DSC02879.JPGDSC02879.JPG   DSC02880.JPGDSC02880.JPG   DSC02903.JPGDSC02903.JPG   DSC02908.JPGDSC02908.JPG   DSC02907.JPGDSC02907.JPG   DSC02909.JPGDSC02909.JPG   DSC02910.JPGDSC02910.JPG   DSC02898.JPGDSC02898.JPG   DSC02896.JPGDSC02896.JPG   DSC02895.JPGDSC02895.JPG   DSC02887.JPGDSC02887.JPG   DSC02919.JPGDSC02919.JPG   DSC02916.JPGDSC02916.JPG   Küche.jpgKüche.jpg   Schlafzimmer.jpgSchlafzimmer.jpg   Windfang.jpgWindfang.jpg   DSC02920.JPGDSC02920.JPG   DSC02885.JPGDSC02885.JPG   DSC02905.JPGDSC02905.JPG   DSC02888.JPGDSC02888.JPG   DSC02926.JPGDSC02926.JPG   DSC02927.JPGDSC02927.JPG   DSC02928.JPGDSC02928.JPG   DSC02943.JPGDSC02943.JPG  
Direktlink: https://edikte.justiz.gv.at/    (Eingebundene Vorschaubilder sind embedded content von edikte.justiz.gv.at; die Links verweisen direkt auf die entsprechende externe Seite.)


Autoversicherung online 04/2026.
Anbieter in ganz Österreich vergleichen
und damit bis zu 700 Euro sparen.
Versicherung bequem online abschließen.
Jetzt Prämie sparen: Autoversicherung
  Ideal für Beträge von 1.000 € bis 75.000 €
Der Ratenkredit aus dem Internet.
Einfach Zuhause die Anbieter vergleichen.
Abschluss online - schnell am Konto!
Hier: Kreditrate und Zinssatz berechnen!
  Ihr Wohnkredit zu Top-Konditionen.
Kompetente, kostenlose Expertenberatung.
Für Hausbau oder Wohnungskauf.
Österreichweiter Marktvergleich.
Rasch und einfach: Wohnkredit-Rechner

Ortsende Wien  ♦  Niederösterreich  ♦  Burgenland  ♦  Oberösterreich  ♦  Salzburg  ♦  Tirol  ♦  Vorarlberg  ♦  Steiermark  ♦  Kärnten   

| Impressum  |  Datenschutz |