Zwangsversteigerung: 3133 Traismauer Wachaustraße 61 - gewerbliche Liegenschaft

Ortsanfang    Ortsanfang  


Wien  ♦  Niederösterreich  ♦  Burgenland  ♦  Oberösterreich  ♦  Salzburg  ♦  Tirol  ♦  Vorarlberg  ♦  Steiermark  ♦  Kärnten


Information   Details
Edikt: Versteigerung (20.10.2025)
Gericht - Aktenzeichen: BG St. Pölten (192) - 11 E 1/25m
Liegenschaftsadresse: 3133 Traismauer Wachaustraße 61
Kategorie: gewerbliche Liegenschaft
Objektbezeichnung: Gastronomielokal
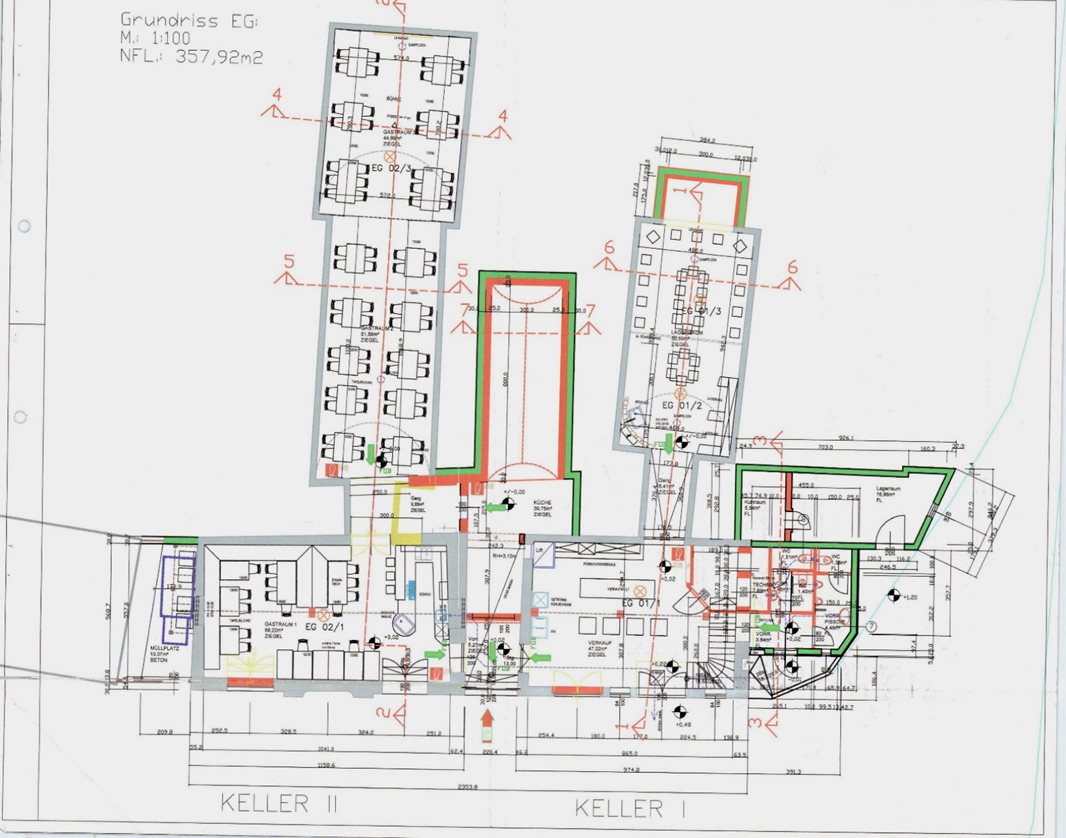
Beschreibung: Bei gegenständlicher Liegenschaften handelt es sich um ein Gastronomielokal und einen Stadel am nördlichen Ortsrand von Wagram ob der Traisen. Das Gastronomielokal besteht aus einem Erdgeschoß und einem ausgebauten Dachgeschoß. Im Erdgeschoß sind ein kleiner Vorraum, drei Gasträume, eine Küche, ein Verkaufsraum, zwei Lagerräume, ein Technikraum, Toilette-Anlagen und ein Kühlraum. In den drei Gasträumen befinden sich gesamt rund 85 Sitzplätze. Der Verkaufsraum ist als Weinverkostungs- und -verkaufsraum ausgebaut. im Dachgeschoß sind eine Longe sowie ein Aufenthaltsraum für Mitarbeiter samt Büro und eine Nasseinheit eingebaut. Weiteres befindet sich hier außenseits ein Gang, welcher zum Gastgarten führt. In der Lounge ist eine Schank eingebaut und es gibt rund 10 Sitzplätze. Das Objekt ist weitgehend ordnungsgemäß erhalten, es sind überwiegend die üblichen Instandhaltungen erforderlich.
Schätzwert: 272.000,00
geringstes Gebot: 136.000,00
Vadium: 27.200,00
Wert des Zubehörs: nicht festgestellt
Langgutachten: ga_1986_25_kulinarikstudio_ev20052025.pdf  
Lageplan: 01_oek.png01_oek.png   02_orthofoto.png02_orthofoto.png   03_openstreetmap.png03_openstreetmap.png   04_flaewi.png04_flaewi.png   05_oeek.png05_oeek.png  
Grundriss: keller_änderungsplan eg.pngkeller_änderungsplan eg.png   keller_änderungsplan dg.pngkeller_änderungsplan dg.png   stadel.pngstadel.png  
Fotos: fotodokumentation_1.jpgfotodokumentation_1.jpg   fotodokumentation_2.jpgfotodokumentation_2.jpg   fotodokumentation_3.jpgfotodokumentation_3.jpg   fotodokumentation_4.jpgfotodokumentation_4.jpg   fotodokumentation_5.jpgfotodokumentation_5.jpg  
Direktlink: https://edikte.justiz.gv.at/    (Eingebundene Vorschaubilder sind embedded content von edikte.justiz.gv.at; die Links verweisen direkt auf die entsprechende externe Seite.)


Autoversicherung online 10/2025.
Anbieter in ganz Österreich vergleichen
und damit bis zu 700 Euro sparen.
Versicherung bequem online abschließen.
Jetzt Prämie sparen: Autoversicherung
  Supergünstig zum Eigenheim!
Über 60 Anbieter im kostenlosen
Online‑Kreditvergleich (Stand 10/2025)
Die besten Angebote - fix und variabel.
Top-Konditionen - schnell am Konto!
  Geld sparen durch Gaspreisvergleich.
Gasanbieter vergleichen, wechseln und
damit mehrere hundert Euro sparen.
Kostenlos und unverbindlich - alles online.
Jetzt österreichweit Gaspreise vergleichen.

Ortsende Wien  ♦  Niederösterreich  ♦  Burgenland  ♦  Oberösterreich  ♦  Salzburg  ♦  Tirol  ♦  Vorarlberg  ♦  Steiermark  ♦  Kärnten   

| Impressum  |  Datenschutz |