Zwangsversteigerung: 6800 Feldkirch Böschenmahdstraße 30+30a - Eigentumswohnung

Ortsanfang    Ortsanfang  


Wien  ♦  Niederösterreich  ♦  Burgenland  ♦  Oberösterreich  ♦  Salzburg  ♦  Tirol  ♦  Vorarlberg  ♦  Steiermark  ♦  Kärnten


Information   Details
Edikt: Versteigerung (19.01.2026)
Gericht - Aktenzeichen: BG Feldkirch (921) - 5 E 2999/24t
Liegenschaftsadresse: 6800 Feldkirch Böschenmahdstraße 30+30a
Kategorie: Eigentumswohnung
Objektbezeichnung: Wohnung Top 19
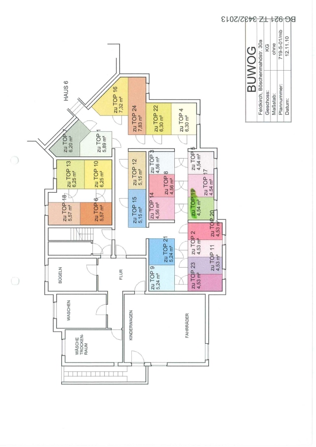
Beschreibung: Die Wohnanlage besteht aus zwei verbundenen Baukörpern mit je einem Kellergeschoss, Erdgeschoss und drei Obergeschossen. Das Gebäude ist in Massivbauweise errichtet, Flachdach, Putzfassade, Holzrahmenfenster, isolierverglast, Fernwärme-Heizung. Kurz- bis langfristig ist mit Sanierungsmaßnahmen zu rechnen. Die Wohnung Top 19 befindet sich im 2. OG Böschenmahdstraße 30. Die Wohnung hat eine Wohnfläche von 101,78 m², Balkon 2,78 m², Balkon 2,78 m² (nicht getrennt), Keller 4,54 m². Bodenbeläge: Fliesen, Laminat, Wände, Decke verputzt, gemalt. Wohnung wurde teilsaniert.
Grundstücksgröße: 4.155 m²
Objektgröße: 101,78 m²
Schätzwert: 290.000,00
geringstes Gebot: 261.000,00
Vadium: 29.000,00
mitzuversteigerndes Zubehör: Bad: Waschtisch-Unterschrank WC: Waschtisch-Verbau Küche: Einbauküche mit Geräten
Wert des Zubehörs: 3.000,00
Langgutachten: Bewertung.pdfBewertung.pdf   Beilagendokument.pdfBeilagendokument.pdf  
Lageplan: Lageplan.jpgLageplan.jpg   Flächenwidmug.jpgFlächenwidmug.jpg   Luftbild.jpgLuftbild.jpg   Stadtplan.jpgStadtplan.jpg  
Grundriss: GrundrissKG.jpgGrundrissKG.jpg   grundr2OGtop19.jpggrundr2OGtop19.jpg  
Fotos: zuganggarten.jpgzuganggarten.jpg   Vorraum.jpgVorraum.jpg   Zimmer1.jpgZimmer1.jpg   Zimmer2.jpgZimmer2.jpg   zimmer3.jpgzimmer3.jpg   Bad1.jpgBad1.jpg   bad2.jpgbad2.jpg   WCC.jpgWCC.jpg   wohnen.jpgwohnen.jpg   balkon.jpgbalkon.jpg   Balkontüre.jpgBalkontüre.jpg   parteienkeller.jpgparteienkeller.jpg   kellerzutop19.jpgkellerzutop19.jpg   Eingang.jpgEingang.jpg   satiegenhaus.jpgsatiegenhaus.jpg   Waschkü.jpgWaschkü.jpg   Südostgansparkpl.jpgSüdostgansparkpl.jpg   nordostnordw.jpgnordostnordw.jpg   küche.jpgküche.jpg  
Direktlink: https://edikte.justiz.gv.at/    (Eingebundene Vorschaubilder sind embedded content von edikte.justiz.gv.at; die Links verweisen direkt auf die entsprechende externe Seite.)


Ihr Wohnkredit zu Top-Konditionen.
Kompetente, kostenlose Expertenberatung.
Für Hausbau oder Wohnungskauf.
Österreichweiter Marktvergleich.
Rasch und einfach: Wohnkredit-Rechner
  Ideal für Beträge von 1.000 € bis 75.000 €
Der Ratenkredit aus dem Internet.
Einfach Zuhause die Anbieter vergleichen.
Abschluss online - schnell am Konto!
Hier: Kreditrate und Zinssatz berechnen!
  Stromkosten sparen durch Anbieterwechsel!
Großer Strompreisvergleich für Österreich.
Stromanbieter online vergleichen und
in nur 3 Minuten Vertrag abschließen.
Strompreisvergleich online: Strom

Ortsende Wien  ♦  Niederösterreich  ♦  Burgenland  ♦  Oberösterreich  ♦  Salzburg  ♦  Tirol  ♦  Vorarlberg  ♦  Steiermark  ♦  Kärnten   

| Impressum  |  Datenschutz |