Zwangsversteigerung: 6311 Wildschönau Hauserweg, Oberau 526 - Sonstiges

Ortsanfang    Ortsanfang  


Wien  ♦  Niederösterreich  ♦  Burgenland  ♦  Oberösterreich  ♦  Salzburg  ♦  Tirol  ♦  Vorarlberg  ♦  Steiermark  ♦  Kärnten


Information   Details
Edikt: Versteigerung (12.01.2026)
Gericht - Aktenzeichen: BG Rattenberg (831) - 4 E 709/25g
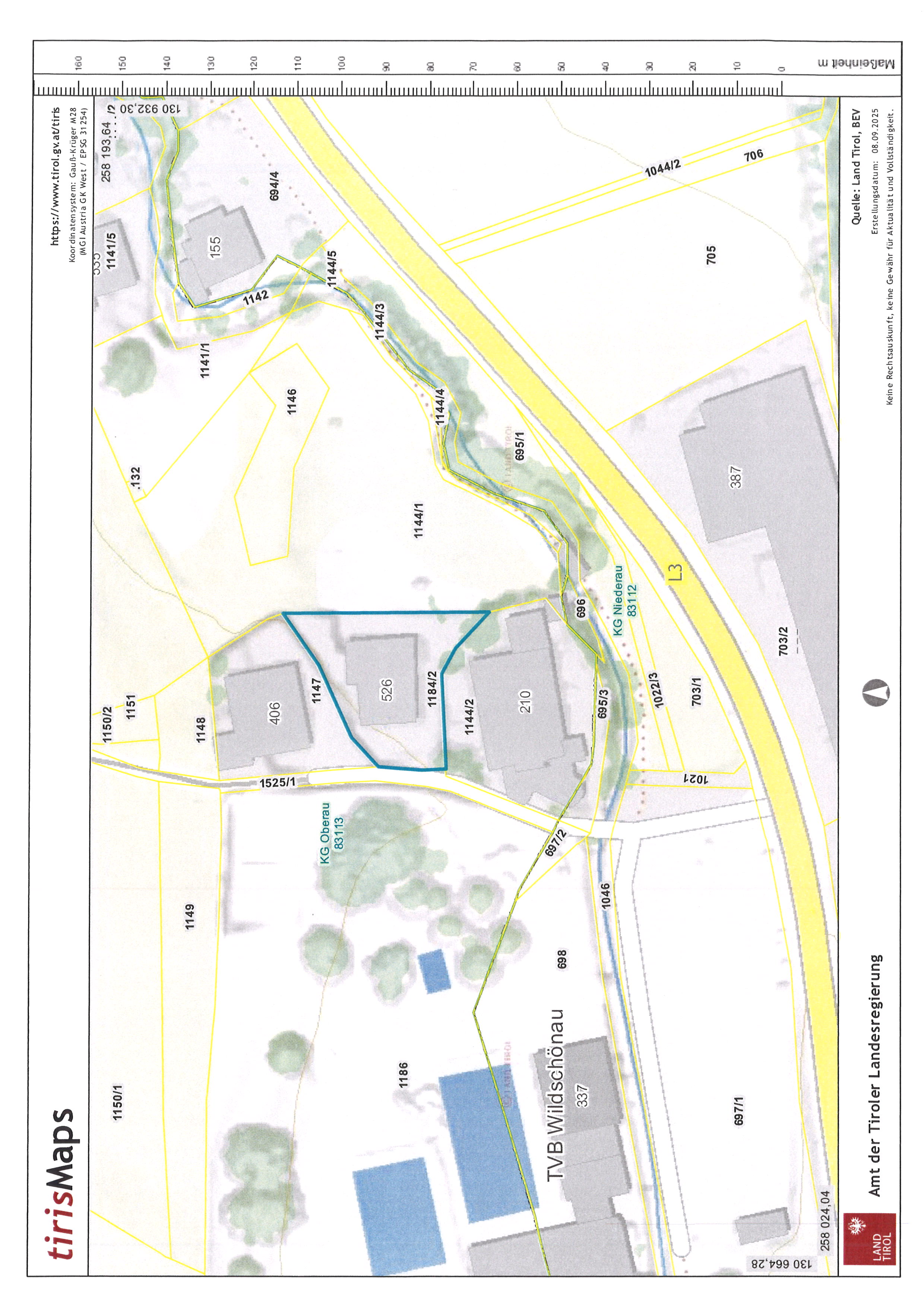
Liegenschaftsadresse: 6311 Wildschönau Hauserweg, Oberau 526
Kategorie: Sonstiges
Objektbezeichnung: Top AAP09
Beschreibung: Der KFZ-Stellplatz Top AAP09 befindet sich in Oberau, östlich vom Schwimmbad Oberau, auf einem "Mittelgrundstück von 3 nebeneinander angrenzenden, bebauten Liegenschaften. Der Stellplatz befindet sich im Außenbereich, am südlichen Grundstückseck, ist ebenflächig und mit Asphalt befestigt.
Grundstücksgröße: 969 m²
Objektgröße: 13,06 m²
Schätzwert: 1.840,00
geringstes Gebot: 920,00
Vadium: 184,00
Langgutachten: d&h, Liegenschaftsbewertung I_signed.pdfd&h, Liegenschaftsbewertung I_signed.pdf  
Lageplan: Lageplan, d&h.jpgLageplan, d&h.jpg  
Grundriss: Grundriss-1.jpgGrundriss-1.jpg  
Fotos: AAP09 und AAP10-1.jpgAAP09 und AAP10-1.jpg  
Direktlink: https://edikte.justiz.gv.at/    (Eingebundene Vorschaubilder sind embedded content von edikte.justiz.gv.at; die Links verweisen direkt auf die entsprechende externe Seite.)


Top Versicherungsschutz für Ihre Immobilie.
Durch online-Preisvergleich zur besten Eigenheimversicherung.
Top aktuelle Angebote: Stand 12/2025
Online-Test: Eigenheimversicherung
  Kredit umschulden und Kosten sparen
mit einem Umschuldungskredit.
Egal ob Ratenkredit oder Immobilienkredit.
Kredite zu Top-Konditionen umschulden.
Hier: die neue Kreditrate berechnen!
  Autoversicherung online 12/2025.
Anbieter in ganz Österreich vergleichen
und damit bis zu 700 Euro sparen.
Versicherung bequem online abschließen.
Jetzt Prämie sparen: Autoversicherung

Ortsende Wien  ♦  Niederösterreich  ♦  Burgenland  ♦  Oberösterreich  ♦  Salzburg  ♦  Tirol  ♦  Vorarlberg  ♦  Steiermark  ♦  Kärnten   

| Impressum  |  Datenschutz |