Zwangsversteigerung: 1030 Wien Obere Weißgerberstraße 30, Obere Viaduktgasse 4 - Wohnungseigentumsobjekt

Ortsanfang    Ortsanfang  


Wien  ♦  Niederösterreich  ♦  Burgenland  ♦  Oberösterreich  ♦  Salzburg  ♦  Tirol  ♦  Vorarlberg  ♦  Steiermark  ♦  Kärnten


Information   Details
Edikt: Versteigerung (29.04.2026)
Gericht - Aktenzeichen: BG Innere Stadt Wien (001) - 74 E 131/24d
Liegenschaftsadresse: 1030 Wien Obere Weißgerberstraße 30, Obere Viaduktgasse 4
Kategorie: Wohnungseigentumsobjekt
Objektbezeichnung: Rohdachboden W DG/27
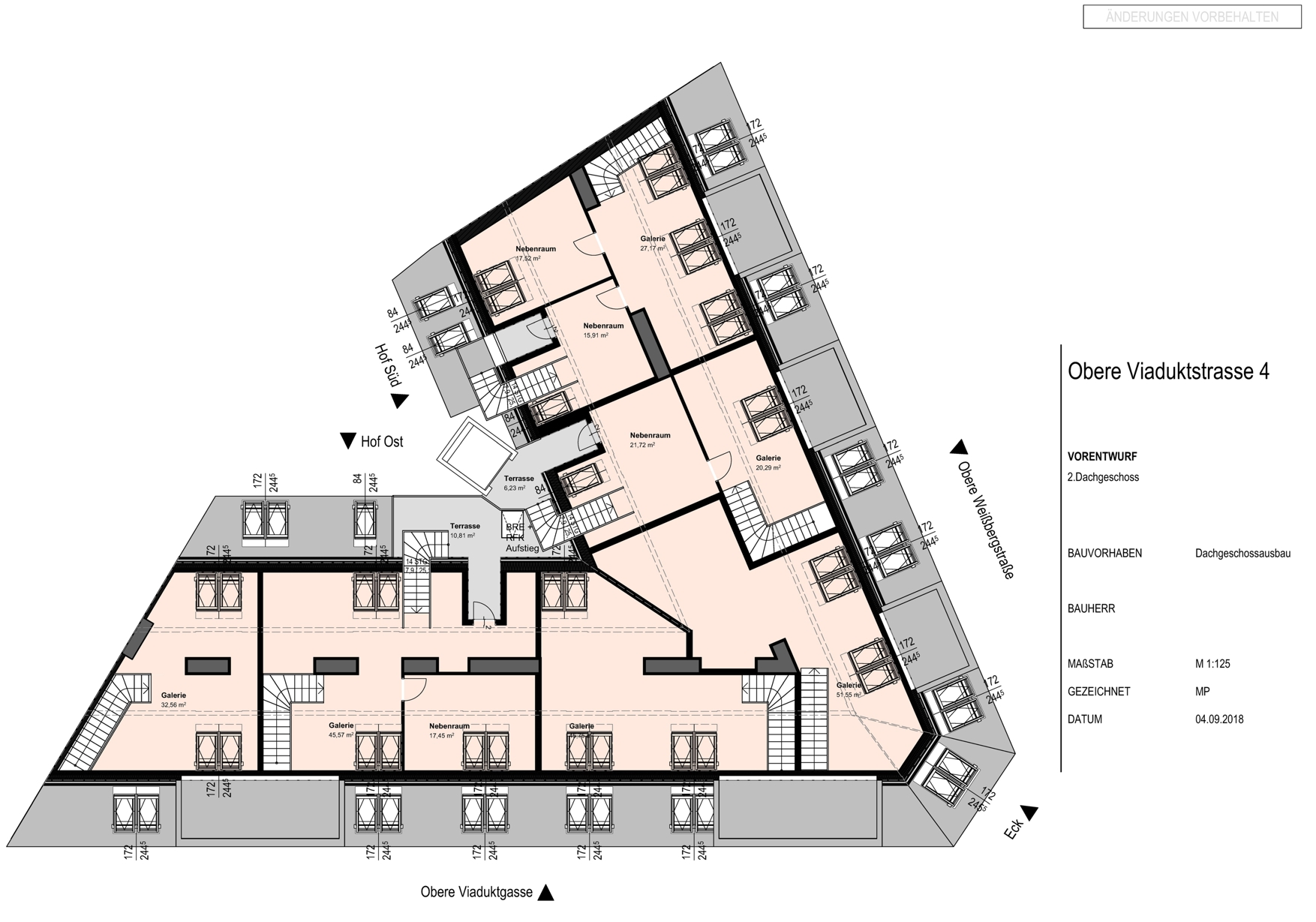
Beschreibung: Beschreibung des Rohdachbodens: Der Rohdachboden scheint sich aufgrund der Gebäudesituation (Gebäudetiefe, First/Giebelhöhe, hofseitiger Platz für Lifteinbau) für den geplanten Ausbau sehr gut zu eignen. Beschreibung der geplanten DG-Wohnungen: Laut Vorentwurfsplanung des Planungsbüros Siegl sind 6 Wohneinheiten auf 2 Ebenen mit einer Wohnnutzfläche von ca. 108 bis 145 m² vorgesehen. Die unteren Flächen sehen jeweils eine relativ geräumige Wohnküche, 1 bis 2 Schlafzimmer sowie Nebenräume wie Vorraum, WC, Bad und Abstellraum vor. Die mit Stufenaufgang verbunden Obergeschossflächen sehen jeweils eine Galerie und einen sogenannten Nebenraum vor. Die Belichtung auf der unteren Ebene erfolgt teils über Gaupenfenster und teils (schräg) eingebaute Dachflächenfenster, welche auch im Obergeschoss vorgesehen sind. Die Einheiten Top 3 und 6 verfügen lt. Plan über 2 Terrassen, Top 5 über eine Terrasse und Top 4 über einen Balkon. Für die Top 1 und 2 ist weder Terrasse noch Balkon geplant. Insgesamt erscheint die Grundrissgestaltung zeitgemäß, bei der nachfolgenden Bewertung wurde im Hinblick auf eine noch mögliche Planoptimierung von einer guten bis durchschnittlichen Grundrissgestaltung ausgegangen. Bei der Bewertung wird davon ausgegangen, dass bei einer baulichen Umsetzung des Projektes ein zeitgemäßer technischer Standard berücksichtigt wird und eine qualitativ ansprechende Ausführung erfolgt.
Grundstücksgröße: 646 m²
Objektgröße: 797,00 m²
Schätzwert: 1.755.000,00
geringstes Gebot: 877.500,00
Vadium: 175.500,00
Langgutachten: 25 05 08 Gutachten Obere Viaduktgasse 4 DG27.pdf25 05 08 Gutachten Obere Viaduktgasse 4 DG27.pdf  
Lageplan: Lageplan.jpgLageplan.jpg  
Grundriss: Vorentwurf 1DG.jpgVorentwurf 1DG.jpg   Vorentwurf 2DG.jpgVorentwurf 2DG.jpg  
Fotos: IMG_3308.JPGIMG_3308.JPG   IMG_3312.JPGIMG_3312.JPG   IMG_3322.jpgIMG_3322.jpg   IMG_3328.JPGIMG_3328.JPG   IMG_3330.JPGIMG_3330.JPG   IMG_3341.JPGIMG_3341.JPG   IMG_3354.JPGIMG_3354.JPG   IMG_3340.JPGIMG_3340.JPG  
Direktlink: https://edikte.justiz.gv.at/    (Eingebundene Vorschaubilder sind embedded content von edikte.justiz.gv.at; die Links verweisen direkt auf die entsprechende externe Seite.)


Kredit umschulden und Kosten sparen
mit einem Umschuldungskredit.
Egal ob Ratenkredit oder Immobilienkredit.
Kredite zu Top-Konditionen umschulden.
Hier: die neue Kreditrate berechnen!
  Autoversicherung online 04/2026.
Anbieter in ganz Österreich vergleichen
und damit bis zu 700 Euro sparen.
Versicherung bequem online abschließen.
Jetzt Prämie sparen: Autoversicherung
  Stromkosten sparen durch Anbieterwechsel!
Großer Strompreisvergleich für Österreich.
Stromanbieter online vergleichen und
in nur 3 Minuten Vertrag abschließen.
Strompreisvergleich online: Strom

Ortsende Wien  ♦  Niederösterreich  ♦  Burgenland  ♦  Oberösterreich  ♦  Salzburg  ♦  Tirol  ♦  Vorarlberg  ♦  Steiermark  ♦  Kärnten   

| Impressum  |  Datenschutz |