Zwangsversteigerung: 8053 Graz Am Wagrain 72 - Eigentumswohnung

Ortsanfang    Ortsanfang  


Wien  ♦  Niederösterreich  ♦  Burgenland  ♦  Oberösterreich  ♦  Salzburg  ♦  Tirol  ♦  Vorarlberg  ♦  Steiermark  ♦  Kärnten


Information   Details
Edikt: Versteigerung (17.12.2025)
Gericht - Aktenzeichen: BG Graz-West (641) - 309 E 47/24m
Liegenschaftsadresse: 8053 Graz Am Wagrain 72
Kategorie: Eigentumswohnung
Objektbezeichnung: Wohnung
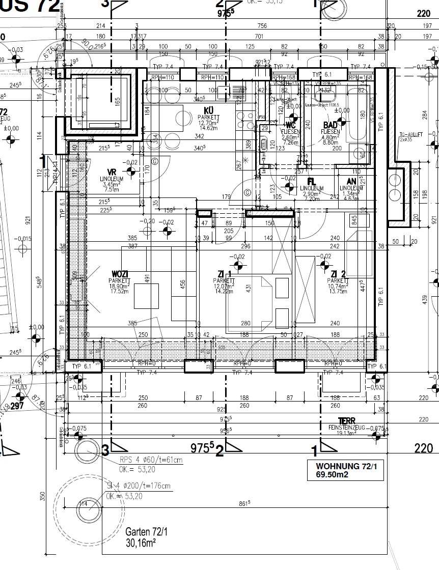
Beschreibung: Änderung der gesetzlichen Versteigerungsbedingungen: Die Anteile B-LNr. 176 und 177 werden gem. § 146 Abs 1 Z 3 EO gemeinsam ausgeboten, zumal es sich bei den Anteilen und Wohnung und zugegehörigem Tiefgaragen-Abstellplatz handelt. Die unregelmäßig abgegrenzte aber in der Grundkonfiguration als rechteckig zu bezeichnende, ebene Gesamtliegenschaft, grenzt unmittelbar an die Straße am Wagrain an und wird somit über öffentliches Gut erschlossen. Die Straße Am Wagrain verläuft etwa von Norden nach Süden, östlich der Straße befinden sich die Bahngleise der ÖBB. Von der Straße führt eine Zufahrt zu einem asphaltierten Parkplatz mit KFZ-Stellplätzen im Freien. Dieser Parkplatz ist der Liegenschaft vorgelagert. Auf der Liegenschaft wurde eine Wohnhausanlage bestehend aus 6 Wohngebäuden und KFZ-Stellplätzen errichtet. einen eigenen Eingang auf. Die Wärmeversorgung aller Wohnungen erfolgt durch eine Zentralheizungsanlage. Unter dem Innenhof befindet sich eine erdüberdeckte Tiefgarage mit 69 KFZ-Abstellflächen, die Einfahrt erfolgt direkt über eine überdachte Rampe von der Straße Am Wagrain. Anlässlich der Befundaufnahme erfolgte der Hinweis, dass die Wohnung vermietet war. Zum Zeitpunkt der Befundaufnahme war diese unbewohnt. Es ist nicht bekannt, ob ein Mietverhältnis besteht. Die Bewertung erfolgte daher unter der Annahme, dass die Wohnung bestandfrei ist. An der gegenständlichen, im Erdgeschoß liegenden Wohnung wurde zu TZ 4057/2018 Wohnungseigentum begründet. Entsprechend dem vorliegenden Nutzwertgutachten weist die Wohnung eine Nutzfläche von 69,50 m² auf und ist mit einer 19,13 m² großen Terrasse, einer 30,16 m² großen Gartenfläche und einem 9,30 m² großen Kellerabteil ausgestattet. Sie weist einen Nutzwert vom 75 Nutzwerten und einen Mindestanteil von 150/12 558 auf. Sie ist mit Kunststofffenstern und Kunststoffbalkontüren mit Isolierverglasung ausgestattet. Zur Verdunkelung sind Außen liegende Jalousien angebracht. Die Türen sind das Vollbautüren mit Metallzargen ausgeführt. Die Wände in der Wohnung sind gespachtelt und gestrichen. Die Böden in den Wohnräumen sind mit Klebeparkett ausgeführt, im Vorraum sind keramische Fliesen verlegt, im zweiten Vorraum wurde PVC verlegt, die Sanitärbereiche sind keramischverfliest. Im WC sind die Fliesen etwa bis zu einem Drittel der Raumhöhe hochgezogen, das WC ist zusätzlich mit einem Handwaschtisch ausgestattet. Das Bad ist mit einer Badewanne mit Brause sowie einem Handwaschtisch ausgestattet. Die Warmwasseraufbereitung erfolgt über einen elektrischen Boiler. Die Wände sind etwa zu drei Viertel raumhoch keramisch verfliest. Die Wohnung wird mit einer Fernwärmeheizung und Radiatoren in den Räumen beheizt. Die Elektrik befindet sich am Stand der Technik. Der Wohnung ist ein Kellerabteil zugeordnet. Die Wohnung weist einen normal erhaltenen Zustand auf. Die Böden zeigen Spuren von der Nutzung, die Parkettböden können noch geschliffen werden. Die Malerei ist zu erneuern. Teil - weise sind Schalter der Elektroinstallationen zu erneuern. Im Bereich der Außenwand an der östlichen Mauer der Wohnung in den Räumen Zimmer 2, AN und Bad sind im Bereich knapp ober der Sesselleiste Spuren von Feuchtigkeit (eventuell Kältebrücke) durch Schäden am Putz erkennbar.
Grundstücksgröße: 10.662 m²
Objektgröße: 69,50 m²
Schätzwert: 169.500,00
geringstes Gebot: 84.750,00
Vadium: 16.950,00
mitzuversteigerndes Zubehör: Küche mit kunststofffurnierten Korpussen und einer Kunststoffarbeitsplatte. Die Küche besteht aus Unterschränken und zwei Oberschränken, einem Hochschrank. An die Küche anschließend befindet sich eine freistehende hohe Kühl/Gefrier-Kombination. Die Küche ist mit einem Dunstabzug und einer Spüle ausgestattet. Das Kochfeld und das Backrohr sind nicht mehr vorhanden. Der Wert des Zubehörs wurde mit EUR 500,00 bestimmt.
Wert des Zubehörs: 500,00
Langgutachten: Langgutachten.pdfLanggutachten.pdf   Fotodokumentation.pdfFotodokumentation.pdf  
Lageplan: Stadtplan (2).jpgStadtplan (2).jpg   Stadtplan.jpgStadtplan.jpg   Luftbild.jpgLuftbild.jpg   Ansicht Luftbild.pngAnsicht Luftbild.png   Flächenwidmungsplan.jpgFlächenwidmungsplan.jpg  
Grundriss: Wohnungsplan.jpgWohnungsplan.jpg  
Direktlink: https://edikte.justiz.gv.at/    (Eingebundene Vorschaubilder sind embedded content von edikte.justiz.gv.at; die Links verweisen direkt auf die entsprechende externe Seite.)


Stromkosten sparen durch Anbieterwechsel!
Großer Strompreisvergleich für Österreich.
Stromanbieter online vergleichen und
in nur 3 Minuten Vertrag abschließen.
Strompreisvergleich online: Strom
  Top Versicherungsschutz für Ihre Immobilie.
Durch online-Preisvergleich zur besten Eigenheimversicherung.
Top aktuelle Angebote: Stand 12/2025
Online-Test: Eigenheimversicherung
  Das Maximum herausholen!
Die besten Sparzinsen Österreichs.
Fix (Festgeld) oder flexibel (täglich fällig).
Kostenloser Online-Zinsvergleich.
12/2025: Sparzinsen

Ortsende Wien  ♦  Niederösterreich  ♦  Burgenland  ♦  Oberösterreich  ♦  Salzburg  ♦  Tirol  ♦  Vorarlberg  ♦  Steiermark  ♦  Kärnten   

| Impressum  |  Datenschutz |