Zwangsversteigerung: 1130 Wien Gobergasse 88 ident Cuviergasse 42 - Wohnungseigentumsobjekt

Ortsanfang    Ortsanfang  


Wien  ♦  Niederösterreich  ♦  Burgenland  ♦  Oberösterreich  ♦  Salzburg  ♦  Tirol  ♦  Vorarlberg  ♦  Steiermark  ♦  Kärnten


Information   Details
Edikt: Versteigerung (22.04.2026)
Gericht - Aktenzeichen: BG Hietzing (012) - 4 E 17/25h
Liegenschaftsadresse: 1130 Wien Gobergasse 88 ident Cuviergasse 42
Kategorie: Wohnungseigentumsobjekt
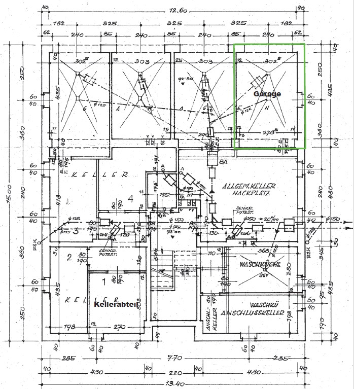
Objektbezeichnung: Garage 5c
Beschreibung: Die ggst. Eckliegenschaft EZ 3287 besteht aus den GST 896/35 und 896/36, ist in leichter Hanglage gelegen, polygonal ausgestaltet und verfügt lt. Grundbuch über eine Grundstücksfläche von insgesamt 702 m². Auf der Liegenschaft befindet sich ein Anfang der 60er Jahre errichtetes Wohnhaus, welches über ein Kellergeschoß, 2 Geschoße über Niveau (EG und 1. OG) und einen Rohdachboden verfügt. Die vertikale Erschließung erfolgt eine Stiege. Ein Aufzug ist nicht vorhanden. Das Wohnhaus umfasst 4 Wohnungen sowie 4 Garagen. Die ggst. Garage befindet sich im Kellergeschoß. liegt straßenseitig aber auf Straßenniveau. Die Zufahrt ist direkt über die Gobergasse gegeben. Ein Zugang über das Stiegenhaus ist ebenfalls gegeben. Ein Zugang über das Stiegenhaus ist ebenfalls gegeben.
Grundstücksgröße: 702 m²
Objektgröße: 14,09 m²
Schätzwert: 19.400,00
geringstes Gebot: 9.700,00
Vadium: 1.940,00
Langgutachten: GA 1130 Wien, Gobergasse 88_final.pdfGA 1130 Wien, Gobergasse 88_final.pdf  
Lageplan: lage.jpglage.jpg  
Grundriss: grgarage.jpggrgarage.jpg  
Fotos: 2garage.jpg2garage.jpg   1.jpg1.jpg  
Direktlink: https://edikte.justiz.gv.at/    (Eingebundene Vorschaubilder sind embedded content von edikte.justiz.gv.at; die Links verweisen direkt auf die entsprechende externe Seite.)


Ihr Wohnkredit zu Top-Konditionen.
Kompetente, kostenlose Expertenberatung.
Für Hausbau oder Wohnungskauf.
Österreichweiter Marktvergleich.
Rasch und einfach: Wohnkredit-Rechner
  Supergünstig zum Eigenheim!
Über 60 Anbieter im kostenlosen
Online‑Kreditvergleich (Stand 04/2026)
Die besten Angebote - fix und variabel.
Top-Konditionen - schnell am Konto!
  Top Versicherungsschutz für Ihre Immobilie.
Durch online-Preisvergleich zur besten Eigenheimversicherung.
Top aktuelle Angebote: Stand 04/2026
Online-Test: Eigenheimversicherung

Ortsende Wien  ♦  Niederösterreich  ♦  Burgenland  ♦  Oberösterreich  ♦  Salzburg  ♦  Tirol  ♦  Vorarlberg  ♦  Steiermark  ♦  Kärnten   

| Impressum  |  Datenschutz |