Zwangsversteigerung: 2384 Breitenfurt Eichengasse 14 - Einfamilienhaus

Ortsanfang    Ortsanfang  


Wien  ♦  Niederösterreich  ♦  Burgenland  ♦  Oberösterreich  ♦  Salzburg  ♦  Tirol  ♦  Vorarlberg  ♦  Steiermark  ♦  Kärnten


Information   Details
Edikt: Versteigerung (27.04.2026)
Gericht - Aktenzeichen: BG Mödling (161) - 5 E 69/24z
Liegenschaftsadresse: 2384 Breitenfurt Eichengasse 14
Kategorie: Einfamilienhaus
Objektbezeichnung: Einfamilienhaus
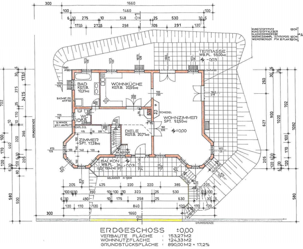
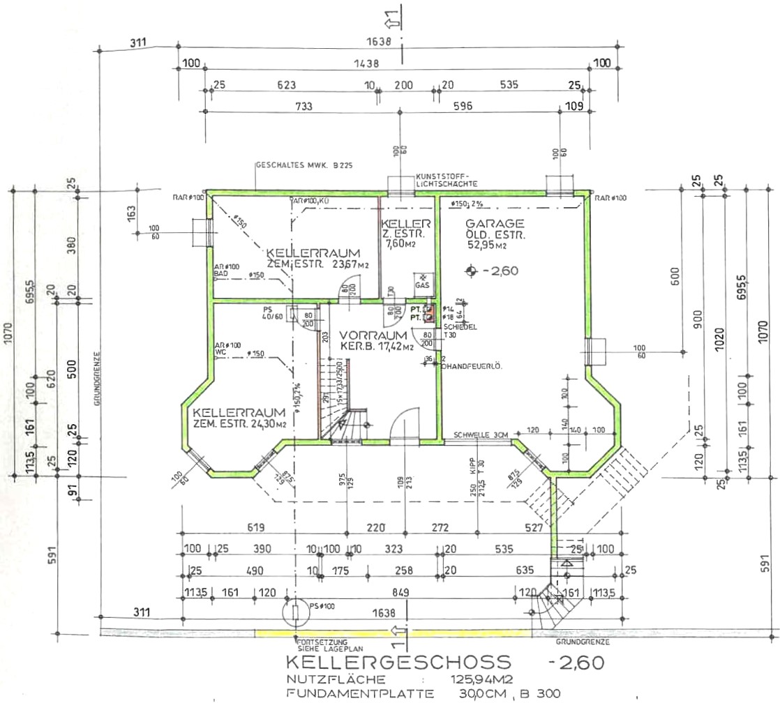
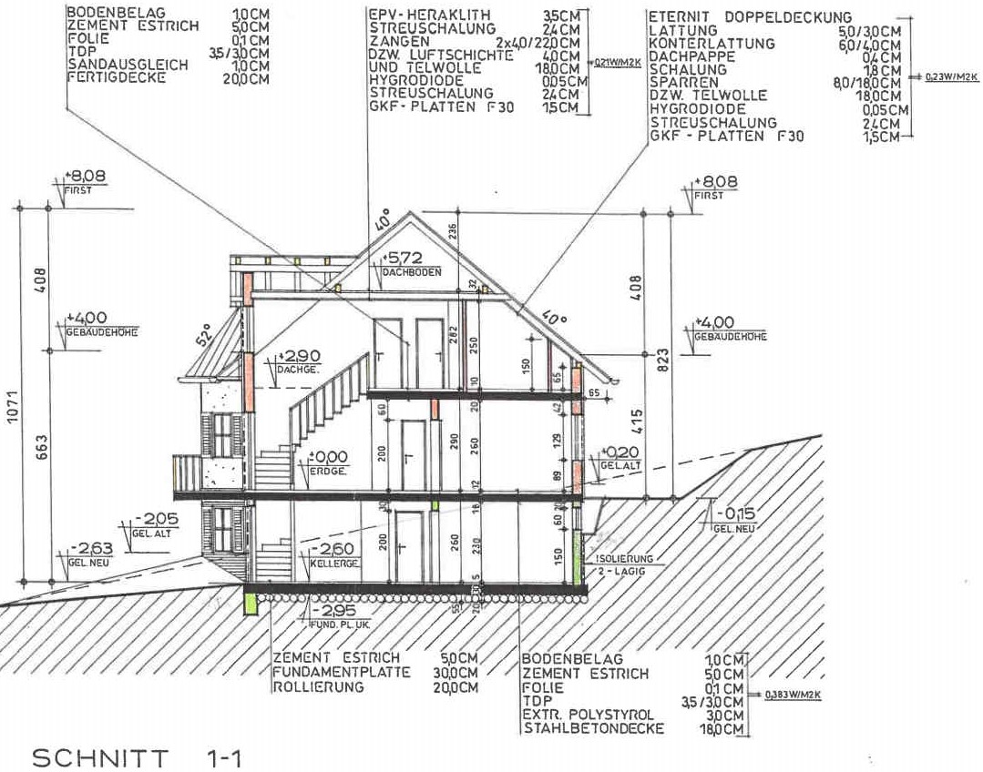
Beschreibung: Einfamilienhaus in Hanglage, Kellergeschoß: Zugang und Zufahrt zur Garage aus Straßenebene. Erdgeschoß: Zugang über Außenstiege Dachgeschoß. Gas-Zentralheizung, Fußbodenheizung und Radiatoren, Warmwasser zentral. Alarmanlage. Pfleglich behandelt. Sehr individuelle Ausführung (Beläge, Sanitäreinrichtungen etc.) Terrasse, Schwimmbecken, aufwändige Gartengestaltung.
Grundstücksgröße: 889 m²
Objektgröße: 350,92 m²
Schätzwert: 940.000,00
geringstes Gebot: 940.000,00
Vadium: 94.000,00
Langgutachten: GA 2384 Eicheng 14.pdfGA 2384 Eicheng 14.pdf   Beilagen zum Gutachten.pdfBeilagen zum Gutachten.pdf  
Lageplan: LP.jpgLP.jpg  
Grundriss: GR KG.jpgGR KG.jpg   GR EG.jpgGR EG.jpg   GR OG.jpgGR OG.jpg   Schnitt.jpgSchnitt.jpg  
Fotos: DSC01618kl.jpgDSC01618kl.jpg   GA - 1.jpgGA - 1.jpg   GA - 2.jpgGA - 2.jpg   GA - 3.jpgGA - 3.jpg   GA - 4.jpgGA - 4.jpg   GA - 5.jpgGA - 5.jpg   GA - 6.jpgGA - 6.jpg   GA - 7.jpgGA - 7.jpg   GA - 8.jpgGA - 8.jpg   GA - 9.jpgGA - 9.jpg   GA - 10.jpgGA - 10.jpg   GA - 11.jpgGA - 11.jpg   GA - 12.jpgGA - 12.jpg  
Direktlink: https://edikte.justiz.gv.at/    (Eingebundene Vorschaubilder sind embedded content von edikte.justiz.gv.at; die Links verweisen direkt auf die entsprechende externe Seite.)


Ideal für Beträge von 1.000 € bis 75.000 €
Der Ratenkredit aus dem Internet.
Einfach Zuhause die Anbieter vergleichen.
Abschluss online - schnell am Konto!
Hier: Kreditrate und Zinssatz berechnen!
  Die Finanzierung für Ihren Hausbau:
Baufinanzierung & Baukredit-Rechner.
Maßgeschneidert und Top-Konditionen.
Schnelle & unbürokratische Abwicklung.
Monatsrate und Zinsen: Online-Rechner
  Supergünstig zum Eigenheim!
Über 60 Anbieter im kostenlosen
Online‑Kreditvergleich (Stand 04/2026)
Die besten Angebote - fix und variabel.
Top-Konditionen - schnell am Konto!

Ortsende Wien  ♦  Niederösterreich  ♦  Burgenland  ♦  Oberösterreich  ♦  Salzburg  ♦  Tirol  ♦  Vorarlberg  ♦  Steiermark  ♦  Kärnten   

| Impressum  |  Datenschutz |