Zwangsversteigerung: 1180 Wien Bastiengasse 22 - Eigentumswohnung

Ortsanfang    Ortsanfang  


Wien  ♦  Niederösterreich  ♦  Burgenland  ♦  Oberösterreich  ♦  Salzburg  ♦  Tirol  ♦  Vorarlberg  ♦  Steiermark  ♦  Kärnten


Information   Details
Edikt: Versteigerung (29.04.2026)
Gericht - Aktenzeichen: BG Döbling (015) - 26 E 24/25h
Liegenschaftsadresse: 1180 Wien Bastiengasse 22
Kategorie: Eigentumswohnung
Objektbezeichnung: Wohnung 11
Beschreibung: Lage im 1. Stock, Erschließung über Stiegenhaus. Lift mit Schlüsselbetrieb. Ausrichtung gegen Straße (etwa Süden) und Lichthof (etwa Norden). Vorzimmer, Küche, 2 Zimmer, Kabinett, Bad, Diener (AR), WC. Gas-Etagenheizung, Radiatoren. Starke Abnützungen der Oberflächen. Funktion der Installationen wird angegeben.
Objektgröße: 92,47 m²
Schätzwert: 369.000,00
geringstes Gebot: 184.500,00
Vadium: 36.900,00
Langgutachten: GA 1180 Bastieng 22_Geschwärzt.pdfGA 1180 Bastieng 22_Geschwärzt.pdf   Beilagen zum Gutachten_Geschwärzt.pdfBeilagen zum Gutachten_Geschwärzt.pdf  
Lageplan: Karte-23.jpgKarte-23.jpg  
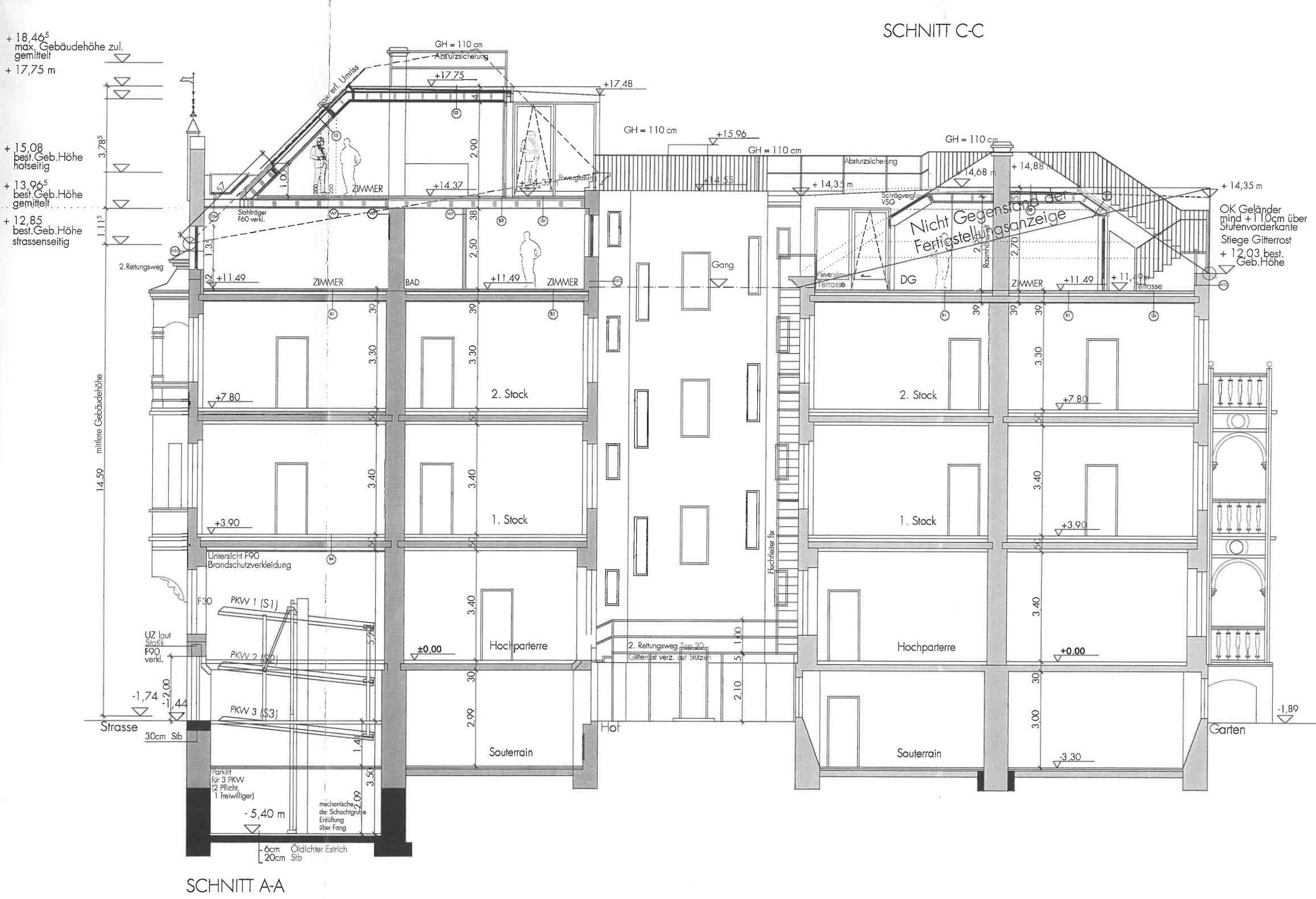
Grundriss: GR.jpgGR.jpg   Schnitt Altbestand.jpgSchnitt Altbestand.jpg   Schnitt DG-Ausbau.jpgSchnitt DG-Ausbau.jpg  
Fotos: DSC06079kl.jpgDSC06079kl.jpg   GA - 1.jpgGA - 1.jpg   GA - 2.jpgGA - 2.jpg   GA - 3.jpgGA - 3.jpg   GA - 4.jpgGA - 4.jpg   GA - 5.jpgGA - 5.jpg   GA - 6.jpgGA - 6.jpg   GA - 7.jpgGA - 7.jpg   GA - 8.jpgGA - 8.jpg   GA - 9.jpgGA - 9.jpg   GA - 10.jpgGA - 10.jpg   GA - 11.jpgGA - 11.jpg  
Direktlink: https://edikte.justiz.gv.at/    (Eingebundene Vorschaubilder sind embedded content von edikte.justiz.gv.at; die Links verweisen direkt auf die entsprechende externe Seite.)


Ihr Wohnkredit zu Top-Konditionen.
Kompetente, kostenlose Expertenberatung.
Für Hausbau oder Wohnungskauf.
Österreichweiter Marktvergleich.
Rasch und einfach: Wohnkredit-Rechner
  Ideal für Beträge von 1.000 € bis 75.000 €
Der Ratenkredit aus dem Internet.
Einfach Zuhause die Anbieter vergleichen.
Abschluss online - schnell am Konto!
Hier: Kreditrate und Zinssatz berechnen!
  Autoversicherung online 04/2026.
Anbieter in ganz Österreich vergleichen
und damit bis zu 700 Euro sparen.
Versicherung bequem online abschließen.
Jetzt Prämie sparen: Autoversicherung

Ortsende Wien  ♦  Niederösterreich  ♦  Burgenland  ♦  Oberösterreich  ♦  Salzburg  ♦  Tirol  ♦  Vorarlberg  ♦  Steiermark  ♦  Kärnten   

| Impressum  |  Datenschutz |