Zwangsversteigerung: 1230 Wien Anton-Heger-Platz 2 - Eigentumswohnung

Ortsanfang    Ortsanfang  


Wien  ♦  Niederösterreich  ♦  Burgenland  ♦  Oberösterreich  ♦  Salzburg  ♦  Tirol  ♦  Vorarlberg  ♦  Steiermark  ♦  Kärnten


Information   Details
Edikt: Versteigerung (20.05.2026)
Gericht - Aktenzeichen: BG Liesing (018) - 9 E 34/25p
Liegenschaftsadresse: 1230 Wien Anton-Heger-Platz 2
Kategorie: Eigentumswohnung
Objektbezeichnung: Wohnung DG/21
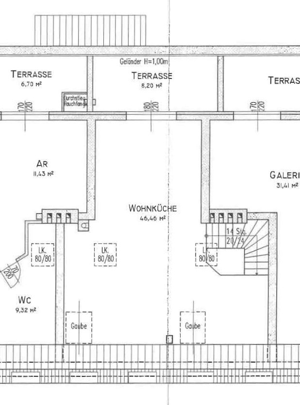
Beschreibung: 2-geschoßige Wohnung im Dachgeschoß (über 2. Stock), Erschließung über Stiegenhaus. Interne Stiege zum Galeriegeschoß. DG: Vorraum, Bad, WC, 2 Zimmer (ein Zimmer im Plan mit Wohnküche bezeichnet). GG: Wohnküche, Terrasse. Ausrichtung gegen Norden und Süden. Gas-Etagenheizung, Radiatoren. Sprechanlage/Türöffner fehlt. Klimatisierung im Galeriegeschoß. Durchschnittlich guter Erhaltungszustand der Wohnung. Instandhaltungen in allgemeinen Gebäudebereiche vorzusehen, siehe Langgutachten. In Benützung durch Wohnungsgebrauchsberechtigte.
Grundstücksgröße: 460 m²
Objektgröße: 91,63 m²
Schätzwert: 266.000,00
geringstes Gebot: 133.000,00
Vadium: 26.600,00
Langgutachten: GA 1230 Anton-Heger-Platz 2_Geschwärzt.pdfGA 1230 Anton-Heger-Platz 2_Geschwärzt.pdf   Beilagen zum Gutachten_Geschwärzt.pdfBeilagen zum Gutachten_Geschwärzt.pdf  
Lageplan: Karte-1.jpgKarte-1.jpg  
Grundriss: GR DG.jpgGR DG.jpg   GR GG.jpgGR GG.jpg   Schnitt.jpgSchnitt.jpg  
Fotos: DSC05710kl.jpgDSC05710kl.jpg   GA - 1.jpgGA - 1.jpg   GA - 2.jpgGA - 2.jpg   GA - 3.jpgGA - 3.jpg   GA - 4.jpgGA - 4.jpg   GA - 5.jpgGA - 5.jpg   GA - 6.jpgGA - 6.jpg   GA - 7.jpgGA - 7.jpg   GA - 8.jpgGA - 8.jpg   GA - 9.jpgGA - 9.jpg  
Direktlink: https://edikte.justiz.gv.at/    (Eingebundene Vorschaubilder sind embedded content von edikte.justiz.gv.at; die Links verweisen direkt auf die entsprechende externe Seite.)


Ihr Wohnkredit zu Top-Konditionen.
Kompetente, kostenlose Expertenberatung.
Für Hausbau oder Wohnungskauf.
Österreichweiter Marktvergleich.
Rasch und einfach: Wohnkredit-Rechner
  Autoversicherung online 04/2026.
Anbieter in ganz Österreich vergleichen
und damit bis zu 700 Euro sparen.
Versicherung bequem online abschließen.
Jetzt Prämie sparen: Autoversicherung
  Kredit umschulden und Kosten sparen
mit einem Umschuldungskredit.
Egal ob Ratenkredit oder Immobilienkredit.
Kredite zu Top-Konditionen umschulden.
Hier: die neue Kreditrate berechnen!

Ortsende Wien  ♦  Niederösterreich  ♦  Burgenland  ♦  Oberösterreich  ♦  Salzburg  ♦  Tirol  ♦  Vorarlberg  ♦  Steiermark  ♦  Kärnten   

| Impressum  |  Datenschutz |