Zwangsversteigerung: 8530 Deutschlandsberg Grazer Straße 102_2 - Wohnungseigentumsobjekt

Ortsanfang    Ortsanfang  


Wien  ♦  Niederösterreich  ♦  Burgenland  ♦  Oberösterreich  ♦  Salzburg  ♦  Tirol  ♦  Vorarlberg  ♦  Steiermark  ♦  Kärnten


Information   Details
Edikt: Versteigerung (01.06.2026)
Gericht - Aktenzeichen: BG Deutschlandsberg (610) - 105 E 11/23z
Liegenschaftsadresse: 8530 Deutschlandsberg Grazer Straße 102_2
Kategorie: Wohnungseigentumsobjekt
Objektbezeichnung: Eigentumswohnung
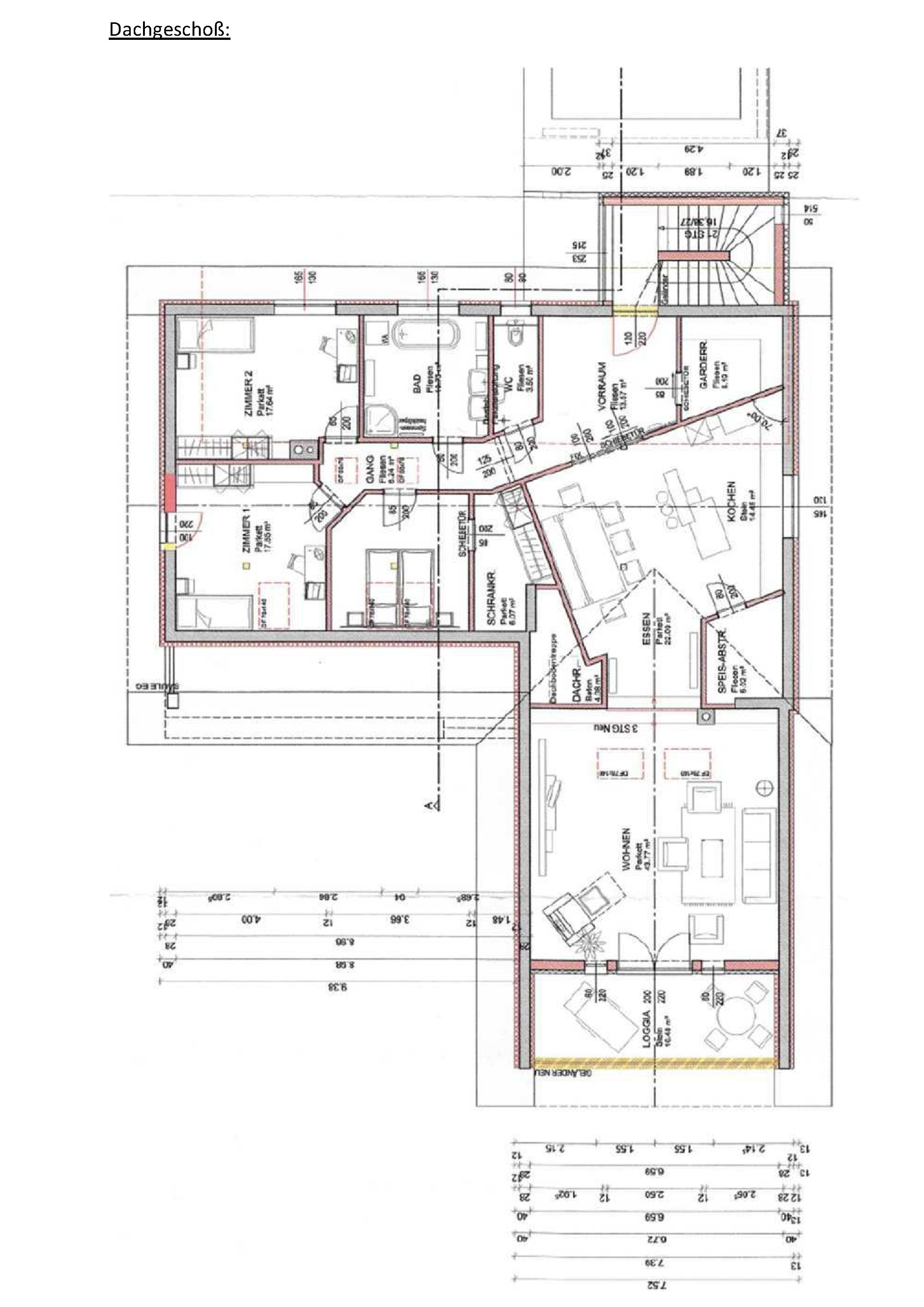
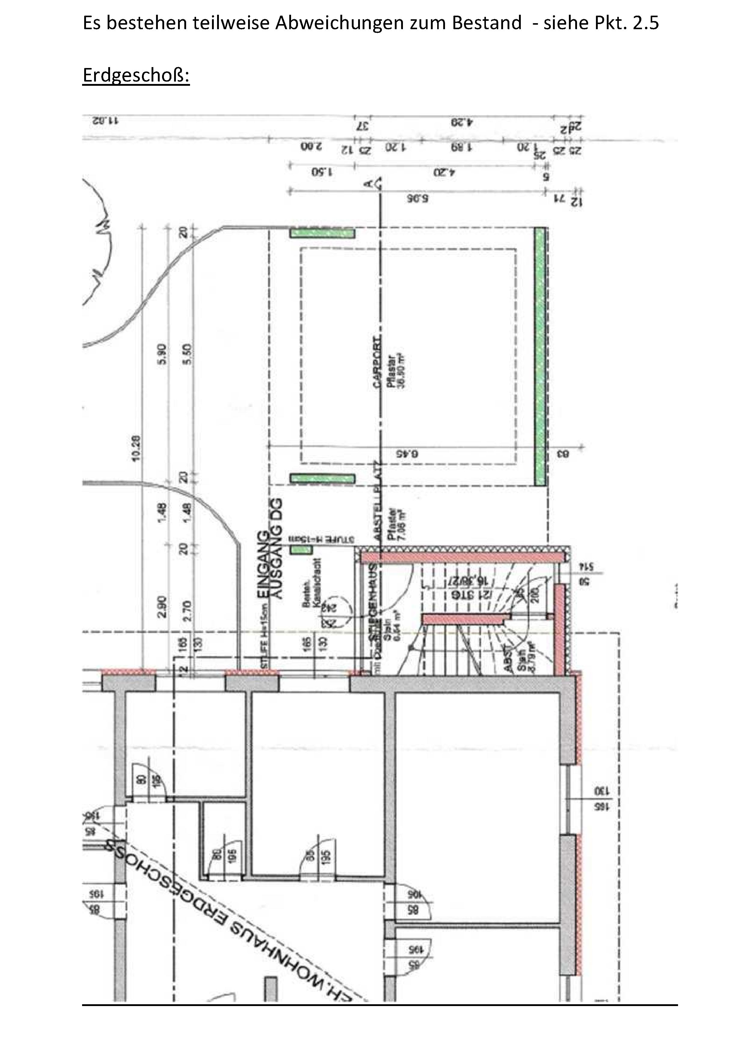
Beschreibung: Das Wohnungseigentumsobjekt befindet sich im Dachgeschoß eines Zweifamilienhauses mit eigenem Zugang im Erdgeschoß. Es sind Dachschrägen vorhanden. Die ursprüngliche Errichtung des Hauses erfolgte ca. 1975. Es ist bau- und benützungsbewilligt. Es bestehen kleinere Abweichungen zum Einreichplan - z.B.: Loggia ist als Raum verblieben, Carport wurde abweichend errichtet.
Grundstücksgröße: 2.750 m²
Objektgröße: 185,44 m²
Schätzwert: 395.000,00
geringstes Gebot: 201.575,00
Vadium: 40.315,00
mitzuversteigerndes Zubehör: Küche inkl. Elektrogeräte Schwedenofen
Wert des Zubehörs: 8.150,00
Langgutachten: GA Grazer Straße 102_2 klein.pdfGA Grazer Straße 102_2 klein.pdf  
Lageplan: GIS.jpgGIS.jpg  
Grundriss: EG.jpgEG.jpg   DG.jpgDG.jpg  
Fotos: DSC01568.JPGDSC01568.JPG   DSC01569.JPGDSC01569.JPG   DSC01570.JPGDSC01570.JPG   DSC01571.JPGDSC01571.JPG   DSC01575.JPGDSC01575.JPG   DSC01576.JPGDSC01576.JPG   DSC01577.JPGDSC01577.JPG   DSC01578.JPGDSC01578.JPG   DSC01579.JPGDSC01579.JPG   DSC01580.JPGDSC01580.JPG   DSC01581.JPGDSC01581.JPG   DSC01582.JPGDSC01582.JPG   DSC01584.JPGDSC01584.JPG   DSC01586.JPGDSC01586.JPG   DSC01588.JPGDSC01588.JPG   DSC01589.JPGDSC01589.JPG   DSC01591.JPGDSC01591.JPG   DSC01593.JPGDSC01593.JPG   DSC01594.JPGDSC01594.JPG   DSC01595.JPGDSC01595.JPG   DSC01597.JPGDSC01597.JPG   DSC01598.JPGDSC01598.JPG   DSC01599.JPGDSC01599.JPG   DSC01600.JPGDSC01600.JPG   DSC01602.JPGDSC01602.JPG   DSC01605.JPGDSC01605.JPG   DSC01606.JPGDSC01606.JPG   DSC01607.JPGDSC01607.JPG   DSC01610.JPGDSC01610.JPG   DSC01612.JPGDSC01612.JPG   DSC01614.JPGDSC01614.JPG   DSC01616.JPGDSC01616.JPG   DSC01617.JPGDSC01617.JPG   DSC01618.JPGDSC01618.JPG   DSC01620.JPGDSC01620.JPG  
Direktlink: https://edikte.justiz.gv.at/    (Eingebundene Vorschaubilder sind embedded content von edikte.justiz.gv.at; die Links verweisen direkt auf die entsprechende externe Seite.)


Die Finanzierung für Ihren Hausbau:
Baufinanzierung & Baukredit-Rechner.
Maßgeschneidert und Top-Konditionen.
Schnelle & unbürokratische Abwicklung.
Monatsrate und Zinsen: Online-Rechner
  Autoversicherung online 04/2026.
Anbieter in ganz Österreich vergleichen
und damit bis zu 700 Euro sparen.
Versicherung bequem online abschließen.
Jetzt Prämie sparen: Autoversicherung
  Supergünstig zum Eigenheim!
Über 60 Anbieter im kostenlosen
Online‑Kreditvergleich (Stand 04/2026)
Die besten Angebote - fix und variabel.
Top-Konditionen - schnell am Konto!

Ortsende Wien  ♦  Niederösterreich  ♦  Burgenland  ♦  Oberösterreich  ♦  Salzburg  ♦  Tirol  ♦  Vorarlberg  ♦  Steiermark  ♦  Kärnten   

| Impressum  |  Datenschutz |