Zwangsversteigerung: 4263 Windhaag bei Freistadt Riemetschlag 27 - land- und forstwirtschaftlich genutzte Liegenschaft

Ortsanfang    Ortsanfang  


Wien  ♦  Niederösterreich  ♦  Burgenland  ♦  Oberösterreich  ♦  Salzburg  ♦  Tirol  ♦  Vorarlberg  ♦  Steiermark  ♦  Kärnten


Information   Details
Edikt: Versteigerung (29.04.2026)
Gericht - Aktenzeichen: BG Freistadt (410) - 5 E 223/25f
Liegenschaftsadresse: 4263 Windhaag bei Freistadt Riemetschlag 27
Kategorie: land- und forstwirtschaftlich genutzte Liegenschaft
Objektbezeichnung: Landwirtschaft
Beschreibung: Land-u.forstwirtschaftliche Liegenschaft mit alter Mühle und altem Sägewerk
Grundstücksgröße: 163.805 m²
Objektgröße: 742,00 m²
Schätzwert: 640.000,00
geringstes Gebot: 320.000,00
Vadium: 64.000,00
mitzuversteigerndes Zubehör: Sonstige Vermögenswerte laut Gutachten (Fahrnisse, Fahrzeuge, Maschinen, Geräte, Werkzeuge), wobei hinsichtlich des Traktors Steyr 760, defekt, Fremdeigentum behauptet wird und dieser im Schätzwert zum Zubehör mit € 1.000,-- enthalten ist.
Wert des Zubehörs: 49.000,00
Langgutachten: Gutachten.pdfGutachten.pdf   Gutachten Ergänzung pdf.pdfGutachten Ergänzung pdf.pdf  
Lageplan: Lageplan.jpgLageplan.jpg  
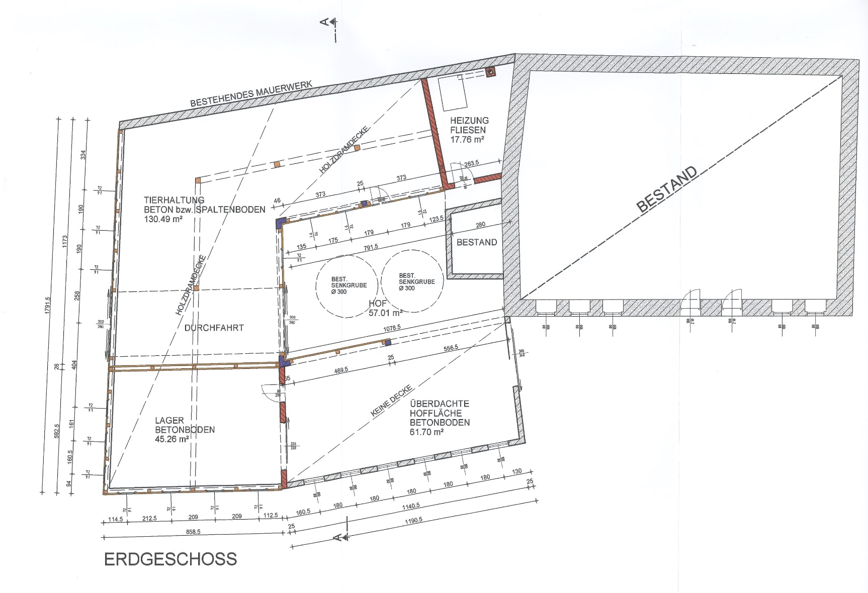
Grundriss: Grundriss Wirtschaftsgebäude.jpgGrundriss Wirtschaftsgebäude.jpg  
Fotos: Südansicht.jpgSüdansicht.jpg   Gst 794.jpgGst 794.jpg  
Direktlink: https://edikte.justiz.gv.at/    (Eingebundene Vorschaubilder sind embedded content von edikte.justiz.gv.at; die Links verweisen direkt auf die entsprechende externe Seite.)


Kredit umschulden und Kosten sparen
mit einem Umschuldungskredit.
Egal ob Ratenkredit oder Immobilienkredit.
Kredite zu Top-Konditionen umschulden.
Hier: die neue Kreditrate berechnen!
  Top Versicherungsschutz für Ihre Immobilie.
Durch online-Preisvergleich zur besten Eigenheimversicherung.
Top aktuelle Angebote: Stand 04/2026
Online-Test: Eigenheimversicherung
  Ideal für Beträge von 1.000 € bis 75.000 €
Der Ratenkredit aus dem Internet.
Einfach Zuhause die Anbieter vergleichen.
Abschluss online - schnell am Konto!
Hier: Kreditrate und Zinssatz berechnen!

Ortsende Wien  ♦  Niederösterreich  ♦  Burgenland  ♦  Oberösterreich  ♦  Salzburg  ♦  Tirol  ♦  Vorarlberg  ♦  Steiermark  ♦  Kärnten   

| Impressum  |  Datenschutz |