Zwangsversteigerung: 9852 Trebesing Rachenbach 1 - land- und forstwirtschaftlich genutzte Liegenschaft

Ortsanfang    Ortsanfang  


Wien  ♦  Niederösterreich  ♦  Burgenland  ♦  Oberösterreich  ♦  Salzburg  ♦  Tirol  ♦  Vorarlberg  ♦  Steiermark  ♦  Kärnten


Information   Details
Edikt: Verschiebung (von 12.03.2026 auf 23.04.2026)
Gericht - Aktenzeichen: BG Spittal an der Drau (730) - 6 E 5/25w
Liegenschaftsadresse: 9852 Trebesing Rachenbach 1
Kategorie: land- und forstwirtschaftlich genutzte Liegenschaft
Objektbezeichnung: Landw. Liegenschaft
Beschreibung: Landwirtschaftliche Liegenschaft vulgo Jassinger (zurzeit unbewohnt) auf 750m Seehöhe mit lw. Grundstücken, Wald sowie einer ehemaligen Kies./Schottergrube. Einsturzgefahr bei der Tenne. Details siehe Langgutachten.
Grundstücksgröße: 126.559 m²
Objektgröße: 137,00 m²
Schätzwert: 460.000,00
geringstes Gebot: 230.000,00
Vadium: 46.000,00
mitzuversteigerndes Zubehör: -
Langgutachten: Gutachten_Drießler(Trebesing)-signed-c.pdfGutachten_Drießler(Trebesing)-signed-c.pdf  
Lageplan: 0104669236_100_Kataster_Hausmappe_Druck_PDF_17_Objekte1.jpg0104669236_100_Kataster_Hausmappe_Druck_PDF_17_Objekte1.jpg   0104669236_100_Kataster_Hausmappe_Druck_PDF_17_Objekte3.jpg0104669236_100_Kataster_Hausmappe_Druck_PDF_17_Objekte3.jpg   0104669236_100_Kataster_Hausmappe_Druck_PDF_17_Objekte4.jpg0104669236_100_Kataster_Hausmappe_Druck_PDF_17_Objekte4.jpg   0104669236_100_Kataster_Hausmappe_Druck_PDF_17_Objekte5.jpg0104669236_100_Kataster_Hausmappe_Druck_PDF_17_Objekte5.jpg  
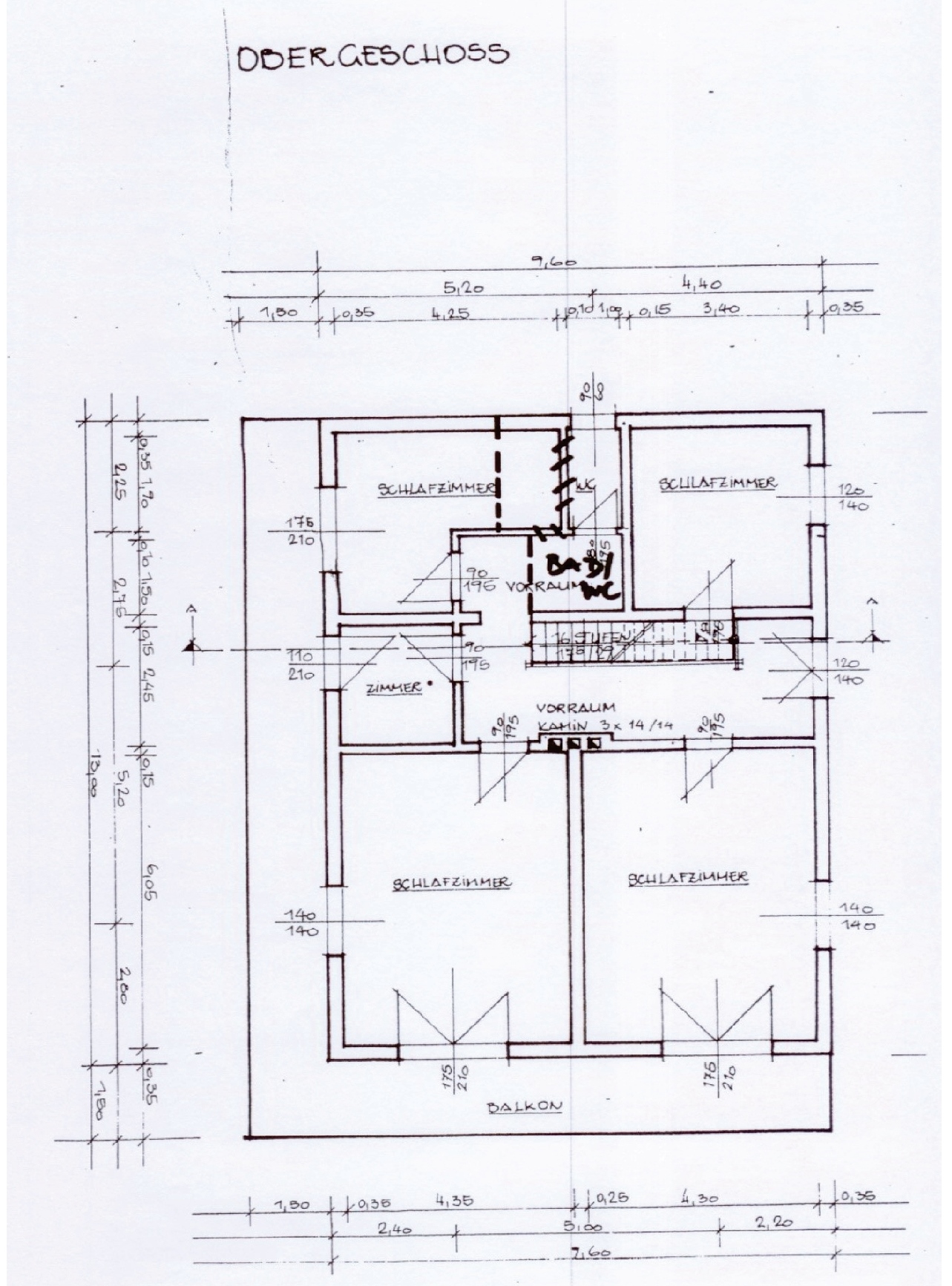
Grundriss: GR1.jpgGR1.jpg   GR2.jpgGR2.jpg  
Fotos: Foto1.JPGFoto1.JPG   Foto2.JPGFoto2.JPG   Foto3.JPGFoto3.JPG   Foto4.JPGFoto4.JPG  
Direktlink: https://edikte.justiz.gv.at/    (Eingebundene Vorschaubilder sind embedded content von edikte.justiz.gv.at; die Links verweisen direkt auf die entsprechende externe Seite.)


Supergünstig zum Eigenheim!
Über 60 Anbieter im kostenlosen
Online‑Kreditvergleich (Stand 04/2026)
Die besten Angebote - fix und variabel.
Top-Konditionen - schnell am Konto!
  Kredit umschulden und Kosten sparen
mit einem Umschuldungskredit.
Egal ob Ratenkredit oder Immobilienkredit.
Kredite zu Top-Konditionen umschulden.
Hier: die neue Kreditrate berechnen!
  Top Versicherungsschutz für Ihre Immobilie.
Durch online-Preisvergleich zur besten Eigenheimversicherung.
Top aktuelle Angebote: Stand 04/2026
Online-Test: Eigenheimversicherung

Ortsende Wien  ♦  Niederösterreich  ♦  Burgenland  ♦  Oberösterreich  ♦  Salzburg  ♦  Tirol  ♦  Vorarlberg  ♦  Steiermark  ♦  Kärnten   

| Impressum  |  Datenschutz |