Zwangsversteigerung: 4840 Vöcklabruck Unterstadtgries 52 - gemischt genutztes Haus

Ortsanfang    Ortsanfang  


Wien  ♦  Niederösterreich  ♦  Burgenland  ♦  Oberösterreich  ♦  Salzburg  ♦  Tirol  ♦  Vorarlberg  ♦  Steiermark  ♦  Kärnten


Information   Details
Edikt: Versteigerung (14.01.2026)
Gericht - Aktenzeichen: BG Vöcklabruck (503) - 8 E 16/25k
Liegenschaftsadresse: 4840 Vöcklabruck Unterstadtgries 52
Kategorie: gemischt genutztes Haus
Objektbezeichnung: Objekt 1
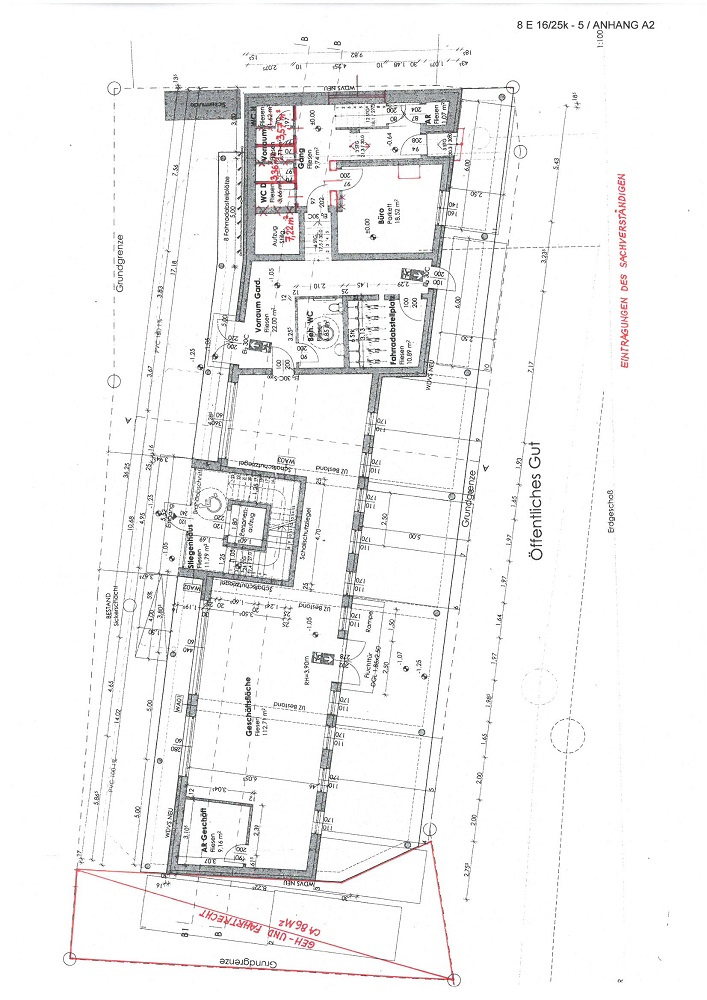
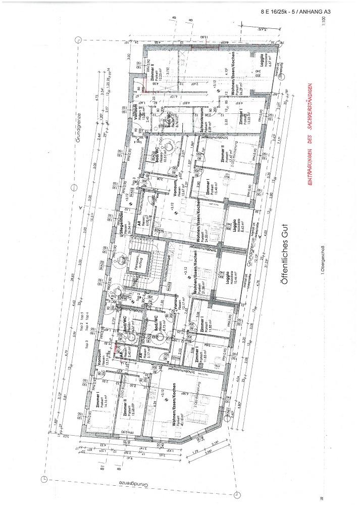
Beschreibung: Beim gegenständlichen Objekt handelt es sich um ein Wohn- und Geschäftshaus mit einer Teilunterkellerung, Erdgeschoss, 1.Obergeschoss und einem zurückversetzen 2. Obergeschoss im Bauzustand Rohbau. UG/Teilunterkellerung: Heizraum, Kellerabstellräume und Stiege Erdgeschoss: Allgemeinflächen, Geschäft und Stiegenhaus mit Lift 1. Obergeschoss: Wohnung Top 1 - 4 und Stiegenhaus mit Lift 2. Obergeschoss: Wohnung Top 5 - 6 und Stiegenhaus mit Lift
Grundstücksgröße: 720 m²
Objektgröße: 671,10 m²
Schätzwert: 916.600,00
geringstes Gebot: 458.300,00
Vadium: 91.660,00
mitzuversteigerndes Zubehör: ------
Langgutachten: SDevelop In25091509570.pdfSDevelop In25091509570.pdf  
Lageplan: SDevelop In25091510000_0001.jpgSDevelop In25091510000_0001.jpg   SDevelop In25091510010_0001.jpgSDevelop In25091510010_0001.jpg  
Grundriss: SDevelop In25091509580_0001.jpgSDevelop In25091509580_0001.jpg   SDevelop In25091509590_0001.jpgSDevelop In25091509590_0001.jpg   SDevelop In25091509591_0001.jpgSDevelop In25091509591_0001.jpg   SDevelop In25091509592_0001.jpgSDevelop In25091509592_0001.jpg  
Fotos: SDevelop In25091510011_0001.jpgSDevelop In25091510011_0001.jpg  
Direktlink: https://edikte.justiz.gv.at/    (Eingebundene Vorschaubilder sind embedded content von edikte.justiz.gv.at; die Links verweisen direkt auf die entsprechende externe Seite.)


Geld sparen durch Gaspreisvergleich.
Gasanbieter vergleichen, wechseln und
damit mehrere hundert Euro sparen.
Kostenlos und unverbindlich - alles online.
Jetzt österreichweit Gaspreise vergleichen.
  Ihr Wohnkredit zu Top-Konditionen.
Kompetente, kostenlose Expertenberatung.
Für Hausbau oder Wohnungskauf.
Österreichweiter Marktvergleich.
Rasch und einfach: Wohnkredit-Rechner
  Ideal für Beträge von 1.000 € bis 75.000 €
Der Ratenkredit aus dem Internet.
Einfach Zuhause die Anbieter vergleichen.
Abschluss online - schnell am Konto!
Hier: Kreditrate und Zinssatz berechnen!

Ortsende Wien  ♦  Niederösterreich  ♦  Burgenland  ♦  Oberösterreich  ♦  Salzburg  ♦  Tirol  ♦  Vorarlberg  ♦  Steiermark  ♦  Kärnten   

| Impressum  |  Datenschutz |