Zwangsversteigerung: 8654 Fischbach Oberdissau 3 - Einfamilienhaus

Ortsanfang    Ortsanfang  


Wien  ♦  Niederösterreich  ♦  Burgenland  ♦  Oberösterreich  ♦  Salzburg  ♦  Tirol  ♦  Vorarlberg  ♦  Steiermark  ♦  Kärnten


Information   Details
Edikt: Versteigerung (21.04.2026)
Gericht - Aktenzeichen: BG Weiz (682) - 12 E 16/25s
Liegenschaftsadresse: 8654 Fischbach Oberdissau 3
Kategorie: Einfamilienhaus
Objektbezeichnung: Gebäude
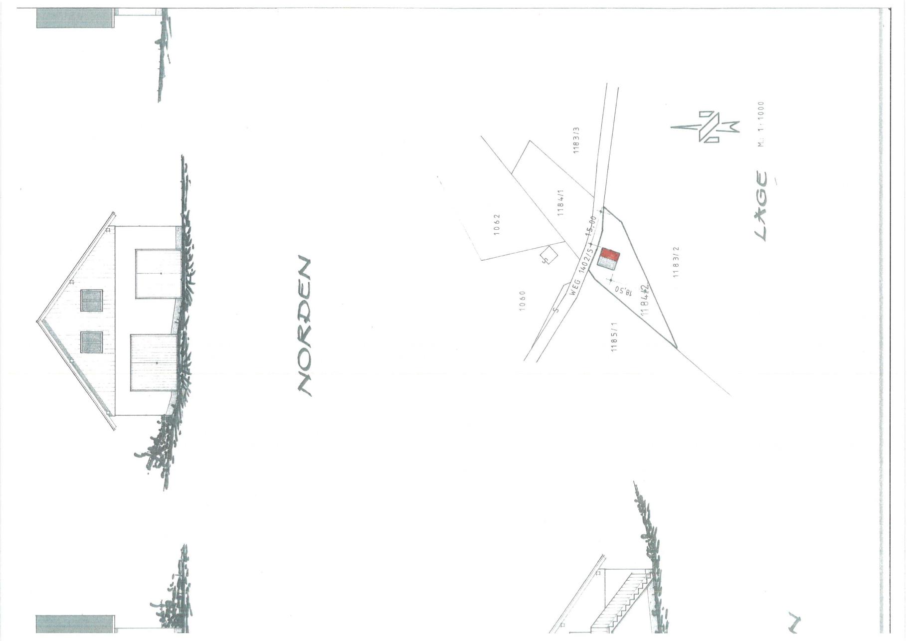
Beschreibung: 8654 Fischbach Oberdissau 3; Gst.Nr. 1184/1 und 1184/2; Gesamtfläche: 2.413 m²; Die Grundstücke sind durch eine Straße getrennt und befindet sich auf Gst.Nr. 1184/1 das Wohnhaus (teilweise Rohbau) und auf Gst.Nr. 1184/2 das Nebengebäude; Offene Forderungen der Gemeinde Fischbach iHv EUR 416,76 (Näheres siehe Langgutachten)
Grundstücksgröße: 2.413 m²
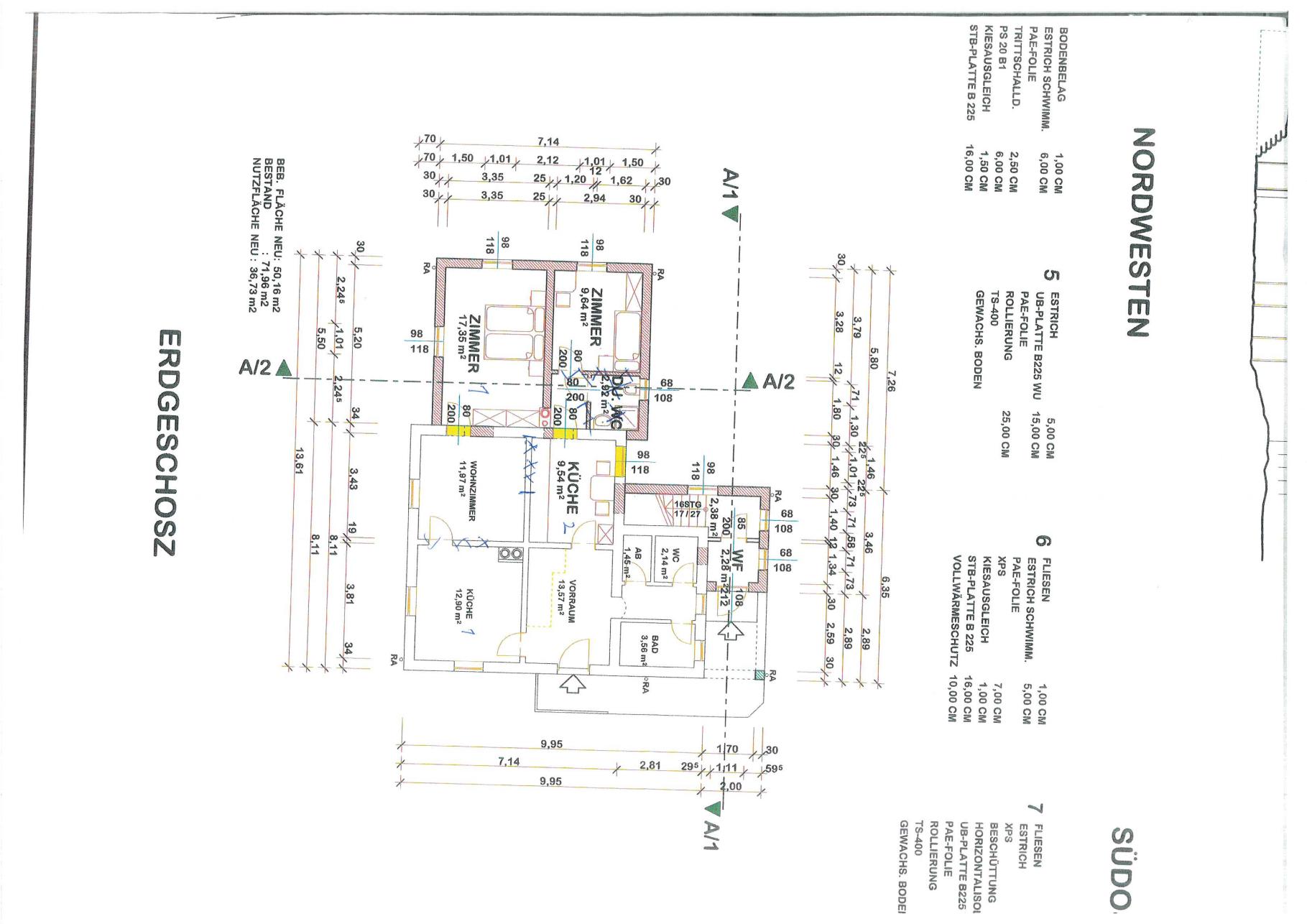
Objektgröße: 169,44 m²
Schätzwert: 171.000,00
geringstes Gebot: 171.000,00
Vadium: 17.100,00
mitzuversteigerndes Zubehör: DACHGESCHOSS: Küche: ein Küchenblock achtteilig im Unterteil mit Geschirrspüler der Type Gorenje E-Herd Samsung mit Ceranfeld Spülbecken mit Armatur darüber liegend ein Hängefach vierteilig Dunstabzug über dem E-Herd, daneben liegend Kühlschrank und Gefrierschrank
Wert des Zubehörs: 2.200,00
Langgutachten: GA_RB Oststeiermark - Kevin Pusterhofer.pdfGA_RB Oststeiermark - Kevin Pusterhofer.pdf  
Lageplan: Mappenblatt.jpgMappenblatt.jpg   Lageplan.jpgLageplan.jpg  
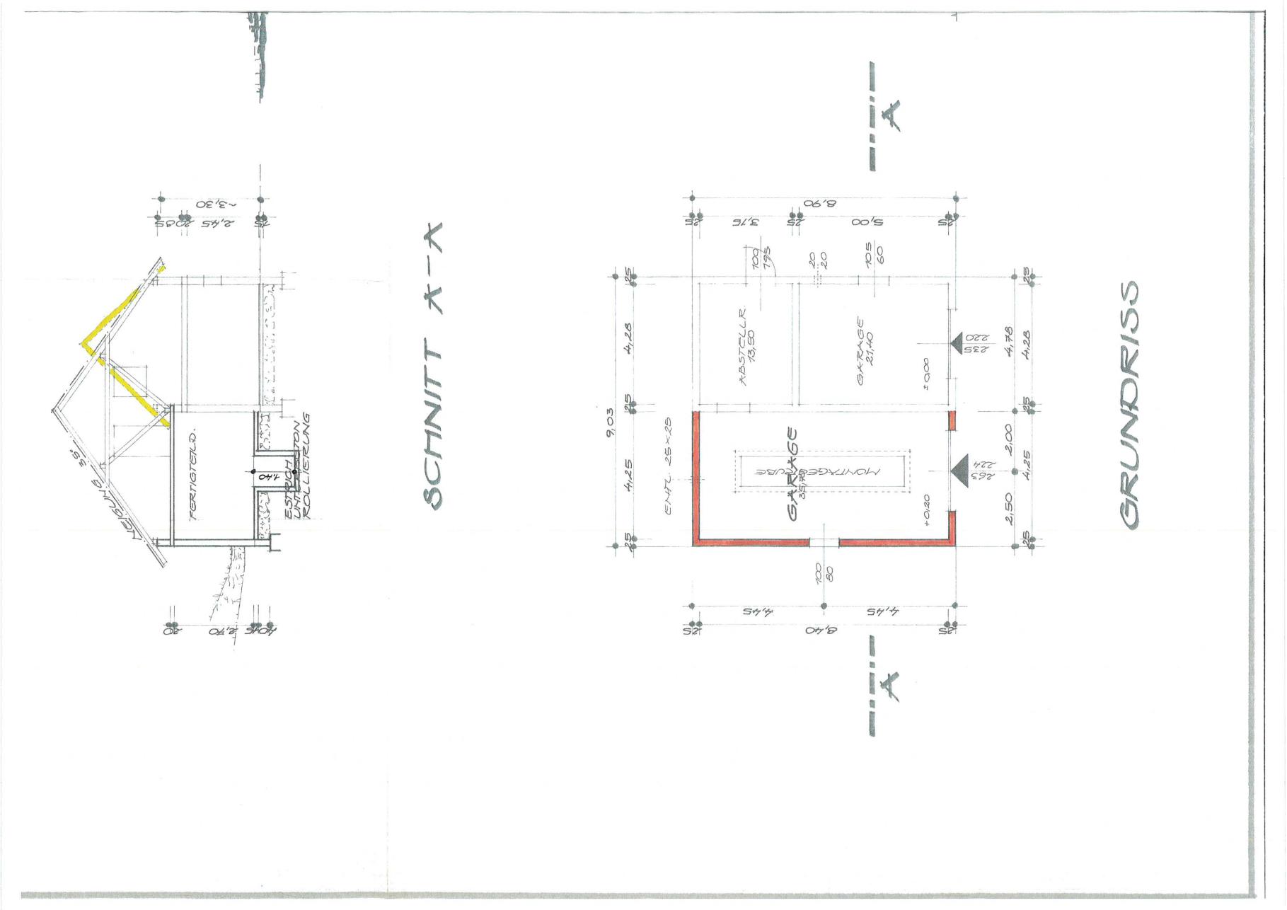
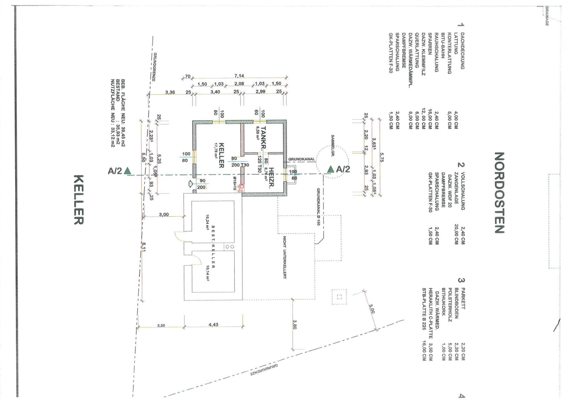
Grundriss: EP 09 1991_1.jpgEP 09 1991_1.jpg   EP 09 1991_2.jpgEP 09 1991_2.jpg   EP 09 1991_3.jpgEP 09 1991_3.jpg   EP 28021997_1.jpgEP 28021997_1.jpg   EP 28021997_2.jpgEP 28021997_2.jpg   EP 28021997_3.jpgEP 28021997_3.jpg   EP 28021997_4.jpgEP 28021997_4.jpg   EP 28021997_5.jpgEP 28021997_5.jpg   EP 28021997_6.jpgEP 28021997_6.jpg   EP 28021997_7.jpgEP 28021997_7.jpg   EP 28021997_8.jpgEP 28021997_8.jpg  
Fotos: 01 Außen.JPG01 Außen.JPG   02 Außen.JPG02 Außen.JPG   03 Außen.JPG03 Außen.JPG   04 EG Wohnzimmer_Küche.JPG04 EG Wohnzimmer_Küche.JPG   05 EG Zimmer 1.JPG05 EG Zimmer 1.JPG   06 EG Zimmer 2.JPG06 EG Zimmer 2.JPG   07 DG Küche_Essen_Wohnen.JPG07 DG Küche_Essen_Wohnen.JPG   07 DG Küche_Essen-Wohnen.JPG07 DG Küche_Essen-Wohnen.JPG   09 DG Kabinett.JPG09 DG Kabinett.JPG   10 DG Schlafzimmer.JPG10 DG Schlafzimmer.JPG   11 DG Zimmer.JPG11 DG Zimmer.JPG   12 KG Heizraum 1.JPG12 KG Heizraum 1.JPG   13 KG Tankraum.JPG13 KG Tankraum.JPG   14 KG Heizraum 2.JPG14 KG Heizraum 2.JPG   15 KG Kellerraum.JPG15 KG Kellerraum.JPG   16 Nebengebäude.JPG16 Nebengebäude.JPG   17 Nebengebäude.JPG17 Nebengebäude.JPG   18 Griller.JPG18 Griller.JPG   19 Außenanlagen.JPG19 Außenanlagen.JPG   20 Außenanlagen.JPG20 Außenanlagen.JPG  
Direktlink: https://edikte.justiz.gv.at/    (Eingebundene Vorschaubilder sind embedded content von edikte.justiz.gv.at; die Links verweisen direkt auf die entsprechende externe Seite.)


Stromkosten sparen durch Anbieterwechsel!
Großer Strompreisvergleich für Österreich.
Stromanbieter online vergleichen und
in nur 3 Minuten Vertrag abschließen.
Strompreisvergleich online: Strom
  Autoversicherung online 04/2026.
Anbieter in ganz Österreich vergleichen
und damit bis zu 700 Euro sparen.
Versicherung bequem online abschließen.
Jetzt Prämie sparen: Autoversicherung
  Geld sparen durch Gaspreisvergleich.
Gasanbieter vergleichen, wechseln und
damit mehrere hundert Euro sparen.
Kostenlos und unverbindlich - alles online.
Jetzt österreichweit Gaspreise vergleichen.

Ortsende Wien  ♦  Niederösterreich  ♦  Burgenland  ♦  Oberösterreich  ♦  Salzburg  ♦  Tirol  ♦  Vorarlberg  ♦  Steiermark  ♦  Kärnten   

| Impressum  |  Datenschutz |