Zwangsversteigerung: 1180 Wien Gersthofer Straße 10 - Wohnungseigentumsobjekt

Ortsanfang    Ortsanfang  


Wien  ♦  Niederösterreich  ♦  Burgenland  ♦  Oberösterreich  ♦  Salzburg  ♦  Tirol  ♦  Vorarlberg  ♦  Steiermark  ♦  Kärnten


Information   Details
Edikt: Verschiebung (von 18.03.2026 auf 24.06.2026)
Gericht - Aktenzeichen: BG Döbling (015) - 26 E 27/24y
Liegenschaftsadresse: 1180 Wien Gersthofer Straße 10
Kategorie: Wohnungseigentumsobjekt
Objektbezeichnung: Geschäftslokal Top 6-8
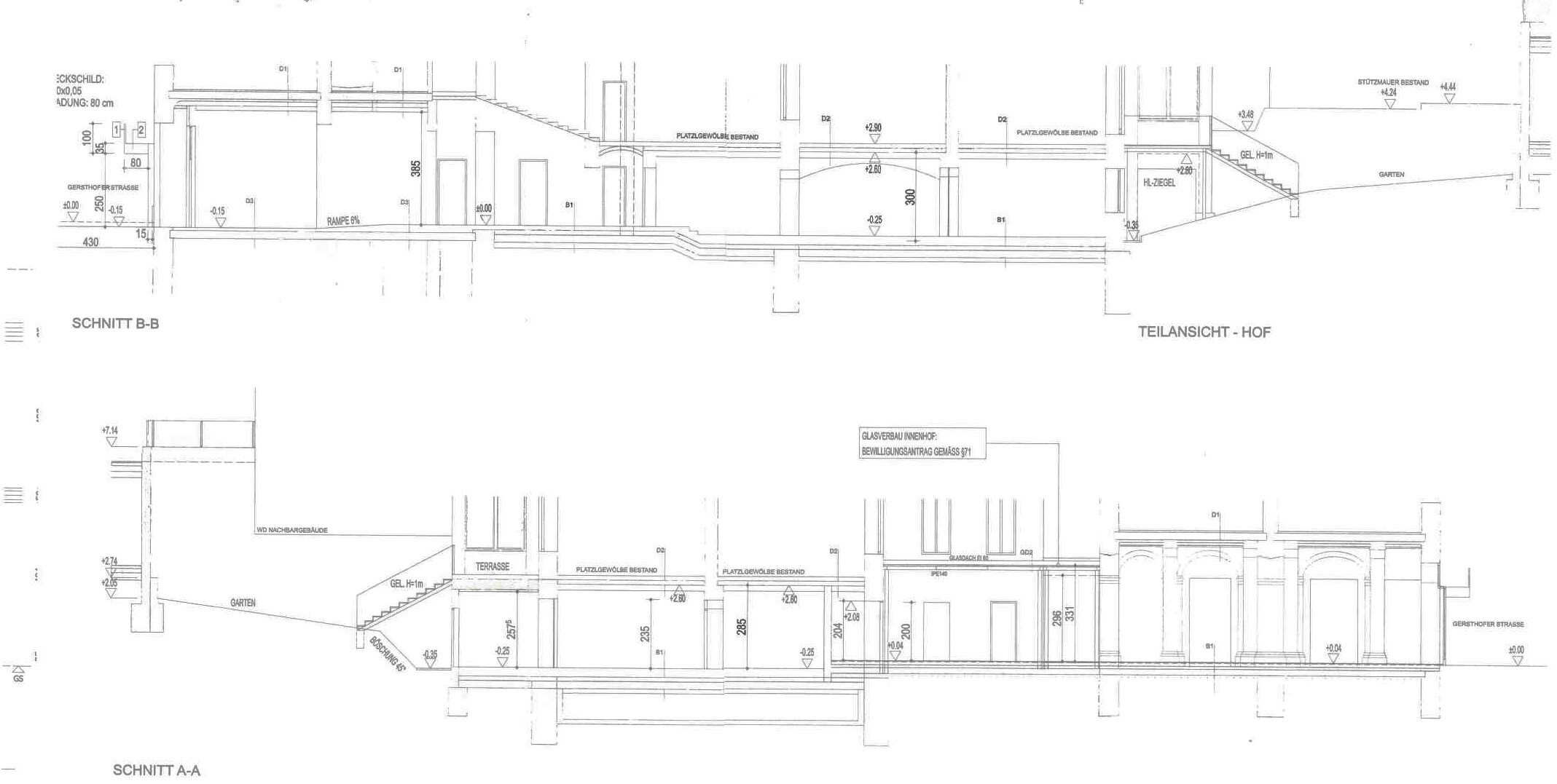
Beschreibung: Geschäftslokal (Bank) mit Zugang aus der Straße und Verbindung zum Stiegenhaus. Lage im Erdgeschoß, Wärmepumpe, Fußbodenheizung, Klimatisierung, Videoüberwachung und Alarmsysteme nach Anforderungen der Bank. Raumluftfeuchtigkeit im hinteren Bereich des Lokales vorhanden. Der Ausgang zur "Terrasse" besteht in Natur nicht (Unstimmigkeit mit Nutzwertgutachten). Aktuell ist ein Verfahren beim Gericht anhängig hinsichtlich Baumängel am Gebäude, siehe Maßnahmenprotokoll im Anhang. Detaillierte Ausführungen im Langgutachten.
Objektgröße: 305,56 m²
Schätzwert: 1.130.000,00
geringstes Gebot: 565.000,00
Vadium: 113.000,00
Langgutachten: GA 1180 Gersthofer Str 10.pdfGA 1180 Gersthofer Str 10.pdf   Beilagen zum Gutachten.pdfBeilagen zum Gutachten.pdf  
Lageplan: Karte-29.jpgKarte-29.jpg  
Grundriss: Bestandsplan Grundriss EG.jpgBestandsplan Grundriss EG.jpg   Bestandsplan Schnitte EG.jpgBestandsplan Schnitte EG.jpg  
Fotos: GA - 4.jpgGA - 4.jpg   GA - 5.jpgGA - 5.jpg   GA - 6.jpgGA - 6.jpg   GA - 7.jpgGA - 7.jpg   GA - 8.jpgGA - 8.jpg   GA - 9.jpgGA - 9.jpg   GA - 10.jpgGA - 10.jpg   DSC08544kl.jpgDSC08544kl.jpg  
Direktlink: https://edikte.justiz.gv.at/    (Eingebundene Vorschaubilder sind embedded content von edikte.justiz.gv.at; die Links verweisen direkt auf die entsprechende externe Seite.)


Kredit umschulden und Kosten sparen
mit einem Umschuldungskredit.
Egal ob Ratenkredit oder Immobilienkredit.
Kredite zu Top-Konditionen umschulden.
Hier: die neue Kreditrate berechnen!
  Das Maximum herausholen!
Die besten Sparzinsen Österreichs.
Fix (Festgeld) oder flexibel (täglich fällig).
Kostenloser Online-Zinsvergleich.
04/2026: Sparzinsen
  Top Versicherungsschutz für Ihre Immobilie.
Durch online-Preisvergleich zur besten Eigenheimversicherung.
Top aktuelle Angebote: Stand 04/2026
Online-Test: Eigenheimversicherung

Ortsende Wien  ♦  Niederösterreich  ♦  Burgenland  ♦  Oberösterreich  ♦  Salzburg  ♦  Tirol  ♦  Vorarlberg  ♦  Steiermark  ♦  Kärnten   

| Impressum  |  Datenschutz |