Zwangsversteigerung: 4523 Neuzeug Pichlern Tafernstraße 4 - Reihenhaus

Ortsanfang    Ortsanfang  


Wien  ♦  Niederösterreich  ♦  Burgenland  ♦  Oberösterreich  ♦  Salzburg  ♦  Tirol  ♦  Vorarlberg  ♦  Steiermark  ♦  Kärnten


Information   Details
Edikt: Versteigerung (27.04.2026)
Gericht - Aktenzeichen: BG Steyr (492) - 8 E 2803/25f
Liegenschaftsadresse: 4523 Neuzeug Pichlern Tafernstraße 4
Kategorie: Reihenhaus
Objektbezeichnung: Reihenhaus freistehend Rohbau
Beschreibung: Im Gemeindegebiet von Sierning wurde dieses Objekt bestehend aus einem frei stehenden Reihenhaus im Rohbau errichtet. Es besteht aus UG, EG und OG, eine Doppelgarage ist vorhanden. Baubeginn war 2021, zahlreiche Fertigstellungsarbeiten sind nötig.
Grundstücksgröße: 352 m²
Objektgröße: 136,00 m²
Schätzwert: 205.000,00
geringstes Gebot: 102.500,00
Vadium: 20.500,00
mitzuversteigerndes Zubehör: keines
Wert des Zubehörs: nicht festgestellt
Langgutachten: Gutachten zu EZ 810 KG Pichlern aus 2025-signiert.pdfGutachten zu EZ 810 KG Pichlern aus 2025-signiert.pdf  
Lageplan: Lageplan.jpgLageplan.jpg  
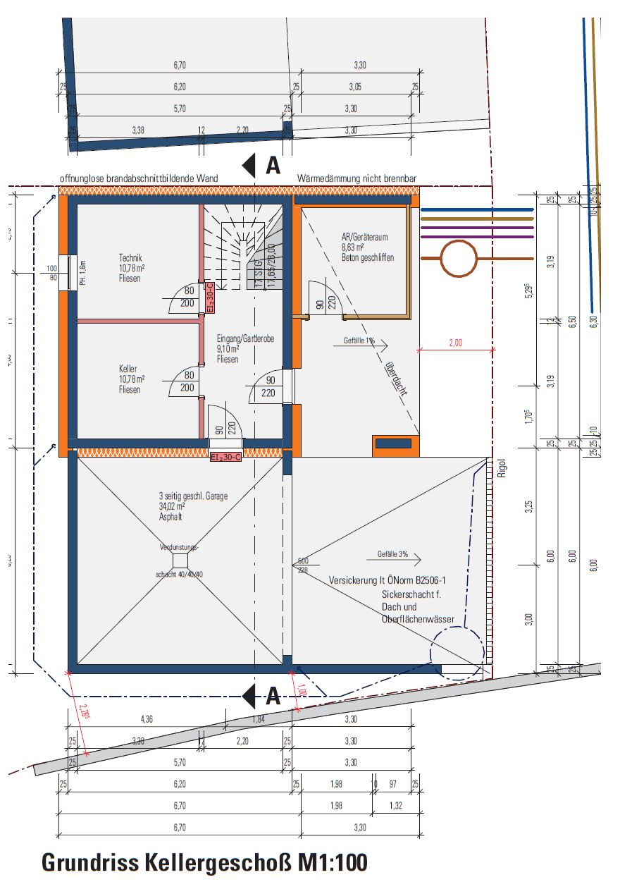
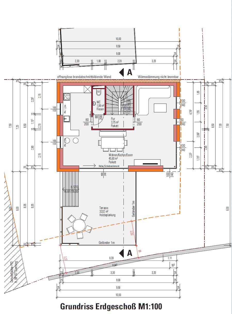
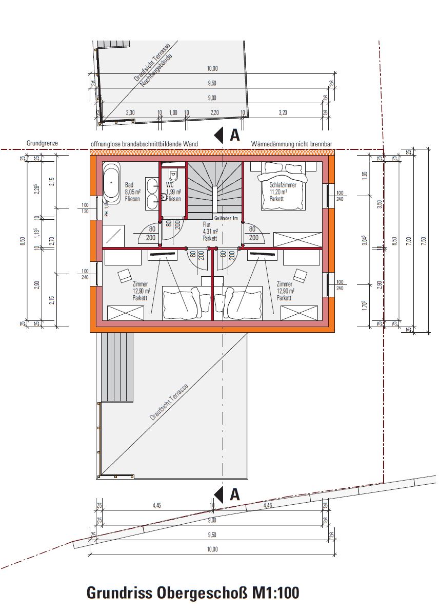
Grundriss: Keller.jpgKeller.jpg   EG.jpgEG.jpg   OG.jpgOG.jpg   Schnitt.jpgSchnitt.jpg  
Fotos: Ansicht1.jpgAnsicht1.jpg   Zufahrt.jpgZufahrt.jpg   Ansicht 2.jpgAnsicht 2.jpg   UG Eingang.jpgUG Eingang.jpg   Ug Eingang2.jpgUg Eingang2.jpg   VR UG Richtung Garage.jpgVR UG Richtung Garage.jpg   Rohinstallationen begonnen.jpgRohinstallationen begonnen.jpg   Betonstiege roh.jpgBetonstiege roh.jpg   Eg Wohnen.jpgEg Wohnen.jpg   WC EG.jpgWC EG.jpg   Zimmer OG.jpgZimmer OG.jpg   Terrasse.jpgTerrasse.jpg   Aussen3.jpgAussen3.jpg   Aussen 4.jpgAussen 4.jpg   Flachdach.jpgFlachdach.jpg   Hanggrundstück.jpgHanggrundstück.jpg  
Direktlink: https://edikte.justiz.gv.at/    (Eingebundene Vorschaubilder sind embedded content von edikte.justiz.gv.at; die Links verweisen direkt auf die entsprechende externe Seite.)


Top Versicherungsschutz für Ihre Immobilie.
Durch online-Preisvergleich zur besten Eigenheimversicherung.
Top aktuelle Angebote: Stand 04/2026
Online-Test: Eigenheimversicherung
  Stromkosten sparen durch Anbieterwechsel!
Großer Strompreisvergleich für Österreich.
Stromanbieter online vergleichen und
in nur 3 Minuten Vertrag abschließen.
Strompreisvergleich online: Strom
  Die Finanzierung für Ihren Hausbau:
Baufinanzierung & Baukredit-Rechner.
Maßgeschneidert und Top-Konditionen.
Schnelle & unbürokratische Abwicklung.
Monatsrate und Zinsen: Online-Rechner

Ortsende Wien  ♦  Niederösterreich  ♦  Burgenland  ♦  Oberösterreich  ♦  Salzburg  ♦  Tirol  ♦  Vorarlberg  ♦  Steiermark  ♦  Kärnten   

| Impressum  |  Datenschutz |