Zwangsversteigerung: 5661 Rauris Poserweg 5 - Eigentumswohnung

Ortsanfang    Ortsanfang  


Wien  ♦  Niederösterreich  ♦  Burgenland  ♦  Oberösterreich  ♦  Salzburg  ♦  Tirol  ♦  Vorarlberg  ♦  Steiermark  ♦  Kärnten


Information   Details
Edikt: Versteigerung (05.05.2026)
Gericht - Aktenzeichen: BG Zell am See (573) - 75 E 37/24w
Liegenschaftsadresse: 5661 Rauris Poserweg 5
Kategorie: Eigentumswohnung
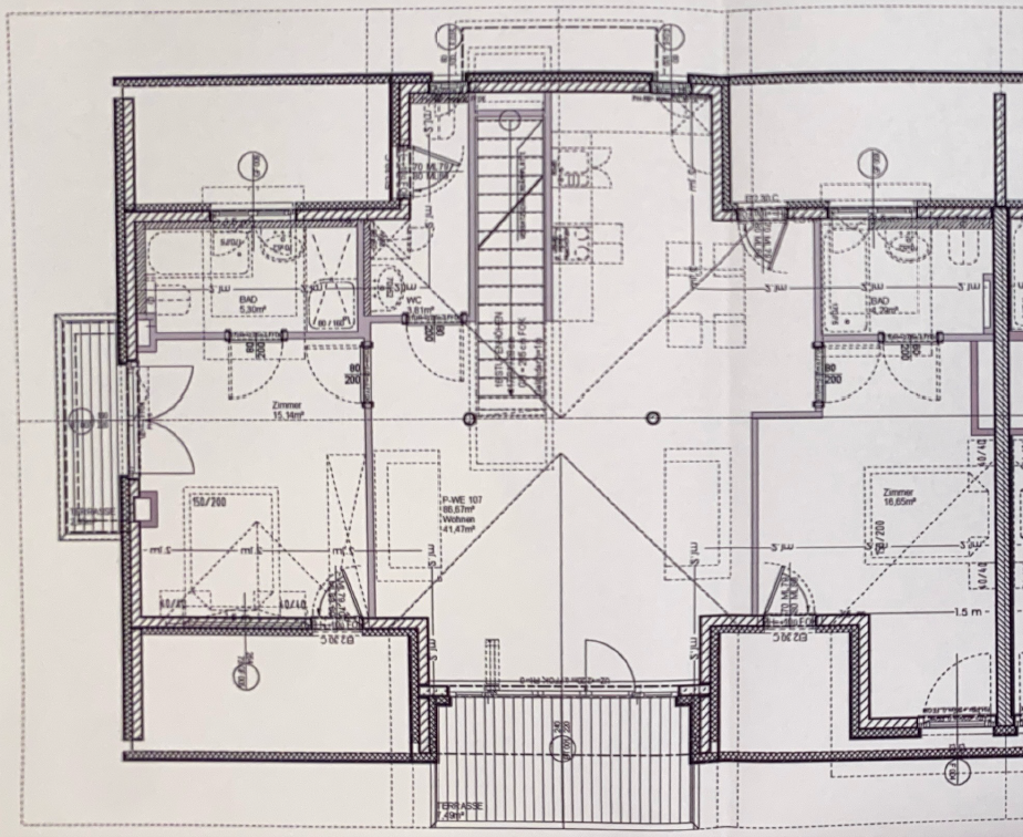
Objektbezeichnung: Wohnung Top 7 - Haus Manuela
Beschreibung: Die bewertungsgegenständliche Wohneinheit Top 7 befindet sich im Haus Manuela der gegenständlichen Betriebsanlage. Die Wohnung hat insgesamt 86,66 m², befindet sich im Dachgeschoss und besteht aus: -Wohnbereich/Küche -Schlafzimmer 1 -Badezimmer 1 -WC -Schlafzimmer 2 -Badezimmer 2 Insgesamt sind 2 Balkone im Ausmaß von 2,95m² bzw. 7,49m² vorhanden.
Grundstücksgröße: 10.197 m²
Objektgröße: 86,66 m²
Schätzwert: 250.000,00
geringstes Gebot: 125.000,00
Vadium: 25.000,00
mitzuversteigerndes Zubehör: Die Wohnung ist komplett möbliert (inkl. Küche), der Wert ist im Verkehrswert inkludiert.
Wert des Zubehörs: nicht festgestellt
Langgutachten: GA8_2025 - 75 E 37-24w - 19.pdfGA8_2025 - 75 E 37-24w - 19.pdf  
Lageplan: LAGEPLAN SAGIS.jpgLAGEPLAN SAGIS.jpg   Lageplan Haus Manuela.jpgLageplan Haus Manuela.jpg  
Grundriss: GRUNDRISS.pngGRUNDRISS.png  
Fotos: DSC_0015 (Benutzerdefiniert).JPGDSC_0015 (Benutzerdefiniert).JPG   DSC_0013 (Benutzerdefiniert).JPGDSC_0013 (Benutzerdefiniert).JPG   DSC_0027 (Benutzerdefiniert).JPGDSC_0027 (Benutzerdefiniert).JPG   DSC_0052 (Benutzerdefiniert).JPGDSC_0052 (Benutzerdefiniert).JPG   DSC_0078 (Benutzerdefiniert).JPGDSC_0078 (Benutzerdefiniert).JPG   DSC_0006 (Benutzerdefiniert).JPGDSC_0006 (Benutzerdefiniert).JPG  
Direktlink: https://edikte.justiz.gv.at/    (Eingebundene Vorschaubilder sind embedded content von edikte.justiz.gv.at; die Links verweisen direkt auf die entsprechende externe Seite.)


Kredit umschulden und Kosten sparen
mit einem Umschuldungskredit.
Egal ob Ratenkredit oder Immobilienkredit.
Kredite zu Top-Konditionen umschulden.
Hier: die neue Kreditrate berechnen!
  Top Versicherungsschutz für Ihre Immobilie.
Durch online-Preisvergleich zur besten Eigenheimversicherung.
Top aktuelle Angebote: Stand 04/2026
Online-Test: Eigenheimversicherung
  Ideal für Beträge von 1.000 € bis 75.000 €
Der Ratenkredit aus dem Internet.
Einfach Zuhause die Anbieter vergleichen.
Abschluss online - schnell am Konto!
Hier: Kreditrate und Zinssatz berechnen!

Ortsende Wien  ♦  Niederösterreich  ♦  Burgenland  ♦  Oberösterreich  ♦  Salzburg  ♦  Tirol  ♦  Vorarlberg  ♦  Steiermark  ♦  Kärnten   

| Impressum  |  Datenschutz |