Zwangsversteigerung: 2500 Baden Braunstraße 6 - Einfamilienhaus

Ortsanfang    Ortsanfang  


Wien  ♦  Niederösterreich  ♦  Burgenland  ♦  Oberösterreich  ♦  Salzburg  ♦  Tirol  ♦  Vorarlberg  ♦  Steiermark  ♦  Kärnten


Information   Details
Edikt: Versteigerung (22.12.2025)
Gericht - Aktenzeichen: BG Baden (040) - 5 E 1/23t
Liegenschaftsadresse: 2500 Baden Braunstraße 6
Kategorie: Einfamilienhaus
Objektbezeichnung: Einfamilienhaus & Doppelgarage
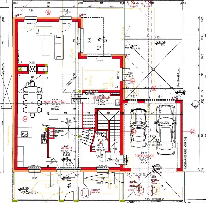
Beschreibung: Auf der Liegenschaft befindet sich ein Einfamilienhaus aus dem Jahr 2010, errichtet in Massivbauweise. Das Gebäude besteht aus einem Keller-, einem Erd- und einem Obergeschoß. Der Einreichplan und die Baubewilligung aus dem Jahr 2010 liegen vor. Angrenzend an das Wohngebäude wurde zeitgleich eine Doppelgarage errichtet. Abweichend zur vorliegenden Einreichplanung wurde das Dachgeschoß konsenslos ausgebaut (Rohbauzustand). Aufgrund der fehlenden rechtlichen Grundlage dieser Baumaßnahme ist von einer Rückbauverpflichtung auszugehen. Das Kellergeschoß wurde nicht endfertiggestellt, es fehlen die Türzargen, die Türen sowie Bodenbeläge. Des Weiteren wurde eine Adaptierung im Grundriss vorgenommen. Die Nutzflächen des Gebäudes gliedern sich wie folgt; das Kellergeschoß verfügt über 98,03 m², das Erd-geschoß über 127,68 m² und die Garage über 33,70 m². Das Obergeschoß verfügt über eine Nutzfläche von 111,85 m² (gemäß Einreichplan 01.04.2010).
Grundstücksgröße: 505 m²
Objektgröße: 337,56 m²
Schätzwert: 947.380,00
geringstes Gebot: 473.690,00
Vadium: 94.738,00
mitzuversteigerndes Zubehör: Küche EG & Sanitäranlagen 1. OG
Wert des Zubehörs: 18.000,00
Langgutachten: 1248_Braunstrasse_6_Baden_Wallner_Scharf_signiert.pdf1248_Braunstrasse_6_Baden_Wallner_Scharf_signiert.pdf   Ergänzungsgutachten_WALLNER_SCHARF_14072024.pdfErgänzungsgutachten_WALLNER_SCHARF_14072024.pdf   Subgutachten_BAUSV_WALLNER.pdfSubgutachten_BAUSV_WALLNER.pdf  
Lageplan: Lageplan.jpgLageplan.jpg  
Grundriss: Grundriss_KG.jpgGrundriss_KG.jpg   Grundriss_EG.jpgGrundriss_EG.jpg   Grundriss_OG.jpgGrundriss_OG.jpg  
Fotos: Frontansicht.jpgFrontansicht.jpg   Gartenansicht.jpgGartenansicht.jpg   Doppelgarage.jpgDoppelgarage.jpg   image012.jpgimage012.jpg   Küche.jpgKüche.jpg   Wohn-  Esszimmer.jpgWohn-  Esszimmer.jpg   image044.jpgimage044.jpg   image041.jpgimage041.jpg   image046.jpgimage046.jpg   image048.jpgimage048.jpg   image053.jpgimage053.jpg   image051.jpgimage051.jpg   image065.jpgimage065.jpg   image063.jpgimage063.jpg   image066.jpgimage066.jpg   image077.jpgimage077.jpg   image022.jpgimage022.jpg   image020.jpgimage020.jpg  
Direktlink: https://edikte.justiz.gv.at/    (Eingebundene Vorschaubilder sind embedded content von edikte.justiz.gv.at; die Links verweisen direkt auf die entsprechende externe Seite.)


Autoversicherung online 12/2025.
Anbieter in ganz Österreich vergleichen
und damit bis zu 700 Euro sparen.
Versicherung bequem online abschließen.
Jetzt Prämie sparen: Autoversicherung
  Die Finanzierung für Ihren Hausbau:
Baufinanzierung & Baukredit-Rechner.
Maßgeschneidert und Top-Konditionen.
Schnelle & unbürokratische Abwicklung.
Monatsrate und Zinsen: Online-Rechner
  Das Maximum herausholen!
Die besten Sparzinsen Österreichs.
Fix (Festgeld) oder flexibel (täglich fällig).
Kostenloser Online-Zinsvergleich.
12/2025: Sparzinsen

Ortsende Wien  ♦  Niederösterreich  ♦  Burgenland  ♦  Oberösterreich  ♦  Salzburg  ♦  Tirol  ♦  Vorarlberg  ♦  Steiermark  ♦  Kärnten   

| Impressum  |  Datenschutz |