Zwangsversteigerung: 6094 Axams Wiesenweg 17 - Mehrfamilienhaus

Ortsanfang    Ortsanfang  


Wien  ♦  Niederösterreich  ♦  Burgenland  ♦  Oberösterreich  ♦  Salzburg  ♦  Tirol  ♦  Vorarlberg  ♦  Steiermark  ♦  Kärnten


Information   Details
Edikt: Zuschlag mit Überbot
Gericht - Aktenzeichen: BG Innsbruck (811) - 20 E 11/23s
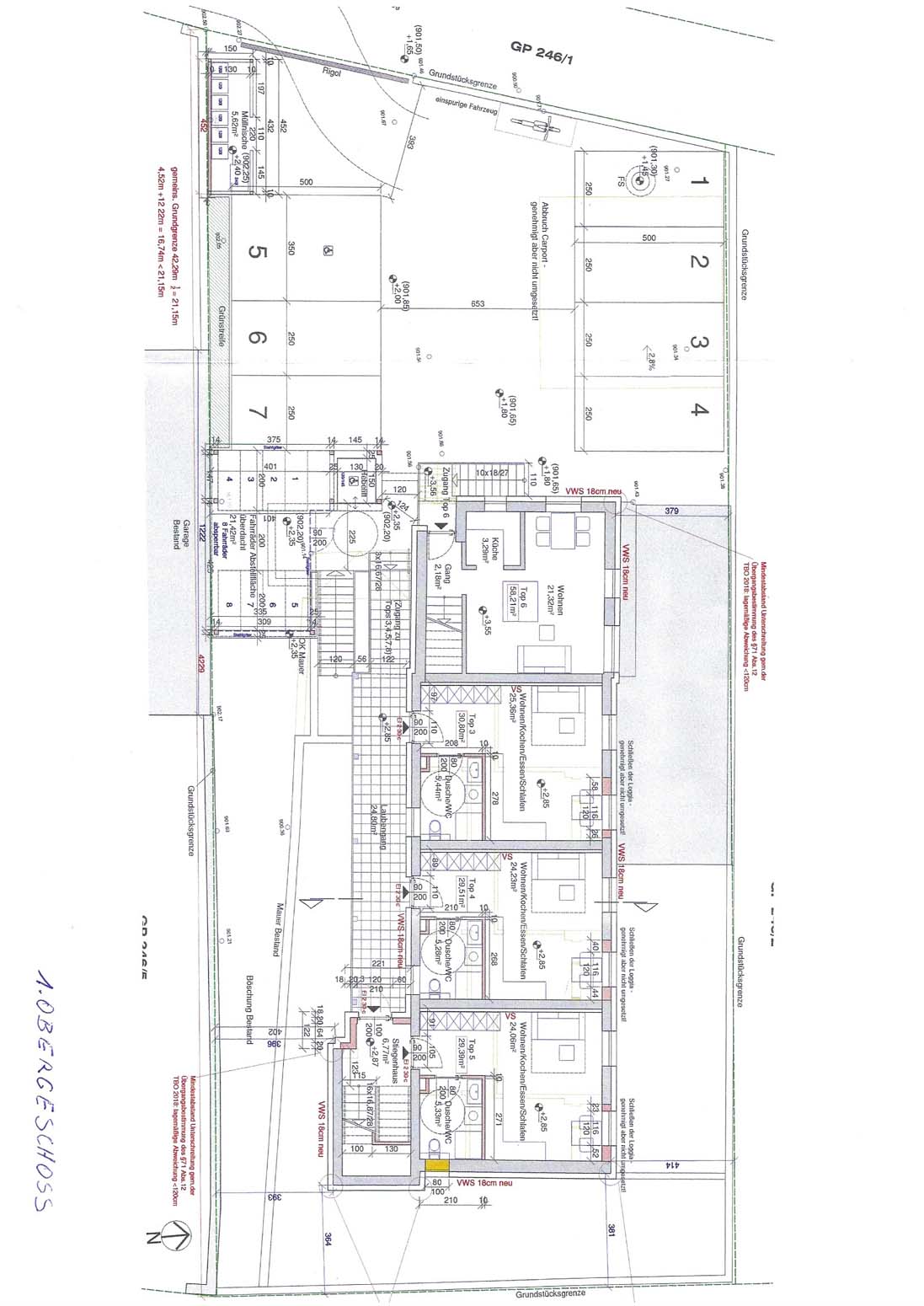
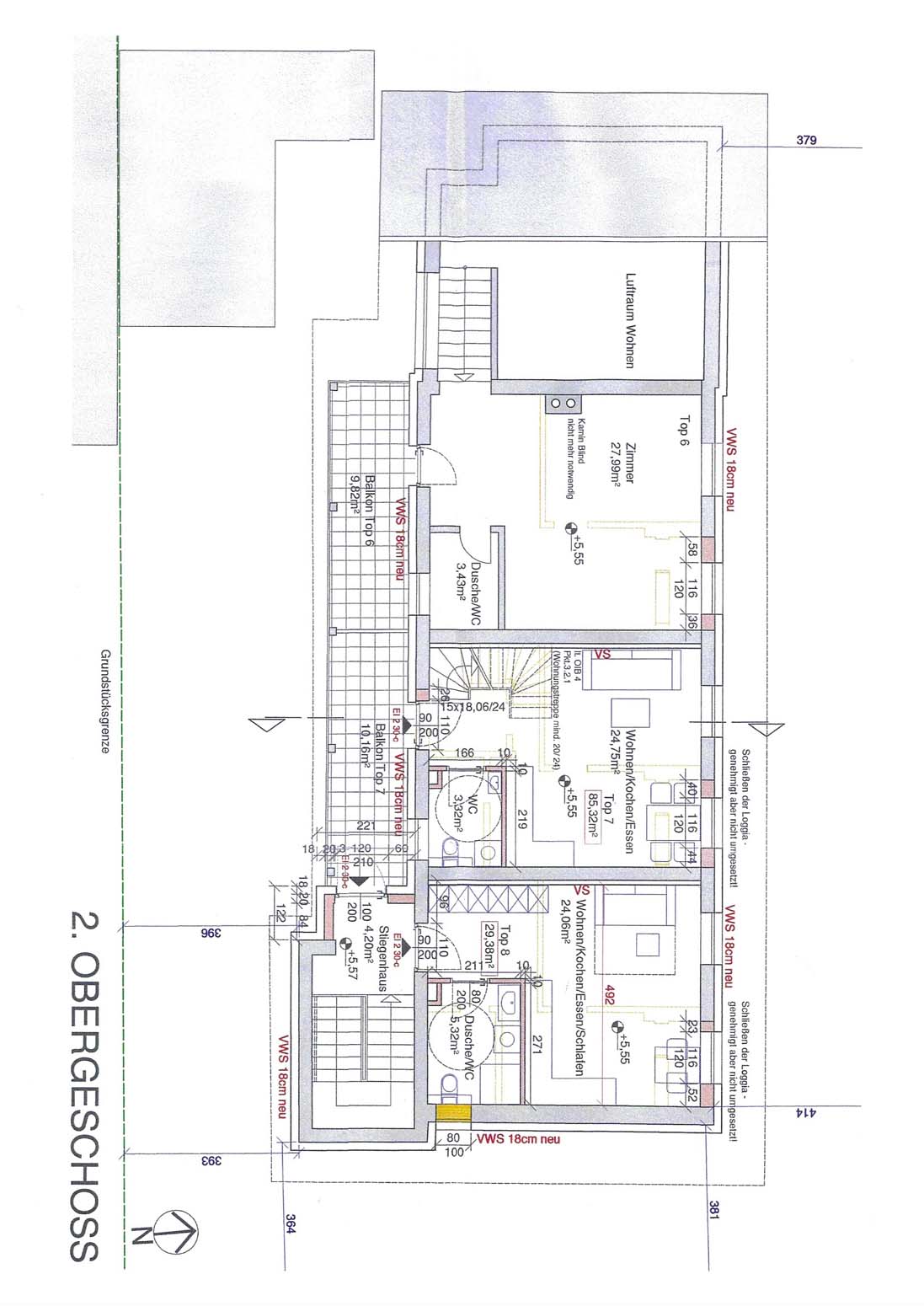
Liegenschaftsadresse: 6094 Axams Wiesenweg 17
Kategorie: Mehrfamilienhaus
Objektbezeichnung: Mehrparteienwohnhaus
Meistbot: 423.700,00
Überbot Frist: 14 Tage
Überbot Minimum: 529.625,00
Langgutachten: GA Mehrparteienwohnhaus Axams, Veala Real Estate GmbH_signiert.pdf   Anlagen Veala Real Estate GmbH.pdf  
Lageplan: Lageplan.jpgLageplan.jpg   Orthofoto.jpgOrthofoto.jpg  
Grundriss: GrundrissEG.jpgGrundrissEG.jpg   Grundriss1OG.jpgGrundriss1OG.jpg   Grundriss2OG.jpgGrundriss2OG.jpg   GrundrissDG.jpgGrundrissDG.jpg  
Direktlink: https://edikte.justiz.gv.at/    (Eingebundene Vorschaubilder sind embedded content von edikte.justiz.gv.at; die Links verweisen direkt auf die entsprechende externe Seite.)


Ideal für Beträge von 1.000 € bis 75.000 €
Der Ratenkredit aus dem Internet.
Einfach Zuhause die Anbieter vergleichen.
Abschluss online - schnell am Konto!
Hier: Kreditrate und Zinssatz berechnen!
  Die Finanzierung für Ihren Hausbau:
Baufinanzierung & Baukredit-Rechner.
Maßgeschneidert und Top-Konditionen.
Schnelle & unbürokratische Abwicklung.
Monatsrate und Zinsen: Online-Rechner
  Stromkosten sparen durch Anbieterwechsel!
Großer Strompreisvergleich für Österreich.
Stromanbieter online vergleichen und
in nur 3 Minuten Vertrag abschließen.
Strompreisvergleich online: Strom

Ortsende Wien  ♦  Niederösterreich  ♦  Burgenland  ♦  Oberösterreich  ♦  Salzburg  ♦  Tirol  ♦  Vorarlberg  ♦  Steiermark  ♦  Kärnten   

| Impressum  |  Datenschutz |