Zwangsversteigerung: 3873 Brand Finsternau 51 - gemischt genutztes Haus

Ortsanfang    Ortsanfang  


Wien  ♦  Niederösterreich  ♦  Burgenland  ♦  Oberösterreich  ♦  Salzburg  ♦  Tirol  ♦  Vorarlberg  ♦  Steiermark  ♦  Kärnten


Information   Details
Edikt: Versteigerung (06.10.2025)
Gericht - Aktenzeichen: BG Gmünd in Niederösterreich (070) - 1 E 422/25s
Liegenschaftsadresse: 3873 Brand Finsternau 51
Kategorie: gemischt genutztes Haus
Objektbezeichnung: Wohn-und Wirtschaftsgebäude
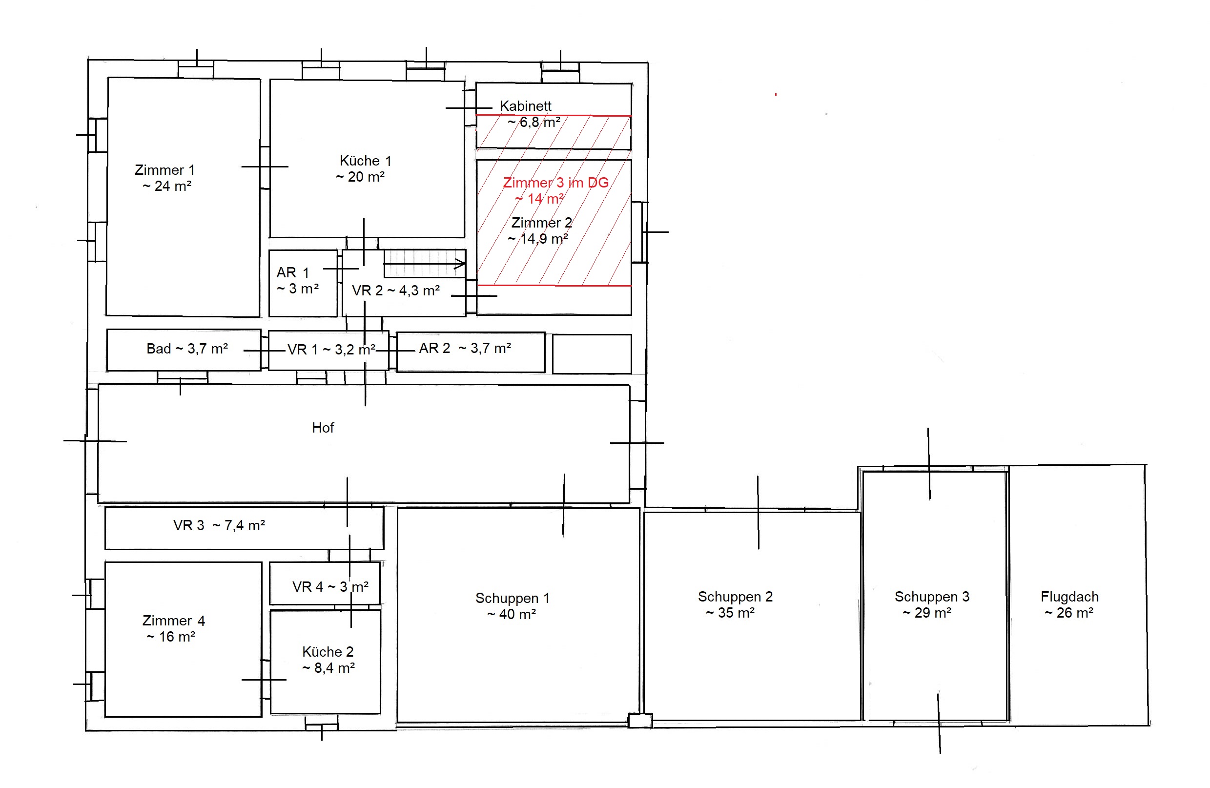
Beschreibung: Die zur Marktgemeinde Brand-Nagelberg gehörige Katastralgemeinde Finsternau, in der sich die bewertungsgegenständliche Liegenschaft befindet, liegt im nördlichen Waldviertel im politischen Bezirk Gmünd in Niederösterreich. Die bewertungsgegenständliche Liegenschaft EZ 207 liegt ca. 15 km nördlich der Bezirkshauptstadt Gmünd. Die Liegenschaft liegt unmittelbar westlich angrenzend an die Landesstraße L 62, von der auch die Erschließung der Liegenschaft erfolgt. Die unmittelbar angrenzenden bzw. in der näheren Umgebung liegenden Grundstücke sind jeweils als Grünland (Glf) gewidmet und teilweise mit Wohnhäusern und landwirtschaftlichen Betriebsgebäuden bebaut. Die in der Liegenschaft inneliegenden Grundstücke 291/1, 291/2 und 292/1 bilden eine zusammenhängende Grundstücksfläche mit einer unregelmäßigen Grundrissform mit einem grundbücherlichen Gesamtflächenausmaß von 4.091 m². Diese Grundstücksfläche ist weitgehend eben und niveaugleich mit den angrenzenden Grundstücken. Auf dem Grundstück 291/2 besteht zum Bewertungsstichtag ein Wohn- und Wirtschaftsgebäude. Das Gebäude ist in offener Bauweise errichtet. Das in Massivbauweise errichtete Wohngebäude besteht aus Erdgeschoß und teilausgebautem Dachgeschoß und ist nicht unterkellert, das in Holzbauweise errichtete Wirtschaftsgebäude besteht aus drei Schuppen mit angebautem Flugdach. Im westlichen Teil des Wohngebäudes sind im Erdgeschoß Wohnräume mit einer Nutzfläche von gesamt ca. 77 m² und im teilausgebautem Dachgeschoß ein Zimmer mit ca. 14 m² Nutzfläche eingebaut. Im östlichen Teil des Gebäudes befinden sich im Erdgeschoß 2 Wohnräume mit einer Gesamtnutzfläche von ca. 24 m². Im Erdgeschoß des Wohnteiles befinden sich weiters Nebenräume mit einer Gesamtnutzfläche von ca. 14 m². Das Wirtschaftsgebäude ist unmittelbar nördlich an den östlichen Wohnteil angebaut und beinhaltet 3 Schuppen und einen überdachten Abstellplatz mit einer Gesamtnutzfläche von ca. 130 m². Über das bestehende Wohn- und Wirtschaftsgebäude liegen im Bauakt bei der Marktgemeinde Brand-Nagelberg keine Unterlagen (Pläne, Baubewilligungen, Benützungsbewilligungen, Baufertigstellungsmeldungen, o.ä.) auf. Aufgrund der Bauweise und der verwendeten Baumaterialien ist davon auszugehen, dass der Altbestand seit zumindest 100 Jahren besteht. Bauweise (soweit augenscheinlich erkennbar): Fundamente: Steinfundamente; aufgehendes Mauerwerk (Wohnteil): Stein- bzw. Mischmauerwerk; Zwischenwände: Ziegelmauerwerk; Wände Wirtschaftsgebäude: Holzständerkonstruktion mit einfacher Bretterschalung; Decke über EG (Wohnteil): Dübelbaumdecken; Treppe EG/DG (Wohnteil): Holzwangentreppe mit Setz- und Trittstufen; Fassaden (Wohnteil): Eternitplatten, Mineralputz; Dach (Wohnhaus): Satteldach; Holzsparren, Einfachlattung; Dacheindeckung: Strangfalzziegel; Dach (Wirtschaftsgebäude): Satteldach; Holzsparren, Einfachlattung; Eindeckung: Strangfalzziegel; Pultdach: Eindeckung Welleternitplatten; Regenrinnen: Eisenblech verzinkt; Fenster: Holzkastenfenster mit Einfachverglasung; Tor (Wirtschaftsgebäude): Massivholzschiebe- und Flügeltore; Eingangstüren (Wohnteile): Massivholztüren mit Einfachverglasung; Innentüren: Umfassungszargen und Türblätter furniert;Heizung: Warmwasser-Zentralheizungsanlage; Wärmeerzeugungssystem: Küchenherd wasserführend, für feste Brennstoffe; Wärmeabgabesystem: Radiatoren. Das Wohn- und Wirtschaftsgebäude befindet sich zum Zeitpunkt der Befundaufnahme in einem desolaten und bereits baufälligen Bau- und Erhaltungszustand. Es wurden seit längerer Zeit keine laufenden Instandhaltungs- und Reparaturmaßnahmen getätigt. Da maßgebliche Bauteile (Fundamente, Mauerwerk, Dübelbaumdecken, Dach, Fenster, Installationen) ihre technische Nutzungsdauer bereits überschritten haben und die voraussichtlichen Sanierungskosten unter Berücksichtigung der Erschwernisse im Altbau nur mehr geringfügig von den Herstellungskosten eines Neubaus abweichen, hat das Gebäude in technischer als auch in wirtschaftlicher Hinsicht die Abbruchreife erreicht. Bezüglich Abbruch und Wiedererrichtung wird ausdrücklich auf die Bestimmungen des § 20 NÖ Raumordnungsgesetz für erhaltenswerte Gebäude im Grünland hingewiesen. Außenanlagen: Innenhof:ungepflegte, verwachsene Grünfläche; Hausbrunnen (Betonschachtbrunnen auf Gst 291/1 vor dem Haus); nicht bebaute Grundstücksflächen Gst 291/1 und 292/1: Grünfläche (Wiesen) mit 1 Biotop und eingezäuntem Hausgarten (beides stark verwachsen).
Grundstücksgröße: 4.091 m²
Objektgröße: 262,00 m²
Schätzwert: 15.000,00
geringstes Gebot: 7.500,00
Vadium: 1.500,00
Langgutachten: GA_BGGmünd_Immacon_Projektentw_GmbH_Finsternau_51_signiert.pdf  
Lageplan: MX-2640N_20250809_155106_001.jpgMX-2640N_20250809_155106_001.jpg  
Grundriss: Grundrissskizze.jpgGrundrissskizze.jpg  
Fotos: DSC02140.JPGDSC02140.JPG   DSC02155.JPGDSC02155.JPG   DSC02117.JPGDSC02117.JPG   DSC02105.JPGDSC02105.JPG   DSC02128.JPGDSC02128.JPG   DSC02130.JPGDSC02130.JPG   DSC02134.JPGDSC02134.JPG   DSC02149.JPGDSC02149.JPG   DSC02142.JPGDSC02142.JPG   DSC02122.JPGDSC02122.JPG  
Direktlink: https://edikte.justiz.gv.at/    (Eingebundene Vorschaubilder sind embedded content von edikte.justiz.gv.at; die Links verweisen direkt auf die entsprechende externe Seite.)


Supergünstig zum Eigenheim!
Über 60 Anbieter im kostenlosen
Online‑Kreditvergleich (Stand 10/2025)
Die besten Angebote - fix und variabel.
Top-Konditionen - schnell am Konto!
  Stromkosten sparen durch Anbieterwechsel!
Großer Strompreisvergleich für Österreich.
Stromanbieter online vergleichen und
in nur 3 Minuten Vertrag abschließen.
Strompreisvergleich online: Strom
  Ihr Wohnkredit zu Top-Konditionen.
Kompetente, kostenlose Expertenberatung.
Für Hausbau oder Wohnungskauf.
Österreichweiter Marktvergleich.
Rasch und einfach: Wohnkredit-Rechner

Ortsende Wien  ♦  Niederösterreich  ♦  Burgenland  ♦  Oberösterreich  ♦  Salzburg  ♦  Tirol  ♦  Vorarlberg  ♦  Steiermark  ♦  Kärnten   

| Impressum  |  Datenschutz |