Zwangsversteigerung: 1090 Wien Glasergasse 7 - Wohnungseigentumsobjekt

Ortsanfang    Ortsanfang  


Wien  ♦  Niederösterreich  ♦  Burgenland  ♦  Oberösterreich  ♦  Salzburg  ♦  Tirol  ♦  Vorarlberg  ♦  Steiermark  ♦  Kärnten


Information   Details
Edikt: Versteigerung (11.06.2026)
Gericht - Aktenzeichen: BG Josefstadt (028) - 22 E 50/24i
Liegenschaftsadresse: 1090 Wien Glasergasse 7
Kategorie: Wohnungseigentumsobjekt
Objektbezeichnung: Wohnung Top 23
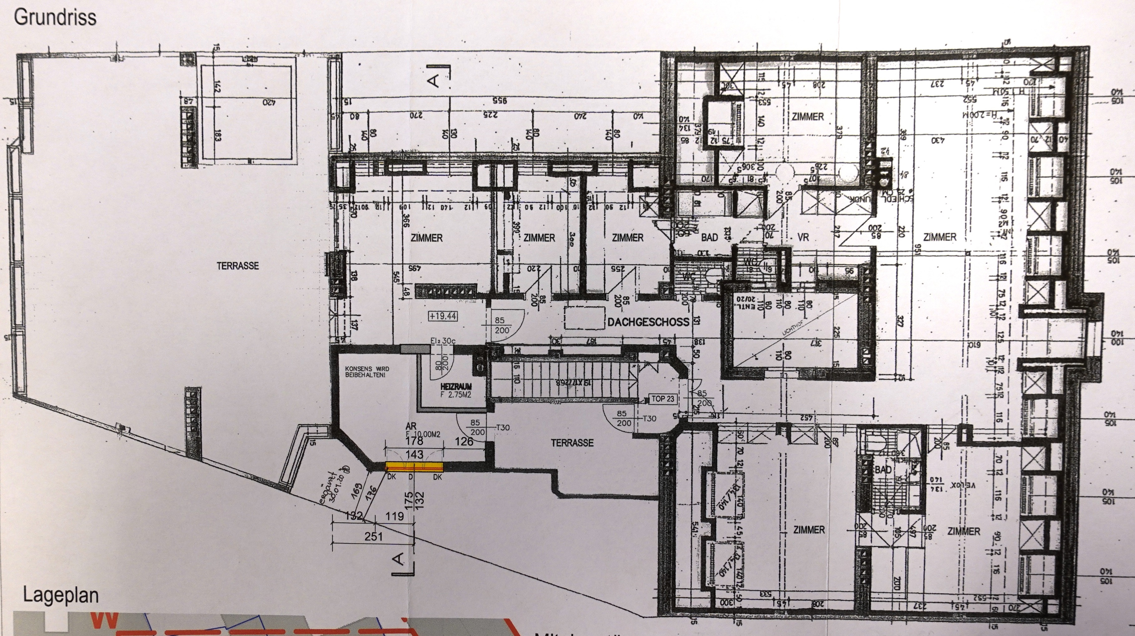
Beschreibung: Anteil 185/1631, BLNr. 33, Wohnungseigentum an W 23 mit Terrasse im DG; Benutzungsvereinbarung für Kellerabteil Nr. 6; DG-Ausbau 1978; in Mehrparteienhaus aus Bj 1897 in 1090 Wien, Glasergasse 7; sehr guter Gesamtzustand des Hauses; Souterrain, Hochparterre, vier Obergeschossen und ausgebautes Dachgeschoss; Lift bis 4. OG; Wohnung befindet sich im Dachgeschoss, DG-Ausbau im Jahr 1978 --- --- zentrale Lage mit sehr guter Anbindung an den öffentlichen Verkehr; eingeschränkte Parksituation, ruhige Umgebung ohne Verkehrslärm; --- --- Reparaturrücklage ca. EUR 25.000,-- (Information der Trestler Immobilien GmbH, Stand 30.01.2025) --- --- Wohnung ist vom allg. Stiegenhaus erreichbar, Lift fährt nur bis in das 4. OG --- --- Wohnung besteht aus Vorraum, Wohnraum, zwei Bäder mit WC, Wohnküche, Wirtschaftsraum, Heizraum, WC, fünf Zimmer und drei Terrassen; doppelflügige Holzeingangstüre, Nutzfläche lt Nutzwertgutachten 199,59 m²; Terrassen laut Einreichplan: 108 m² und 12 m², weitere kleine Terrasse über Außenstiege auf großer Terrasse – siehe Fotos im Gutachten des Sachverständigen --- --- mehrere Stufen und Niveauunterschiede innerhalb der Wohnung; --- --- Monatsvorschreibung gesamt EUR 799,34 (Information der Hausverwaltung, Stand 01/2025) --- --- geringfügige Mauerrisse, im Wohnraum Wasserflecken im Bereich der Fenster; Heizung und Warmwasseraufbereitung erfolgen mit Gas, Klimaanlage vorhanden; guter Gesamtzustand der Wohnung, --- --- Wohnung ist nicht vermietet, wird derzeit von der geschiedenen Ehefrau des Verpflichteten benützt; --- --- Es wird explizit auf das ausführliche Gutachten hingewiesen!
Grundstücksgröße: 509 m²
Objektgröße: 199,59 m²
Schätzwert: 1.496.900,00
geringstes Gebot: 1.300.000,00
Vadium: 149.690,00
Langgutachten: SV 061-24 Gutachten überarbeitet.pdfSV 061-24 Gutachten überarbeitet.pdf  
Lageplan: Lageplan.JPGLageplan.JPG  
Grundriss: Top 23.JPGTop 23.JPG  
Fotos: k-DSC_0003.JPGk-DSC_0003.JPG   k-DSC_0116.JPGk-DSC_0116.JPG   k-DSC_0067.JPGk-DSC_0067.JPG   k-DSC_0096.JPGk-DSC_0096.JPG   k-DSC_0050.JPGk-DSC_0050.JPG   k-DSC_0055.JPGk-DSC_0055.JPG   k-DSC_0016.JPGk-DSC_0016.JPG   k-DSC_0023.JPGk-DSC_0023.JPG  
Direktlink: https://edikte.justiz.gv.at/    (Eingebundene Vorschaubilder sind embedded content von edikte.justiz.gv.at; die Links verweisen direkt auf die entsprechende externe Seite.)


Kredit umschulden und Kosten sparen
mit einem Umschuldungskredit.
Egal ob Ratenkredit oder Immobilienkredit.
Kredite zu Top-Konditionen umschulden.
Hier: die neue Kreditrate berechnen!
  Ihr Wohnkredit zu Top-Konditionen.
Kompetente, kostenlose Expertenberatung.
Für Hausbau oder Wohnungskauf.
Österreichweiter Marktvergleich.
Rasch und einfach: Wohnkredit-Rechner
  Stromkosten sparen durch Anbieterwechsel!
Großer Strompreisvergleich für Österreich.
Stromanbieter online vergleichen und
in nur 3 Minuten Vertrag abschließen.
Strompreisvergleich online: Strom

Ortsende Wien  ♦  Niederösterreich  ♦  Burgenland  ♦  Oberösterreich  ♦  Salzburg  ♦  Tirol  ♦  Vorarlberg  ♦  Steiermark  ♦  Kärnten   

| Impressum  |  Datenschutz |