Zwangsversteigerung: 4300 St. Valentin Langenharterstraße 37/C - Wohnungseigentumsobjekt

Ortsanfang    Ortsanfang  


Wien  ♦  Niederösterreich  ♦  Burgenland  ♦  Oberösterreich  ♦  Salzburg  ♦  Tirol  ♦  Vorarlberg  ♦  Steiermark  ♦  Kärnten


Information   Details
Edikt: Verschiebung (von 04.03.2026 auf 20.05.2026)
Gericht - Aktenzeichen: BG Haag (083) - 109 E 12/24b
Liegenschaftsadresse: 4300 St. Valentin Langenharterstraße 37/C
Kategorie: Wohnungseigentumsobjekt
Objektbezeichnung: Wohnungseigentum Einheit 3 u 9
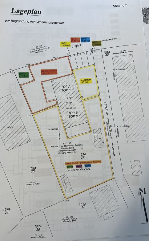
Beschreibung: Wohnung Einheit 3 – TOP C: Die gegenständliche Wohnung 1.OG TOP C, 4300 St. Valentin, Langenharterstraße 37 in der KG 03135 Thurnsdorf, EZ 337 ist über die Straße Am Löschteich aufgeschlossen. Die Wohnungshausanlage wurde in Massivbauweise errichtet. Die Wohnung selbst liegt im 1. Obergeschoss und besteht aus einem Vorraum, einem Schlafzimmer, einem Kinderzimmer, einem Badezimmer mit WC und einem Wohnzimmer mit Küche. Sie weist eine Größe von ca. 67,93 m² auf. Weiters gehören zu dieser Wohnung zwei Kellerabteile. Carport Einheit 9 – TOP I: Laut Nutzwertgutachten liegt die Einheit 9 – Top I Carport mit 15,50 m² an der Straßenseite. Es besteht aus einer Holzkonstruktion und einem Pultdach.
Grundstücksgröße: 1.556 m²
Objektgröße: 67,93 m²
Schätzwert: 151.000,00
geringstes Gebot: 75.500,00
Vadium: 15.100,00
mitzuversteigerndes Zubehör: --
Wert des Zubehörs: nicht festgestellt
Langgutachten: 24-5561210_GA_20250131.pdf24-5561210_GA_20250131.pdf  
Lageplan: Lageplan.JPGLageplan.JPG  
Grundriss: Grundriss KG.JPGGrundriss KG.JPG   Grundriss EG.JPGGrundriss EG.JPG   Grundriss OG.JPGGrundriss OG.JPG  
Fotos: IMG_5355.JPGIMG_5355.JPG   IMG_5359.JPGIMG_5359.JPG   IMG_5368.JPGIMG_5368.JPG   IMG_5374.JPGIMG_5374.JPG  
Direktlink: https://edikte.justiz.gv.at/    (Eingebundene Vorschaubilder sind embedded content von edikte.justiz.gv.at; die Links verweisen direkt auf die entsprechende externe Seite.)


Kredit umschulden und Kosten sparen
mit einem Umschuldungskredit.
Egal ob Ratenkredit oder Immobilienkredit.
Kredite zu Top-Konditionen umschulden.
Hier: die neue Kreditrate berechnen!
  Geld sparen durch Gaspreisvergleich.
Gasanbieter vergleichen, wechseln und
damit mehrere hundert Euro sparen.
Kostenlos und unverbindlich - alles online.
Jetzt österreichweit Gaspreise vergleichen.
  Ihr Wohnkredit zu Top-Konditionen.
Kompetente, kostenlose Expertenberatung.
Für Hausbau oder Wohnungskauf.
Österreichweiter Marktvergleich.
Rasch und einfach: Wohnkredit-Rechner

Ortsende Wien  ♦  Niederösterreich  ♦  Burgenland  ♦  Oberösterreich  ♦  Salzburg  ♦  Tirol  ♦  Vorarlberg  ♦  Steiermark  ♦  Kärnten   

| Impressum  |  Datenschutz |