Zwangsversteigerung: 1110 Wien Rappachgasse 9 / Mautner-Markhof-Gasse 61 - Reihenhaus

Ortsanfang    Ortsanfang  


Wien  ♦  Niederösterreich  ♦  Burgenland  ♦  Oberösterreich  ♦  Salzburg  ♦  Tirol  ♦  Vorarlberg  ♦  Steiermark  ♦  Kärnten


Information   Details
Edikt: Versteigerung (21.05.2026)
Gericht - Aktenzeichen: BG Innere Stadt Wien (001) - 74 E 124/25a
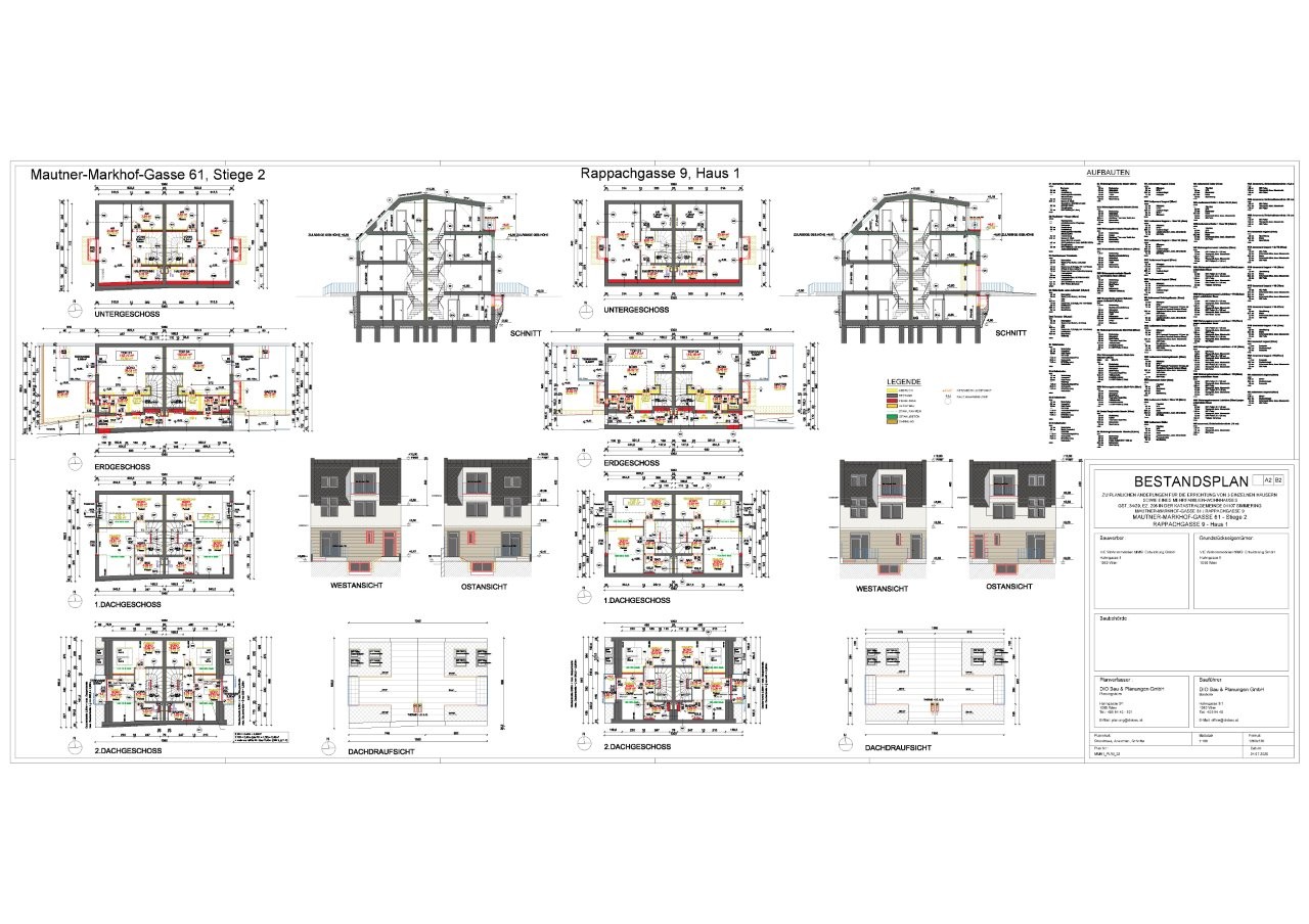
Liegenschaftsadresse: 1110 Wien Rappachgasse 9 / Mautner-Markhof-Gasse 61
Kategorie: Reihenhaus
Objektbezeichnung: WE an Stiege 2 Top 1 Büro
Beschreibung: Die Wohnhausanlage besteht aus vier Gebäudeteilen, die in Massivbauweise errichtet wurde. Die gegenständliche Einheit befindet sich in einem von zwei im Hof befindlichen Doppelhäusern. Die Einheit ist hofseitig Richtung Westen ausgerichtet. Ein Querlüften ist nicht möglich. Die Räume sind zentral über das Stiegenhaus und angrenzender Vorräume begehbar. Der im 2. Dachgeschoß mit angrenzender Terrasse befindliche Raum ist infolge von Dachschrägen kaum nutzbar. Die Nutzfläche inkl. Keller beträgt rd. 153m², die Wohnfläche ca. 107m². Beheizt wird die Einheit über eine im Keller befindliche Gastherme. Die monatliche Vorschreibung der Eigentümergemeinschaft beträgt netto EUR ca. 437,00 (zuzügl. USt)
Grundstücksgröße: 723 m²
Objektgröße: 107,44 m²
Schätzwert: 459.000,00
geringstes Gebot: 344.250,00
Vadium: 45.900,00
mitzuversteigerndes Zubehör: 2 Terrassen und Garten, Kellerabteil Top 7
Wert des Zubehörs: nicht festgestellt
Langgutachten: GA Rappach Mautner.pdfGA Rappach Mautner.pdf   Beilagen komplett.pdfBeilagen komplett.pdf  
Lageplan: Stadtplan.gifStadtplan.gif  
Grundriss: 20201124_MMG61_BP_färbiger Bestandsplan-Fertigstellung_BP002_294390 - Kopie (2) - Kopie.jpg20201124_MMG61_BP_färbiger Bestandsplan-Fertigstellung_BP002_294390 - Kopie (2) - Kopie.jpg  
Fotos: DSC_0304.jpgDSC_0304.jpg   DSC_0273.jpgDSC_0273.jpg   DSC_0284.jpgDSC_0284.jpg   DSC_0292.jpgDSC_0292.jpg   DSC_0297.jpgDSC_0297.jpg   DSC_0236.jpgDSC_0236.jpg   DSC_0185.jpgDSC_0185.jpg   DSC_0193.jpgDSC_0193.jpg   DSC_0200.jpgDSC_0200.jpg   DSC_0199.jpgDSC_0199.jpg   DSC_0208.jpgDSC_0208.jpg  
Direktlink: https://edikte.justiz.gv.at/    (Eingebundene Vorschaubilder sind embedded content von edikte.justiz.gv.at; die Links verweisen direkt auf die entsprechende externe Seite.)


Autoversicherung online 04/2026.
Anbieter in ganz Österreich vergleichen
und damit bis zu 700 Euro sparen.
Versicherung bequem online abschließen.
Jetzt Prämie sparen: Autoversicherung
  Kredit umschulden und Kosten sparen
mit einem Umschuldungskredit.
Egal ob Ratenkredit oder Immobilienkredit.
Kredite zu Top-Konditionen umschulden.
Hier: die neue Kreditrate berechnen!
  Supergünstig zum Eigenheim!
Über 60 Anbieter im kostenlosen
Online‑Kreditvergleich (Stand 04/2026)
Die besten Angebote - fix und variabel.
Top-Konditionen - schnell am Konto!

Ortsende Wien  ♦  Niederösterreich  ♦  Burgenland  ♦  Oberösterreich  ♦  Salzburg  ♦  Tirol  ♦  Vorarlberg  ♦  Steiermark  ♦  Kärnten   

| Impressum  |  Datenschutz |