Zwangsversteigerung: 2500 Baden Leesdorfer Hauptstraße 30 - Wohnungseigentumsobjekt

Ortsanfang    Ortsanfang  


Wien  ♦  Niederösterreich  ♦  Burgenland  ♦  Oberösterreich  ♦  Salzburg  ♦  Tirol  ♦  Vorarlberg  ♦  Steiermark  ♦  Kärnten


Information   Details
Edikt: Versteigerung (22.06.2026)
Gericht - Aktenzeichen: BG Baden (040) - 5 E 21/24k
Liegenschaftsadresse: 2500 Baden Leesdorfer Hauptstraße 30
Kategorie: Wohnungseigentumsobjekt
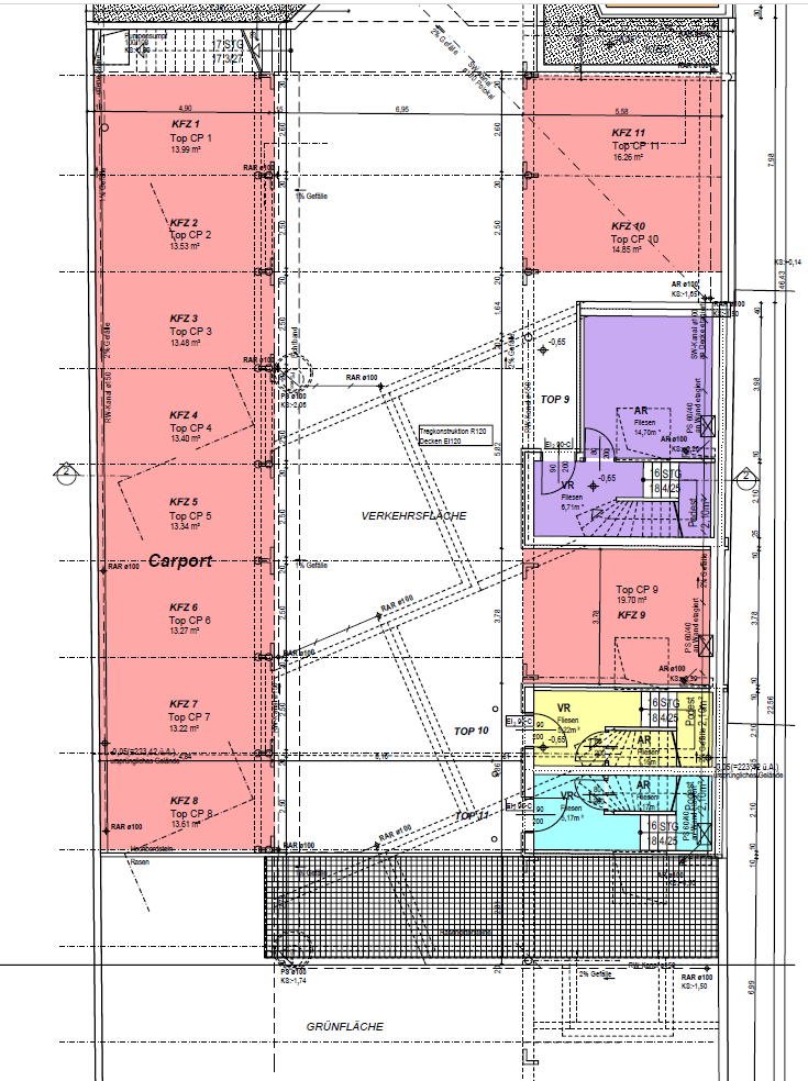
Objektbezeichnung: KFZ-Abstellplatz CP 1
Beschreibung: Bei den zu bewertenden Anteilen handelt es sich um einen im Wohnungseigentum stehenden KFZ-Abstellplatz im sogenannten Sockelgeschoss einer Wohnhausanlage in der Stadt Baden.
Grundstücksgröße: 852 m²
Objektgröße: 13,99 m²
Schätzwert: 11.000,00
geringstes Gebot: 5.500,00
Vadium: 1.100,00
Langgutachten: GA_Baden-Leesdorfer Hauptstr_signed.pdfGA_Baden-Leesdorfer Hauptstr_signed.pdf  
Lageplan: MSGIS-Mikro1.PNGMSGIS-Mikro1.PNG  
Grundriss: Parifizierungsplan_UG-Gartentrakt.PNGParifizierungsplan_UG-Gartentrakt.PNG  
Fotos: 20240826_075502.jpg20240826_075502.jpg  
Direktlink: https://edikte.justiz.gv.at/    (Eingebundene Vorschaubilder sind embedded content von edikte.justiz.gv.at; die Links verweisen direkt auf die entsprechende externe Seite.)


Kredit umschulden und Kosten sparen
mit einem Umschuldungskredit.
Egal ob Ratenkredit oder Immobilienkredit.
Kredite zu Top-Konditionen umschulden.
Hier: die neue Kreditrate berechnen!
  Autoversicherung online 04/2026.
Anbieter in ganz Österreich vergleichen
und damit bis zu 700 Euro sparen.
Versicherung bequem online abschließen.
Jetzt Prämie sparen: Autoversicherung
  Das Maximum herausholen!
Die besten Sparzinsen Österreichs.
Fix (Festgeld) oder flexibel (täglich fällig).
Kostenloser Online-Zinsvergleich.
04/2026: Sparzinsen

Ortsende Wien  ♦  Niederösterreich  ♦  Burgenland  ♦  Oberösterreich  ♦  Salzburg  ♦  Tirol  ♦  Vorarlberg  ♦  Steiermark  ♦  Kärnten   

| Impressum  |  Datenschutz |