Zwangsversteigerung: 5733 Bramberg am Wildkogel Sportstraße 333 - gemischt genutztes Haus

Ortsanfang    Ortsanfang  


Wien  ♦  Niederösterreich  ♦  Burgenland  ♦  Oberösterreich  ♦  Salzburg  ♦  Tirol  ♦  Vorarlberg  ♦  Steiermark  ♦  Kärnten


Information   Details
Edikt: Zuschlag mit Überbot
Gericht - Aktenzeichen: BG Zell am See (573) - 75 E 28/25y
Liegenschaftsadresse: 5733 Bramberg am Wildkogel Sportstraße 333
Kategorie: gemischt genutztes Haus
Objektbezeichnung: Wohn- und Geschäftshaus
Meistbot: 342.060,00
Überbot Frist: 14 Tage
Überbot Minimum: 427.575,00
Langgutachten: BrambergEmpl_2026_signiert.pdfBrambergEmpl_2026_signiert.pdf  
Lageplan: 11_LPÜbersicht.png11_LPÜbersicht.png   12_LP.png12_LP.png  
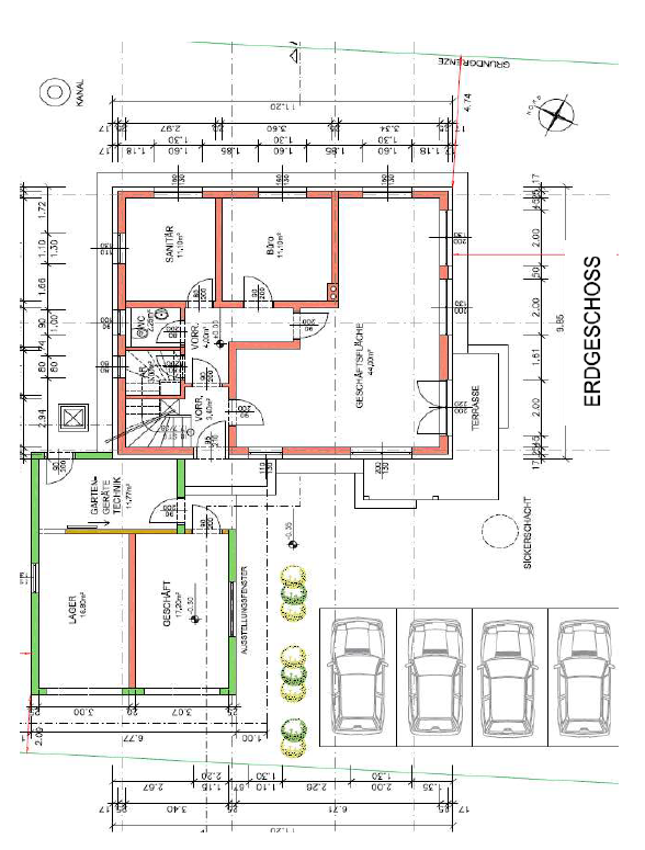
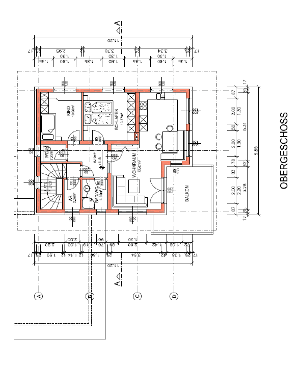
Grundriss: 13_PlanEG.png13_PlanEG.png   14_PlanOG.png14_PlanOG.png   15_Schnitt.png15_Schnitt.png  
Fotos: 01_Südansicht.png01_Südansicht.png   02_Westansicht.png02_Westansicht.png   03_Nordansicht.png03_Nordansicht.png   04_NordOstansicht.png04_NordOstansicht.png   05_Baufortschritt.png05_Baufortschritt.png   06_EG.png06_EG.png   07_OG.png07_OG.png   08_OG.png08_OG.png   09_Technik.png09_Technik.png   10_Außentüren.png10_Außentüren.png  
Direktlink: https://edikte.justiz.gv.at/    (Eingebundene Vorschaubilder sind embedded content von edikte.justiz.gv.at; die Links verweisen direkt auf die entsprechende externe Seite.)


Ideal für Beträge von 1.000 € bis 75.000 €
Der Ratenkredit aus dem Internet.
Einfach Zuhause die Anbieter vergleichen.
Abschluss online - schnell am Konto!
Hier: Kreditrate und Zinssatz berechnen!
  Top Versicherungsschutz für Ihre Immobilie.
Durch online-Preisvergleich zur besten Eigenheimversicherung.
Top aktuelle Angebote: Stand 04/2026
Online-Test: Eigenheimversicherung
  Die Finanzierung für Ihren Hausbau:
Baufinanzierung & Baukredit-Rechner.
Maßgeschneidert und Top-Konditionen.
Schnelle & unbürokratische Abwicklung.
Monatsrate und Zinsen: Online-Rechner

Ortsende Wien  ♦  Niederösterreich  ♦  Burgenland  ♦  Oberösterreich  ♦  Salzburg  ♦  Tirol  ♦  Vorarlberg  ♦  Steiermark  ♦  Kärnten   

| Impressum  |  Datenschutz |