Zwangsversteigerung: 3335 Weyer Anger 76 - Einfamilienhaus

Ortsanfang    Ortsanfang  


Wien  ♦  Niederösterreich  ♦  Burgenland  ♦  Oberösterreich  ♦  Salzburg  ♦  Tirol  ♦  Vorarlberg  ♦  Steiermark  ♦  Kärnten


Information   Details
Edikt: Versteigerung (10.11.2025)
Gericht - Aktenzeichen: BG Steyr (492) - 12 E 1182/25b
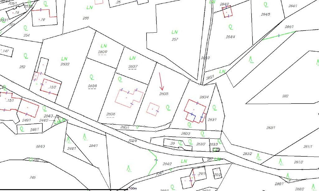
Liegenschaftsadresse: 3335 Weyer Anger 76
Kategorie: Einfamilienhaus
Objektbezeichnung: Einfamilienhaus Fertigteilhaus
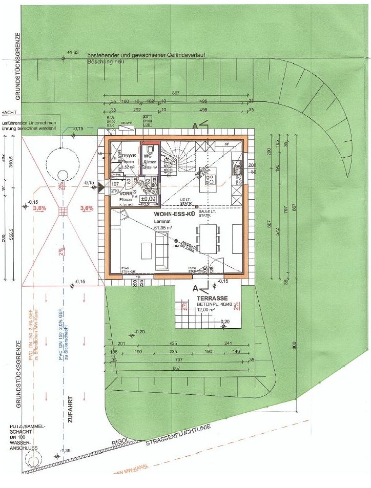
Beschreibung: Bei dem Objekt handelt es sich um ein Fertigteilhaus in Leichtbauweise in Weyer, Ortschaft Anger. Das Haus wurde ohne Kellerung 2016 errichtet und besteht aus EG und 1.OG. Die genaue Beschreibung entnehmen Sie bitte dem Langgutachten.
Grundstücksgröße: 1.283 m²
Objektgröße: 119,00 m²
Schätzwert: 285.000,00
geringstes Gebot: 142.500,00
Vadium: 28.500,00
Wert des Zubehörs: nicht festgestellt
Langgutachten: Gutachten zu EZ 203 KG Anger aus 2024-signiert.pdf  
Lageplan: Lage.jpgLage.jpg  
Grundriss: EG.jpgEG.jpg   OG u Schnitt.jpgOG u Schnitt.jpg  
Fotos: Foto1.jpgFoto1.jpg   Foto2.jpgFoto2.jpg   Foto3.jpgFoto3.jpg   Wohnzimmer.jpgWohnzimmer.jpg   Küche.jpgKüche.jpg   Innen EG.jpgInnen EG.jpg   Bad.jpgBad.jpg   Bad 2.jpgBad 2.jpg  
Direktlink: https://edikte.justiz.gv.at/    (Eingebundene Vorschaubilder sind embedded content von edikte.justiz.gv.at; die Links verweisen direkt auf die entsprechende externe Seite.)


Kredit umschulden und Kosten sparen
mit einem Umschuldungskredit.
Egal ob Ratenkredit oder Immobilienkredit.
Kredite zu Top-Konditionen umschulden.
Hier: die neue Kreditrate berechnen!
  Stromkosten sparen durch Anbieterwechsel!
Großer Strompreisvergleich für Österreich.
Stromanbieter online vergleichen und
in nur 3 Minuten Vertrag abschließen.
Strompreisvergleich online: Strom
  Autoversicherung online 10/2025.
Anbieter in ganz Österreich vergleichen
und damit bis zu 700 Euro sparen.
Versicherung bequem online abschließen.
Jetzt Prämie sparen: Autoversicherung

Ortsende Wien  ♦  Niederösterreich  ♦  Burgenland  ♦  Oberösterreich  ♦  Salzburg  ♦  Tirol  ♦  Vorarlberg  ♦  Steiermark  ♦  Kärnten   

| Impressum  |  Datenschutz |