Zwangsversteigerung: 9161 Maria Rain Nelkenweg 2/2a - Einfamilienhaus

Ortsanfang    Ortsanfang  


Wien  ♦  Niederösterreich  ♦  Burgenland  ♦  Oberösterreich  ♦  Salzburg  ♦  Tirol  ♦  Vorarlberg  ♦  Steiermark  ♦  Kärnten


Information   Details
Edikt: Versteigerung (20.05.2026)
Gericht - Aktenzeichen: BG Klagenfurt (721) - 7 E 21/25d
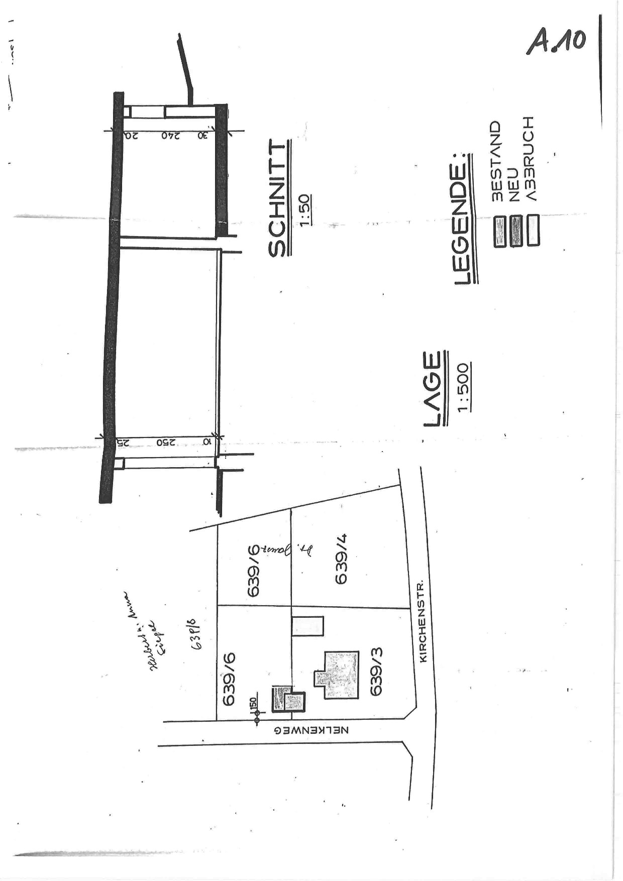
Liegenschaftsadresse: 9161 Maria Rain Nelkenweg 2/2a
Kategorie: Einfamilienhaus
Objektbezeichnung: Liegenschaft mit 2 Wohngebäude
Beschreibung: Direkt in Maria Rain gelegen, das Zentrum der Bezirkshauptstadt Klagenfurt erreicht man in ca. 9,00 km. Gut über das öffentliche Verkehrsnetz erreichbar, die Autobahnauf- und Abfahrten der A2 Südautobahn Klagenfurt-Wörthersee liegen ca. 11,00 km entfernt. Bushaltestellen sind fußläufig erreichbar, der Bahnhof von Maria Rain liegt ca. 1,30 km nordwestlich der Liegenschaft. Maria Rain bietet eine gute Infrastruktur, Schulen, Ärzte und Einkaufsmöglichkeiten sind in wenigen Minuten erreichbar. Sehr gute Wohnlage, ruhig, in begünstigter Lage mit hoher Nachfrage, Mehrfamilienhaus- und Eigenheimbebauung mit Grün und guter Infrastruktur. Von Nordost nach Südwest leicht abfallendes Grundstück, mit annähernd rechteckigem Grenzverlauf. Die Liegenschaft ist zwei Wohngebäuden bebaut: Nelkenweg 2: Teilweise unterkellertes Wohngebäude mit Zubau und einem Garagengebäude. Nelkenweg 2a: In den Hang gebautes Wohngebäude mit Carport. HINWEIS: Eine Teilung der Wohngebäude zu separaten Eigentümern bzw. zu Wohnungseigentum wäre durch eine Parifizierung möglich. Bei dem Wohngebäude Nelkenweg 2 handelt es sich um ein zum Teil altbestehendes Objekt, das sich in einem dem Alter entsprechenden Bauzustand befindet. Für die Erhaltung der Bausubstanz wurde durch den Zu- und Umbau viel getan, und entspricht dadurch im Wesentlichen einem zeitgemäßen Baustandard. Die Ausstattung und Ausführung des Wohngebäudes Nelkenweg 2a ist in einem dem Alter entsprechenden Zustand. Der Bau- und Sachzustand der Gebäude im Gesamten ist als neuwertig und normal erhalten einzustufen.
Grundstücksgröße: 1.226 m²
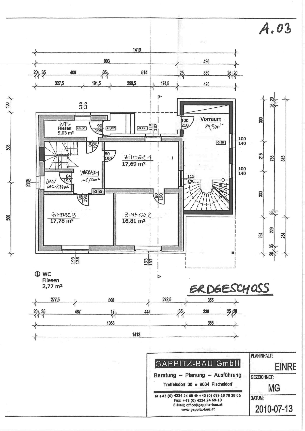
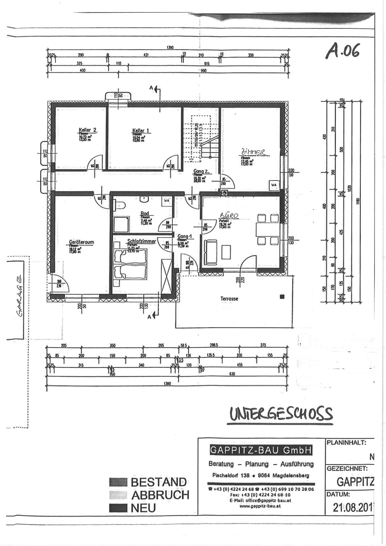
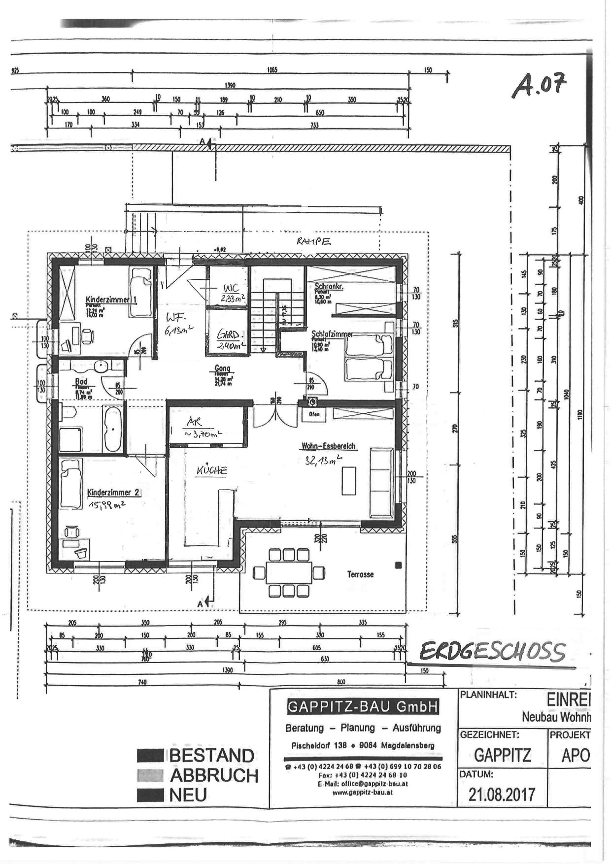
Objektgröße: 194,93 m²
Schätzwert: 1.065.000,00
geringstes Gebot: 543.000,00
Vadium: 108.600,00
mitzuversteigerndes Zubehör: Nelkenweg 2, im OG: Einbauküche: Ober-, Unter- und Hochschränke mit glatten Kunststoff-Fronten, Schichtstoffarbeitsplatte,1 Niro-Einbauspüle mit Einhand-Mischarmatur. Geräte (Neff): - Geschirrspüler mit Frontabdeckung, - Cerankochfeld, darunter ein Backrohr, darüber ein Niro-Dunstabzug, - Kühl-Gefrierkombischrank mit Frontabdeckung. Badverbau mit Doppelwaschbecken und Unterschrank, Einhand-Mischarmaturen, zwei Hängeschränke, Doppel-Spiegelschrank mit integr. Beleuchtung. Nelkenweg 2a: Zubehör: Einbauküche: Ober-, Unter- und Hochschränke mit glatten Kunststoff-Fronten, Wände dazwischen tlw. mit Schichtstoffplatte verkleidet, Schichtstoffarbeitsplatte,1 Niro-Einbauspüle mit Einhand-Mischarmatur und Brausespüle zum Herausziehen. Geräte: - Geschirrspüler mit Frontabdeckung (Siemens), - Induktionskochfeld (Airforce) mit integriertem Dunstabzug, - Backrohr und Mikrowelle im Hochschrank (Siemens). Badverbau mit Doppelwaschbecken und Unterschrank, Einhand-Mischarmaturen, zwei Hängeschränke und Wäscheabwurfschacht, Doppel-Spiegelschrank mit integr. Beleuchtung.
Wert des Zubehörs: 21.000,00
Langgutachten: Anlagen.pdfAnlagen.pdf   Apounig G-24-25.pdfApounig G-24-25.pdf  
Lageplan: 20251128112852664-0001.jpg20251128112852664-0001.jpg  
Grundriss: 20251128112852664-0002.jpg20251128112852664-0002.jpg   20251128112852664-0003.jpg20251128112852664-0003.jpg   20251128112852664-0004.jpg20251128112852664-0004.jpg   20251128112852664-0005.jpg20251128112852664-0005.jpg   20251128112852664-0006.jpg20251128112852664-0006.jpg   20251128112852664-0007.jpg20251128112852664-0007.jpg   20251128112852664-0008.jpg20251128112852664-0008.jpg   20251128112852664-0009.jpg20251128112852664-0009.jpg   20251128112852664-0010.jpg20251128112852664-0010.jpg  
Fotos: G-24-25-Fotodoku-0001.jpgG-24-25-Fotodoku-0001.jpg   G-24-25-Fotodoku-0002.jpgG-24-25-Fotodoku-0002.jpg   G-24-25-Fotodoku-0003.jpgG-24-25-Fotodoku-0003.jpg   G-24-25-Fotodoku-0004.jpgG-24-25-Fotodoku-0004.jpg   G-24-25-Fotodoku-0005.jpgG-24-25-Fotodoku-0005.jpg   G-24-25-Fotodoku-0006.jpgG-24-25-Fotodoku-0006.jpg   G-24-25-Fotodoku-0007.jpgG-24-25-Fotodoku-0007.jpg   G-24-25-Fotodoku-0008.jpgG-24-25-Fotodoku-0008.jpg   G-24-25-Fotodoku-0009.jpgG-24-25-Fotodoku-0009.jpg   G-24-25-Fotodoku-0010.jpgG-24-25-Fotodoku-0010.jpg   G-24-25-Fotodoku-0011.jpgG-24-25-Fotodoku-0011.jpg   G-24-25-Fotodoku-0012.jpgG-24-25-Fotodoku-0012.jpg   G-24-25-Fotodoku-0013.jpgG-24-25-Fotodoku-0013.jpg   G-24-25-Fotodoku-0014.jpgG-24-25-Fotodoku-0014.jpg   G-24-25-Fotodoku-0015.jpgG-24-25-Fotodoku-0015.jpg   G-24-25-Fotodoku-0016.jpgG-24-25-Fotodoku-0016.jpg   G-24-25-Fotodoku-0017.jpgG-24-25-Fotodoku-0017.jpg   G-24-25-Fotodoku-0018.jpgG-24-25-Fotodoku-0018.jpg   G-24-25-Fotodoku-0019.jpgG-24-25-Fotodoku-0019.jpg   G-24-25-Fotodoku-0020.jpgG-24-25-Fotodoku-0020.jpg   G-24-25-Fotodoku-0021.jpgG-24-25-Fotodoku-0021.jpg   G-24-25-Fotodoku-0022.jpgG-24-25-Fotodoku-0022.jpg   G-24-25-Fotodoku-0023.jpgG-24-25-Fotodoku-0023.jpg   G-24-25-Fotodoku-0024.jpgG-24-25-Fotodoku-0024.jpg   G-24-25-Fotodoku-0025.jpgG-24-25-Fotodoku-0025.jpg   G-24-25-Fotodoku-0026.jpgG-24-25-Fotodoku-0026.jpg   G-24-25-Fotodoku-0027.jpgG-24-25-Fotodoku-0027.jpg   G-24-25-Fotodoku-0028.jpgG-24-25-Fotodoku-0028.jpg   G-24-25-Fotodoku-0029.jpgG-24-25-Fotodoku-0029.jpg   G-24-25-Fotodoku-0030.jpgG-24-25-Fotodoku-0030.jpg   G-24-25-Fotodoku-0031.jpgG-24-25-Fotodoku-0031.jpg   G-24-25-Fotodoku-0032.jpgG-24-25-Fotodoku-0032.jpg   G-24-25-Fotodoku-0033.jpgG-24-25-Fotodoku-0033.jpg   G-24-25-Fotodoku-0034.jpgG-24-25-Fotodoku-0034.jpg   G-24-25-Fotodoku-0035.jpgG-24-25-Fotodoku-0035.jpg   G-24-25-Fotodoku-0036.jpgG-24-25-Fotodoku-0036.jpg   G-24-25-Fotodoku-0037.jpgG-24-25-Fotodoku-0037.jpg   G-24-25-Fotodoku-0038.jpgG-24-25-Fotodoku-0038.jpg   G-24-25-Fotodoku-0039.jpgG-24-25-Fotodoku-0039.jpg   G-24-25-Fotodoku-0040.jpgG-24-25-Fotodoku-0040.jpg  
Direktlink: https://edikte.justiz.gv.at/    (Eingebundene Vorschaubilder sind embedded content von edikte.justiz.gv.at; die Links verweisen direkt auf die entsprechende externe Seite.)


Autoversicherung online 04/2026.
Anbieter in ganz Österreich vergleichen
und damit bis zu 700 Euro sparen.
Versicherung bequem online abschließen.
Jetzt Prämie sparen: Autoversicherung
  Ideal für Beträge von 1.000 € bis 75.000 €
Der Ratenkredit aus dem Internet.
Einfach Zuhause die Anbieter vergleichen.
Abschluss online - schnell am Konto!
Hier: Kreditrate und Zinssatz berechnen!
  Ihr Wohnkredit zu Top-Konditionen.
Kompetente, kostenlose Expertenberatung.
Für Hausbau oder Wohnungskauf.
Österreichweiter Marktvergleich.
Rasch und einfach: Wohnkredit-Rechner

Ortsende Wien  ♦  Niederösterreich  ♦  Burgenland  ♦  Oberösterreich  ♦  Salzburg  ♦  Tirol  ♦  Vorarlberg  ♦  Steiermark  ♦  Kärnten   

| Impressum  |  Datenschutz |