Zwangsversteigerung: 3672 Maria Taferl Unterthalheim 15 - Einfamilienhaus

Ortsanfang    Ortsanfang  


Wien  ♦  Niederösterreich  ♦  Burgenland  ♦  Oberösterreich  ♦  Salzburg  ♦  Tirol  ♦  Vorarlberg  ♦  Steiermark  ♦  Kärnten


Information   Details
Edikt: Versteigerung (27.05.2026)
Gericht - Aktenzeichen: BG Melk (141) - 9 E 17/25z
Liegenschaftsadresse: 3672 Maria Taferl Unterthalheim 15
Kategorie: Einfamilienhaus
Objektbezeichnung: Wohn- und Wirtschaftsgebäude
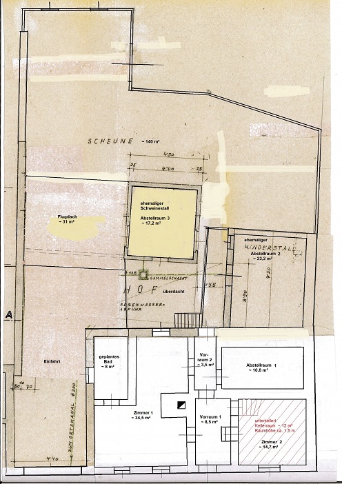
Beschreibung: Die bewertungsgegenständliche Liegenschaft liegt im Ortszentrum der zur Marktgemeinde Maria Taferl gehörigen Katastralgemeinde Unterthalheim im politischen Bezirk Melk im Bundesland Niederösterreich. Die in der bewertungsgegenständlichen Liegenschaft EZ 216 inneliegenden Grundstücke .9 und 581/4 weisen eine zusammenhängende Grundstücksfläche mit einer unregelmäßigen Grundrissform mit einem grundbücherlichen Gesamtflächenausmaß von 479 m² auf. Die östliche Grundgrenze bildet das öffentliche Gut (Landesstraße L7257). Auf dem Grundstück .9 besteht zum Bewertungsstichtag ein Wohn- und Wirtschaftsgebäude. Das Gebäude ist in geschlossener Bauweise mit den auf den jeweils angrenzenden Grundstücken bestehenden Gebäuden errichtet. Das in Massivbauweise errichtete Wohnhaus besteht aus Erdgeschoß und ist mit einem Kellerraum teilunterkellert. Das Wohnhaus ist laut Auskunft von Herrn Robert Matejka ca. um 1750 errichtet worden und diente früher dem Betrieb eines Gasthauses. Das Wirtschaftsgebäude besteht aus in Massivbauweise errichteten Stallgebäuden und einer in Holzbauweise errichteten Scheune mit angebautem Flugdach. Im Wohnhaus sind im Erdgeschoß Wohnräume mit einer Nutzfläche von gesamt ca. 69 m² und ein Abstellraum mit einer Nutzflche von ca. 11 m² eingebaut. Das Wohnhaus ist mit einem Kellerraum mit ca. 12 m² mit einer Raumhöhe von ca. 1,5 m teilunterkellert. Der Dachboden des Wohnhauses ist nicht ausgebaut. Das annähernd L-förmige Wirtschaftsgebäude ist westlich an das Wohnhaus angebaut und besteht aus einem ehemaligen Rinder- und Schweinestall, einer Scheune und einem angebauten Flugdach. Die beiden Stallgebäude haben eine Gesamtnutzfläche von ca. 40 m², die Scheune hat eine Nutzfläche von ca. 140 m² und das angebaute Flugdach eine Nutzfläche von ca. 31 m². Bauweise (soweit augenscheinlich erkennbar): Fundamente: Steinfundamente; aufgehendes Mauerwerk (Wohnteil): Stein- bzw. Mischmauerwerk;Wände Wirtschaftsgebäude: teilweise Steinmauerwerk, teilweise Holzständerkonstruktion mit einfacher Bretterschalung; Decke über Teilkellergeschoß: Betonziegel-Fertigteildecke;Decke über Erdgeschoß: Dübelbaumdecke mit Beschüttung, Holztramdecke mit Bretterbelag (über dem Abstellraum 1);Treppe EG/Dachboden: Außentreppe, Holzwangentreppe mit Trittstufen ohne Absturzsicherung; Fassaden (Wohnhaus): Eternitplatten (ost- und südseitig), Rest Mineralputz; Dach (Wohnhaus): Krüppelwalmdachstuhl; Holzsparren, Holzstaffeln; Dacheindeckung: Welleternitplatten; Kamin: Massivziegelmauerwerk; Dach (Wirtschaftsgebäude): Satteldach; Holzsparren, Einfachlattung; Eindeckung: Eternitrhombusplatten (gartenseitig); Strangfalzziegel (hofseitig); Hofüberdachung: Pultdach; Holzbalken, Holzstaffel; Eindeckung: Kunststoff-Wellplatten transparent; Regenrinnen: Eisenblech verzinkt; Fenster: Holzverbundfenster; Einfahrtstor Hof: 1 zweiflügeliges Stahlblechtor; Tor (Wirtschaftsgebäude): Massivholzschiebe- und Flügeltore;Eingangstüren (Wohnhaus): Massivholztüren; Innentüren: Umfassungszargen und Türblätter aus Massivholz;Heizung und Warmwasseraufbereitung zum Bewertungsstichtag: keine. Das Wohn- und Wirtschaftsgebäude befindet sich zum Zeitpunkt der Befundaufnahme in einem grundlegend sanierungsbedürftigem Bau- und Erhaltungszustand. Es wurden seit längerer Zeit keine laufenden Instandhaltungs- und Reparaturmaßnahmen getätigt. Die Wohnräume im Erdgeschoß verfügen jeweils über einen einfachen, die Nebenräume über einen sehr einfachen Ausstattungsstandard.
Grundstücksgröße: 479 m²
Objektgröße: 303,00 m²
Schätzwert: 15.000,00
geringstes Gebot: 15.000,00
Vadium: 1.500,00
Langgutachten: GA_BGMelk_Matejka_Maria_Taferl_Unterthalheim_15_signiert.pdfGA_BGMelk_Matejka_Maria_Taferl_Unterthalheim_15_signiert.pdf  
Lageplan: Lageplan.jpgLageplan.jpg  
Grundriss: Grundriss.jpgGrundriss.jpg  
Fotos: DSC02992.JPGDSC02992.JPG   DSC03280.JPGDSC03280.JPG   DSC03282.JPGDSC03282.JPG   DSC03253.JPGDSC03253.JPG   DSC03248.JPGDSC03248.JPG   DSC03249 - Kopie.JPGDSC03249 - Kopie.JPG   DSC03254.JPGDSC03254.JPG   DSC03243.JPGDSC03243.JPG   DSC03257.JPGDSC03257.JPG   DSC03262.JPGDSC03262.JPG   DSC03278.JPGDSC03278.JPG   DSC03266.JPGDSC03266.JPG  
Direktlink: https://edikte.justiz.gv.at/    (Eingebundene Vorschaubilder sind embedded content von edikte.justiz.gv.at; die Links verweisen direkt auf die entsprechende externe Seite.)


Die Finanzierung für Ihren Hausbau:
Baufinanzierung & Baukredit-Rechner.
Maßgeschneidert und Top-Konditionen.
Schnelle & unbürokratische Abwicklung.
Monatsrate und Zinsen: Online-Rechner
  Supergünstig zum Eigenheim!
Über 60 Anbieter im kostenlosen
Online‑Kreditvergleich (Stand 04/2026)
Die besten Angebote - fix und variabel.
Top-Konditionen - schnell am Konto!
  Kredit umschulden und Kosten sparen
mit einem Umschuldungskredit.
Egal ob Ratenkredit oder Immobilienkredit.
Kredite zu Top-Konditionen umschulden.
Hier: die neue Kreditrate berechnen!

Ortsende Wien  ♦  Niederösterreich  ♦  Burgenland  ♦  Oberösterreich  ♦  Salzburg  ♦  Tirol  ♦  Vorarlberg  ♦  Steiermark  ♦  Kärnten   

| Impressum  |  Datenschutz |