Zwangsversteigerung: 4800 Attnang-Puchheim Römerstraße 71 - Eigentumswohnung

Ortsanfang    Ortsanfang  


Wien  ♦  Niederösterreich  ♦  Burgenland  ♦  Oberösterreich  ♦  Salzburg  ♦  Tirol  ♦  Vorarlberg  ♦  Steiermark  ♦  Kärnten


Information   Details
Edikt: Versteigerung (22.04.2026)
Gericht - Aktenzeichen: BG Vöcklabruck (503) - 8 E 27/25b
Liegenschaftsadresse: 4800 Attnang-Puchheim Römerstraße 71
Kategorie: Eigentumswohnung
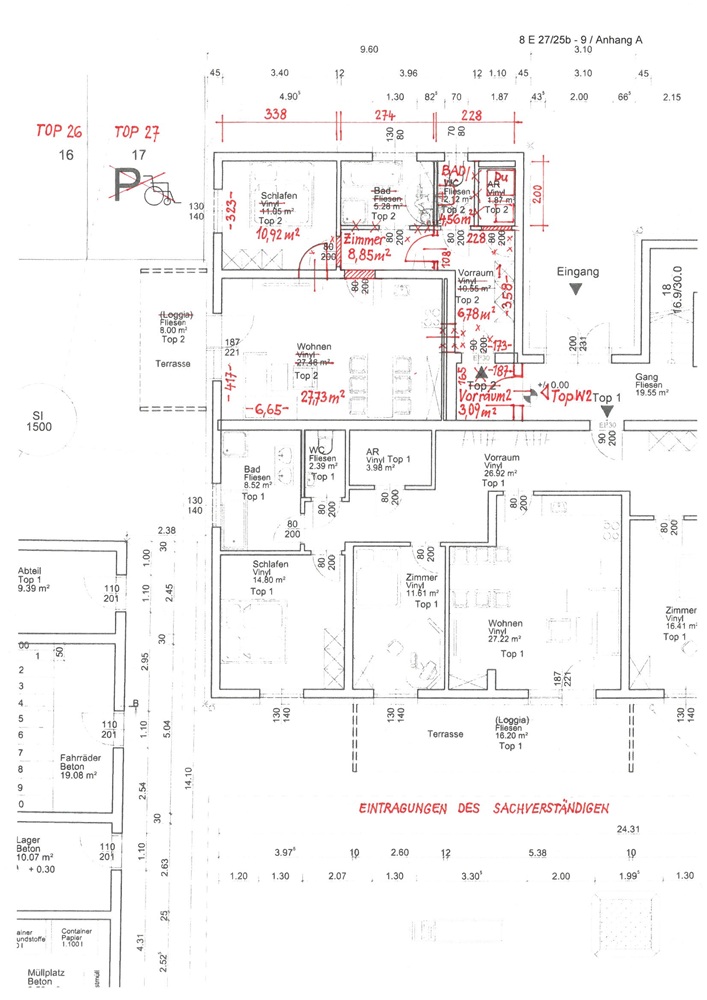
Objektbezeichnung: Wohnung und KFZ-Abstellplätze
Beschreibung: Wohnung Top 2 befindet sich im nordwestlichen Bereich des Wohnhauses im Erdgeschoss und ist der Wohnung im Nebengebäude ein Abteil Top 2 zugeordnet. Die Wohnung besteht aus: Vorraum, Wohnen, Schlafen, Bad/WC, Zimmer und Terrasse. Die zu bewertenden KFZ-Abstellplätze Top 26 und Top 27 befinden sich unmittelbar nördlich der Terrasse.
Grundstücksgröße: 1.504 m²
Objektgröße: 61,93 m²
Schätzwert: 174.100,00
geringstes Gebot: 87.050,00
Vadium: 17.410,00
mitzuversteigerndes Zubehör: -------
Langgutachten: S25C-1i26012210410.pdfS25C-1i26012210410.pdf  
Lageplan: S25C-1i26012209420.jpgS25C-1i26012209420.jpg  
Grundriss: S25C-1i26012210420.jpgS25C-1i26012210420.jpg  
Fotos: S25C-1i26012209421.jpgS25C-1i26012209421.jpg  
Direktlink: https://edikte.justiz.gv.at/    (Eingebundene Vorschaubilder sind embedded content von edikte.justiz.gv.at; die Links verweisen direkt auf die entsprechende externe Seite.)


Ihr Wohnkredit zu Top-Konditionen.
Kompetente, kostenlose Expertenberatung.
Für Hausbau oder Wohnungskauf.
Österreichweiter Marktvergleich.
Rasch und einfach: Wohnkredit-Rechner
  Autoversicherung online 04/2026.
Anbieter in ganz Österreich vergleichen
und damit bis zu 700 Euro sparen.
Versicherung bequem online abschließen.
Jetzt Prämie sparen: Autoversicherung
  Kredit umschulden und Kosten sparen
mit einem Umschuldungskredit.
Egal ob Ratenkredit oder Immobilienkredit.
Kredite zu Top-Konditionen umschulden.
Hier: die neue Kreditrate berechnen!

Ortsende Wien  ♦  Niederösterreich  ♦  Burgenland  ♦  Oberösterreich  ♦  Salzburg  ♦  Tirol  ♦  Vorarlberg  ♦  Steiermark  ♦  Kärnten   

| Impressum  |  Datenschutz |