Zwangsversteigerung: 6890 Lustenau Vorachstraße 37a - Zweifamilienhaus

Ortsanfang    Ortsanfang  


Wien  ♦  Niederösterreich  ♦  Burgenland  ♦  Oberösterreich  ♦  Salzburg  ♦  Tirol  ♦  Vorarlberg  ♦  Steiermark  ♦  Kärnten


Information   Details
Edikt: Versteigerung (06.05.2026)
Gericht - Aktenzeichen: BG Dornbirn (920) - 25 E 130/25a
Liegenschaftsadresse: 6890 Lustenau Vorachstraße 37a
Kategorie: Zweifamilienhaus
Objektbezeichnung: Wohnhaus
Beschreibung: Östlich des Zentrums der Marktgemeinde Lustenau gelegene als Baufläche-Wohngebiet gewidmete Liegenschaft mit ca. 588m² Grundfläche samt darauf errichtetem dreigeschossigem Wohnhaus bestehend aus Kellergeschoss, Erdgeschoss/Hochparterre und Dachgeschoss
Grundstücksgröße: 588 m²
Objektgröße: 208,33 m²
Schätzwert: 596.000,00
geringstes Gebot: 298.000,00
Vadium: 59.600,00
mitzuversteigerndes Zubehör: Wohnung im EG/Hochparterre: Kochen/Essen/Wintergarten: Einbauküche mit Waschbecken und Elektrogeräten (Glaskeramikkochfeld, Backrohr, Dunstabzug, Geschirrspüler) Badezimmer: Spiegelschrank Wohnung Kellergeschoss: Badezimmer: Handwaschbeckenunterbauschrank und ein Spiegelschrank Kochen/Essen (Gästezimmer): Küchenzeile mit Glaskeramikkochfeld, Backrohr, Waschbecken Wohnung im Dachgeschoss: Küche: Einbauküche mit Waschbecken und Elektrogeräten (Glaskeramikkochfeld, Backrohr, Dunstabzug, Kühlschrank) im Wert von gesamt EUR 0,00 laut Seiten 55, 56 und 82 im Bewertungsgutachten.
Wert des Zubehörs: 0,00
Langgutachten: 1 Vorachstraße 37a Lustenau.pdf1 Vorachstraße 37a Lustenau.pdf  
Lageplan: Lageplan Vorachstraße 37a.jpgLageplan Vorachstraße 37a.jpg   Luftbild Kataster Vorachstraße 37a.jpgLuftbild Kataster Vorachstraße 37a.jpg  
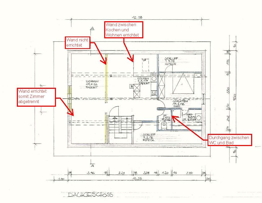
Grundriss: 1970 GR KG.jpg1970 GR KG.jpg   1970 GR EG.jpg1970 GR EG.jpg   1990 GR DG.jpg1990 GR DG.jpg   2002 GR KG und EG.jpg2002 GR KG und EG.jpg   2002 GR DG und Schnitt.jpg2002 GR DG und Schnitt.jpg   1970 Schnitt.jpg1970 Schnitt.jpg   1990 Schnitt.jpg1990 Schnitt.jpg  
Fotos: DSC_8088.JPGDSC_8088.JPG   DSC_8094.JPGDSC_8094.JPG   DSC_8096.JPGDSC_8096.JPG   DSC_8099.JPGDSC_8099.JPG   DSC_8100.JPGDSC_8100.JPG   DSC_8102.JPGDSC_8102.JPG   DSC_8103.JPGDSC_8103.JPG   DSC_8105.JPGDSC_8105.JPG   DSC_8107.JPGDSC_8107.JPG   DSC_8112.JPGDSC_8112.JPG   DSC_8113.JPGDSC_8113.JPG   DSC_8114.JPGDSC_8114.JPG   DSC_8119.JPGDSC_8119.JPG   DSC_8121.JPGDSC_8121.JPG   DSC_8123.JPGDSC_8123.JPG   DSC_8126.JPGDSC_8126.JPG   DSC_8129.JPGDSC_8129.JPG   DSC_8130.JPGDSC_8130.JPG   DSC_8132.JPGDSC_8132.JPG   DSC_8136.JPGDSC_8136.JPG   DSC_8139.JPGDSC_8139.JPG   DSC_8141.JPGDSC_8141.JPG   DSC_8152.JPGDSC_8152.JPG   DSC_8153.JPGDSC_8153.JPG   DSC_8156.JPGDSC_8156.JPG   DSC_8162.JPGDSC_8162.JPG   DSC_8166.JPGDSC_8166.JPG   DSC_8164.JPGDSC_8164.JPG  
Direktlink: https://edikte.justiz.gv.at/    (Eingebundene Vorschaubilder sind embedded content von edikte.justiz.gv.at; die Links verweisen direkt auf die entsprechende externe Seite.)


Die Finanzierung für Ihren Hausbau:
Baufinanzierung & Baukredit-Rechner.
Maßgeschneidert und Top-Konditionen.
Schnelle & unbürokratische Abwicklung.
Monatsrate und Zinsen: Online-Rechner
  Top Versicherungsschutz für Ihre Immobilie.
Durch online-Preisvergleich zur besten Eigenheimversicherung.
Top aktuelle Angebote: Stand 04/2026
Online-Test: Eigenheimversicherung
  Stromkosten sparen durch Anbieterwechsel!
Großer Strompreisvergleich für Österreich.
Stromanbieter online vergleichen und
in nur 3 Minuten Vertrag abschließen.
Strompreisvergleich online: Strom

Ortsende Wien  ♦  Niederösterreich  ♦  Burgenland  ♦  Oberösterreich  ♦  Salzburg  ♦  Tirol  ♦  Vorarlberg  ♦  Steiermark  ♦  Kärnten   

| Impressum  |  Datenschutz |