Zwangsversteigerung: 6020 Innsbruck Sillhöfe 1a - Eigentumswohnung

Ortsanfang    Ortsanfang  


Wien  ♦  Niederösterreich  ♦  Burgenland  ♦  Oberösterreich  ♦  Salzburg  ♦  Tirol  ♦  Vorarlberg  ♦  Steiermark  ♦  Kärnten


Information   Details
Edikt: Versteigerung (18.11.2025)
Gericht - Aktenzeichen: BG Innsbruck (811) - 20 E 26/25z
Liegenschaftsadresse: 6020 Innsbruck Sillhöfe 1a
Kategorie: Eigentumswohnung
Objektbezeichnung: 1 Zi-Wohnung + KFZ Stellplatz
Beschreibung: 1 Zimmer Wohnung mit Balkon im 2. Obergeschoß nach Norden ausgerichtet. Wohnfläche 48,70 m² zzgl. Balkon 6,66 m² Kellerabeil 3,66 m² + KFZ Stellplatz Duplex Doppelbühne für zwei Stellplätze nebeneinander pro Etage. Der Stellplatz DP 41 befindet sich in der unteren Ebene rechts. Für weitere wertrelevante Parameter wird auf das Langgutachten verwiesen.
Grundstücksgröße: 2.664 m²
Objektgröße: 48,70 m²
Schätzwert: 267.700,00
geringstes Gebot: 133.850,00
Vadium: 26.770,00
mitzuversteigerndes Zubehör: In der Wohnung ist eine Küche bestehend aus Unter- und Oberschränken samt Geräten eingebaut. Hierbei handelt es sich jedoch um kein nennenswertes bzw. wertmaßgelbliches Inventar. Wohnungen im Wiederverkauf werden zum größten Teil mit Einbauküchen verkauft, welche jedoch im Verkaufspreis einer Wohnung, so es sich nicht um neuwertige und sehr hochwertige Einbauküchen handelt, enthalten sind. Der Wert der Küchen ist im Verhältnis zu ev. Entsorgungskosten wertneutral zu sehen.
Langgutachten: Langgutachten.pdfLanggutachten.pdf  
Lageplan: Katasterplan.jpgKatasterplan.jpg  
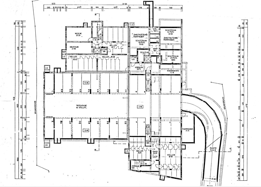
Grundriss: Grundriss vergrößert.jpgGrundriss vergrößert.jpg   Grundriss Keller und TG.jpgGrundriss Keller und TG.jpg  
Direktlink: https://edikte.justiz.gv.at/    (Eingebundene Vorschaubilder sind embedded content von edikte.justiz.gv.at; die Links verweisen direkt auf die entsprechende externe Seite.)


Autoversicherung online 10/2025.
Anbieter in ganz Österreich vergleichen
und damit bis zu 700 Euro sparen.
Versicherung bequem online abschließen.
Jetzt Prämie sparen: Autoversicherung
  Supergünstig zum Eigenheim!
Über 60 Anbieter im kostenlosen
Online‑Kreditvergleich (Stand 10/2025)
Die besten Angebote - fix und variabel.
Top-Konditionen - schnell am Konto!
  Geld sparen durch Gaspreisvergleich.
Gasanbieter vergleichen, wechseln und
damit mehrere hundert Euro sparen.
Kostenlos und unverbindlich - alles online.
Jetzt österreichweit Gaspreise vergleichen.

Ortsende Wien  ♦  Niederösterreich  ♦  Burgenland  ♦  Oberösterreich  ♦  Salzburg  ♦  Tirol  ♦  Vorarlberg  ♦  Steiermark  ♦  Kärnten   

| Impressum  |  Datenschutz |