Zwangsversteigerung: 8160 Naas Rotleitenstraße 24 - Reihenhaus

Ortsanfang    Ortsanfang  


Wien  ♦  Niederösterreich  ♦  Burgenland  ♦  Oberösterreich  ♦  Salzburg  ♦  Tirol  ♦  Vorarlberg  ♦  Steiermark  ♦  Kärnten


Information   Details
Edikt: Versteigerung (19.05.2026)
Gericht - Aktenzeichen: BG Weiz (682) - 12 E 21/25a
Liegenschaftsadresse: 8160 Naas Rotleitenstraße 24
Kategorie: Reihenhaus
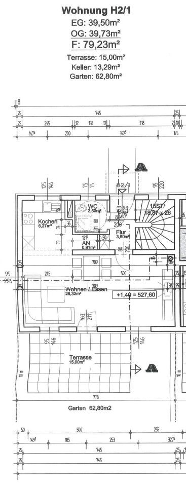
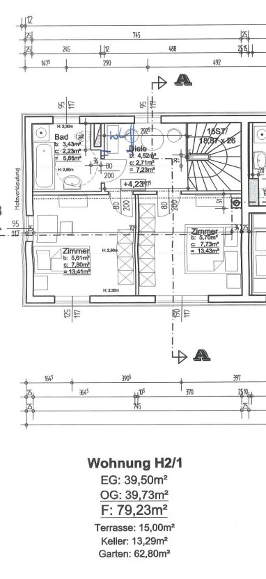
Objektbezeichnung: Reihenhaus 2/1 mit Stellplatz
Beschreibung: 8160 Naas, Rotleitenstraße 24/1, Wohnungsgeigentum an W 1 samt Kellerraum 2/1, Garten 2/1 und Garage SSR 8; Das Grundstück 63/21 mit der darauf befindlichen Reihenhausanlage liegt im aufgelockert verbauten Gebiet von Naas, ca. 2,5 km von Weiz entfernt, in einer verkehrsberuhigten Zone, im Nahbereich der Bergruine Sturmberg befindlich. Die Erreichbarkeit des Hauses erfolgt über einen Gehweg, welcher sich nordseitig vom Haus befindet und besteht eine zugeordnete Terrasse mit Gartenfläche und einem PKW-Stellplatz. (Näheres siehe Langgutachten)
Grundstücksgröße: 2.503 m²
Schätzwert: 226.000,00
geringstes Gebot: 113.000,00
Vadium: 22.600,00
Langgutachten: GA_Exe Schloffer.pdfGA_Exe Schloffer.pdf  
Lageplan: 1 MB.jpg1 MB.jpg  
Grundriss: 2 Grundriss.jpg2 Grundriss.jpg   3 Grundriss2.jpg3 Grundriss2.jpg  
Fotos: 4 Gesamt.JPG4 Gesamt.JPG   5 Gesamt.JPG5 Gesamt.JPG   6 Gesamt.jpg6 Gesamt.jpg   7 WZ mit Kü.JPG7 WZ mit Kü.JPG   8 WZ mit Kü.JPG8 WZ mit Kü.JPG   9 WZ mit Kü.JPG9 WZ mit Kü.JPG   10 OG_DG Zi 1.JPG10 OG_DG Zi 1.JPG   11 OG_DG SZ.JPG11 OG_DG SZ.JPG   12 NG.jpg12 NG.jpg  
Direktlink: https://edikte.justiz.gv.at/    (Eingebundene Vorschaubilder sind embedded content von edikte.justiz.gv.at; die Links verweisen direkt auf die entsprechende externe Seite.)


Kredit umschulden und Kosten sparen
mit einem Umschuldungskredit.
Egal ob Ratenkredit oder Immobilienkredit.
Kredite zu Top-Konditionen umschulden.
Hier: die neue Kreditrate berechnen!
  Stromkosten sparen durch Anbieterwechsel!
Großer Strompreisvergleich für Österreich.
Stromanbieter online vergleichen und
in nur 3 Minuten Vertrag abschließen.
Strompreisvergleich online: Strom
  Geld sparen durch Gaspreisvergleich.
Gasanbieter vergleichen, wechseln und
damit mehrere hundert Euro sparen.
Kostenlos und unverbindlich - alles online.
Jetzt österreichweit Gaspreise vergleichen.

Ortsende Wien  ♦  Niederösterreich  ♦  Burgenland  ♦  Oberösterreich  ♦  Salzburg  ♦  Tirol  ♦  Vorarlberg  ♦  Steiermark  ♦  Kärnten   

| Impressum  |  Datenschutz |